|
|
|
| Larry Stein Oklahoma County Assessor (405) 713-1200 - Public Access System |
|
|
|
|
|
|
| Real Property Display - Screen Produced 2/27/2026 6:16:23 PM | ||||
|---|---|---|---|---|
| Account: R142131805 | Type: Residential | Location: |
4625 NW 61ST ST |
|
| Building Name/Occupant: |
|
OKLAHOMA CITY |
||
| Owner Name 1: | INGRAM JOHN THOMAS |
Parcel PIN#: |
2837-14-213-1805 |
|
| Owner Name 2: | 1/4 section #: |
2837 |
||
| Owner Name 3: | Parent Acct: |
|
||
| Billing Address: | 4625 NW 61ST ST | Tax District: |
|
|
| City, State, Zip | OKLAHOMA CITY, OK 73122-7519 | School System: |
Putnam City #1 |
|
|
Country: (If noted) |
Land Size: |
0.2650 Acres |
||
|
Land Value: 41,558 |
|
|||
|
Sect 10-T12N-R4W Qtr NE |
ROLLINGWOOD
Block
004
Lot
026
|
|||
| Full Legal Description: ROLLINGWOOD 004 026 |
| Photo & Sketch (if available) | Comp Sales (ordered by relevancy) |
|
||||||||||||||||||
|
||||||||||||||||||||
| Value History (*The County Treasurer 405-713-1300 posts & collects actual tax amounts. Contact information HERE) | |||||||||||||
|---|---|---|---|---|---|---|---|---|---|---|---|---|---|
| Year | Market Value | Taxable Mkt Value | Gross Assessed | Exemption | Net Assessed | Millage | Est. Tax | Tax Savings | |||||
|
2025 |
224,000 |
224,000 |
24,640 |
24,640 |
0 |
123.17 |
$0 |
$3,035 |
|||||
|
2024 |
225,000 |
225,000 |
24,750 |
0 |
24,750 |
122.30 |
$3,027 |
$0 |
|||||
|
2023 |
213,500 |
155,921 |
17,150 |
1,000 |
16,150 |
121.91 |
$1,969 |
$894 |
|||||
|
2022 |
187,000 |
151,380 |
16,650 |
1,000 |
15,650 |
123.41 |
$1,932 |
$607 |
|||||
|
2021 |
162,000 |
146,971 |
16,166 |
1,000 |
15,166 |
122.23 |
$1,854 |
$324 |
|||||
| Property Account Status/Adjustments/Exemptions | ||
|---|---|---|
| Account # | Exemption Description | Amount |
|
R142131805 |
3% Cap Homestead |
0 |
|
R142131805 |
100% DAV Exemption |
100 |
|
R142131805 |
DAV Homestead |
0 |
| Property Deed Transaction History (Recorded in the County Clerk's Office) | ||||||||||
|---|---|---|---|---|---|---|---|---|---|---|
| Date | Type | Book | Page | Price | Grantor | Grantee | ||||
|
5/13/2024 |
|
Deeds |
$242,000 |
STONE ABBEY PROPERTIES LLC |
INGRAM JOHN THOMAS |
|||||
|
5/13/2024 |
|
Hmstd Off & |
$0 |
INGRAM JOHN THOMAS |
INGRAM JOHN THOMAS |
|||||
|
11/20/2023 |
|
Deeds |
$112,000 |
MANN SUSAN |
STONE ABBEY PROPERTIES LLC |
|||||
|
7/26/2002 |
|
Deeds |
$90,000 |
IVINS REBECCA L & JAMES C |
MANN SUSAN |
|||||
|
6/14/2002 |
|
Deeds |
$63,500 |
DULANEY GERALD P |
IVINS REBECCA L & JAMES C |
|||||
| Last Mailed Notice of Value (N.O.V.) Information/History | ||||||||
|---|---|---|---|---|---|---|---|---|
| Year | Date | Market Value | Taxable Market Value | Gross Assessed | Exemption | Net Assessed | ||
|
2024 |
02/13/2024 |
225,000 |
225,000 |
24,750 |
0 |
24,750 |
||
|
2023 |
02/14/2023 |
213,500 |
155,921 |
17,150 |
1,000 |
16,150 |
||
|
2022 |
03/15/2022 |
187,000 |
151,380 |
16,650 |
1,000 |
15,650 |
||
|
2021 |
03/19/2021 |
162,000 |
146,971 |
16,166 |
1,000 |
15,166 |
||
|
2020 |
03/10/2020 |
151,000 |
142,691 |
15,696 |
1,000 |
14,696 |
||
| Property Building Permit History | |||||||||||
|---|---|---|---|---|---|---|---|---|---|---|---|
| Issued | Permit # | Provided by | Bldg # | Description | Est Construction Cost | Status | |||||
| No Building Permit records returned. | |||||||||||
| Click button on building number to access detailed information: | ||||||
|---|---|---|---|---|---|---|
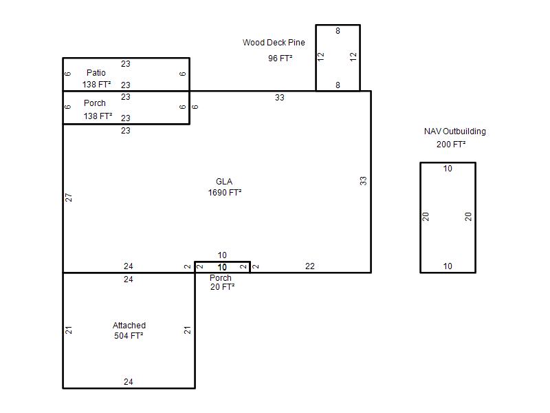
| Bldg # | Vacant/Improved Land | Bldg Description | Year Built | SqFt | # Stories | |
|
1 |
Improved |
Ranch 1 Story |
1964 |
1,690 |
1 Stories |
|