|
|
|
| Larry Stein Oklahoma County Assessor (405) 713-1200 - Public Access System |
|
|
|
|
|
|
| Real Property Display - Screen Produced 2/27/2026 6:16:24 PM | ||||
|---|---|---|---|---|
| Account: R188553360 | Type: Residential | Location: |
5816 NW 54TH ST |
|
| Building Name/Occupant: |
|
WARR ACRES |
||
| Owner Name 1: | SALAS PROPERTIES LLC |
Parcel PIN#: |
2839-18-855-3360 |
|
| Owner Name 2: | 1/4 section #: |
2839 |
||
| Owner Name 3: | Parent Acct: |
|
||
| Billing Address: | 5816 NW 54TH ST | Tax District: |
|
|
| City, State, Zip | WARR ACRES, OK 73122-6215 | School System: |
Putnam City #1 |
|
|
Country: (If noted) |
Land Size: |
0.4591 Acres |
||
|
Land Value: 29,000 |
|
|||
|
Sect 10-T12N-R4W Qtr SW |
WARR ACRES SECOND
Block
004
Lot
001
|
|||
| Full Legal Description: WARR ACRES SECOND 004 001 |
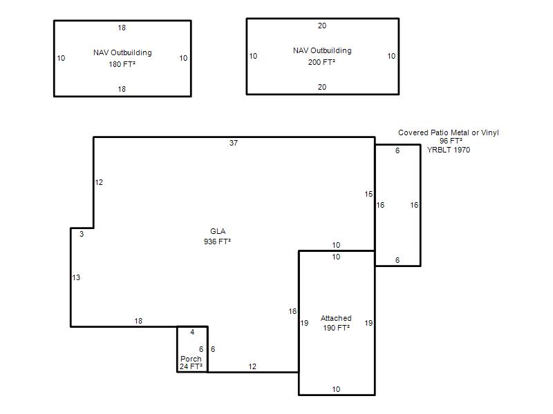
| Photo & Sketch (if available) | Comp Sales (ordered by relevancy) |
|
||||||||||||||||||
|
||||||||||||||||||||
| Value History (*The County Treasurer 405-713-1300 posts & collects actual tax amounts. Contact information HERE) | |||||||||||||
|---|---|---|---|---|---|---|---|---|---|---|---|---|---|
| Year | Market Value | Taxable Mkt Value | Gross Assessed | Exemption | Net Assessed | Millage | Est. Tax | Tax Savings | |||||
|
2025 |
137,000 |
137,000 |
15,070 |
0 |
15,070 |
115.77 |
$1,745 |
$0 |
|||||
|
2024 |
136,000 |
116,341 |
12,797 |
0 |
12,797 |
114.25 |
$1,462 |
$247 |
|||||
|
2023 |
117,500 |
110,801 |
12,187 |
0 |
12,187 |
117.84 |
$1,436 |
$87 |
|||||
|
2022 |
108,000 |
105,525 |
11,607 |
0 |
11,607 |
120.40 |
$1,398 |
$33 |
|||||
|
2021 |
100,500 |
100,500 |
11,055 |
0 |
11,055 |
119.77 |
$1,324 |
$0 |
|||||
| Property Account Status/Adjustments/Exemptions | ||
|---|---|---|
| Account # | Exemption Description | Amount |
|
R188553360 |
5% Capped Account |
0 |
| Property Deed Transaction History (Recorded in the County Clerk's Office) | ||||||||||
|---|---|---|---|---|---|---|---|---|---|---|
| Date | Type | Book | Page | Price | Grantor | Grantee | ||||
|
1/29/2024 |
|
Deeds |
$140,000 |
DOWNING MATTHEW |
SALAS PROPERTIES LLC |
|||||
|
2/28/2020 |
|
Deeds |
$60,000 |
ZACHARY DAVID F |
DOWNING MATTHEW |
|||||
|
3/22/2001 |
|
Deeds |
$48,000 |
BELONCIK CHRIS J |
ZACHARY DAVID F |
|||||
|
2/25/2000 |
|
Deeds |
$42,500 |
GRAY WILHELMINA E |
BELONCIK CHRIS J |
|||||
|
1/18/2000 |
|
Deeds |
$0 |
GRAY CLAUD R & W E |
GRAY WILHELMINA E |
|||||
| Last Mailed Notice of Value (N.O.V.) Information/History | ||||||||
|---|---|---|---|---|---|---|---|---|
| Year | Date | Market Value | Taxable Market Value | Gross Assessed | Exemption | Net Assessed | ||
|
2025 |
02/14/2025 |
137,000 |
137,000 |
15,070 |
0 |
15,070 |
||
|
2024 |
02/13/2024 |
136,000 |
116,341 |
12,797 |
0 |
12,797 |
||
|
2023 |
02/14/2023 |
117,500 |
110,801 |
12,187 |
0 |
12,187 |
||
|
2022 |
03/15/2022 |
108,000 |
105,525 |
11,607 |
0 |
11,607 |
||
|
2021 |
03/19/2021 |
100,500 |
100,500 |
11,055 |
0 |
11,055 |
||
| Property Building Permit History | |||||||||||
|---|---|---|---|---|---|---|---|---|---|---|---|
| Issued | Permit # | Provided by | Bldg # | Description | Est Construction Cost | Status | |||||
| No Building Permit records returned. | |||||||||||
| Click button on building number to access detailed information: | ||||||
|---|---|---|---|---|---|---|
| Bldg # | Vacant/Improved Land | Bldg Description | Year Built | SqFt | # Stories | |
|
1 |
Improved |
Ranch 1 Story |
1940 |
936 |
1 Stories |
|