|
|
|
| Larry Stein Oklahoma County Assessor (405) 713-1200 - Public Access System |
|
|
|
|
|
|
| Real Property Display - Screen Produced 4/1/2026 12:21:17 AM | ||||
|---|---|---|---|---|
| Account: R142212435 | Type: Residential | Location: |
3832 NW 51ST ST |
|
| Building Name/Occupant: |
|
OKLAHOMA CITY |
||
| Owner Name 1: | GILES STEPHEN G |
Parcel PIN#: |
2842-14-221-2435 |
|
| Owner Name 2: | 1/4 section #: |
2842 |
||
| Owner Name 3: | Parent Acct: |
|
||
| Billing Address: | 3832 NW 51ST ST | Tax District: |
|
|
| City, State, Zip | OKLAHOMA CITY, OK 73112-2046 | School System: |
Putnam City #1 |
|
|
Country: (If noted) |
Land Size: |
0.1934 Acres |
||
|
Land Value: 31,590 |
|
|||
|
Sect 11-T12N-R4W Qtr SE |
PORTLAND HILLS ADD
Block
006
Lot
009
|
|||
| Full Legal Description: PORTLAND HILLS ADD 006 009 |
| Photo & Sketch (if available) | Comp Sales (ordered by relevancy) |
|
||||||||||||||||||
|
||||||||||||||||||||
| Value History (*The County Treasurer 405-713-1300 posts & collects actual tax amounts. Contact information HERE) | |||||||||||||
|---|---|---|---|---|---|---|---|---|---|---|---|---|---|
| Year | Market Value | Taxable Mkt Value | Gross Assessed | Exemption | Net Assessed | Millage | Est. Tax | Tax Savings | |||||
|
2026 |
187,500 |
187,500 |
20,625 |
0 |
20,625 |
123.17 |
$2,540 |
$0 |
|||||
|
2025 |
192,500 |
192,500 |
21,175 |
0 |
21,175 |
123.17 |
$2,608 |
$0 |
|||||
|
2024 |
191,000 |
156,191 |
17,180 |
0 |
17,180 |
122.30 |
$2,101 |
$468 |
|||||
|
2023 |
179,000 |
148,754 |
16,362 |
0 |
16,362 |
121.91 |
$1,995 |
$406 |
|||||
|
2022 |
158,000 |
141,671 |
15,583 |
0 |
15,583 |
123.41 |
$1,923 |
$222 |
|||||
| Property Account Status/Adjustments/Exemptions | ||
|---|---|---|
| Account # | Exemption Description | Amount |
|
R142212435 |
5% Capped Account |
0 |
| Property Deed Transaction History (Recorded in the County Clerk's Office) | ||||||||||
|---|---|---|---|---|---|---|---|---|---|---|
| Date | Type | Book | Page | Price | Grantor | Grantee | ||||
|
7/17/2024 |
|
Deeds |
$199,000 |
COPELAND KYLIE & JEREMY |
GILES STEPHEN G |
|||||
|
9/8/2014 |
|
Deeds |
$107,000 |
WUCKERT LUKE E |
COPELAND KYLIE & JEREMY |
|||||
|
7/5/2013 |
|
Deeds |
$107,000 |
SELF STACY A FINCH AMANDA |
WUCKERT LUKE E |
|||||
|
12/10/2008 |
|
Deeds |
$0 |
SELF STACY A |
SELF STACY A FINCH AMANDA |
|||||
|
12/5/2008 |
|
Deeds |
$103,000 |
PAGE ERICA |
SELF STACY A |
|||||
| Last Mailed Notice of Value (N.O.V.) Information/History | ||||||||
|---|---|---|---|---|---|---|---|---|
| Year | Date | Market Value | Taxable Market Value | Gross Assessed | Exemption | Net Assessed | ||
|
2025 |
02/14/2025 |
192,500 |
192,500 |
21,175 |
0 |
21,175 |
||
|
2024 |
02/13/2024 |
191,000 |
156,191 |
17,180 |
0 |
17,180 |
||
|
2023 |
02/14/2023 |
179,000 |
148,754 |
16,362 |
0 |
16,362 |
||
|
2022 |
03/15/2022 |
158,000 |
141,671 |
15,583 |
0 |
15,583 |
||
|
2021 |
03/19/2021 |
139,000 |
134,925 |
14,841 |
0 |
14,841 |
||
| Property Building Permit History | |||||||||||
|---|---|---|---|---|---|---|---|---|---|---|---|
| Issued | Permit # | Provided by | Bldg # | Description | Est Construction Cost | Status | |||||
| No Building Permit records returned. | |||||||||||
| Click button on building number to access detailed information: | ||||||
|---|---|---|---|---|---|---|
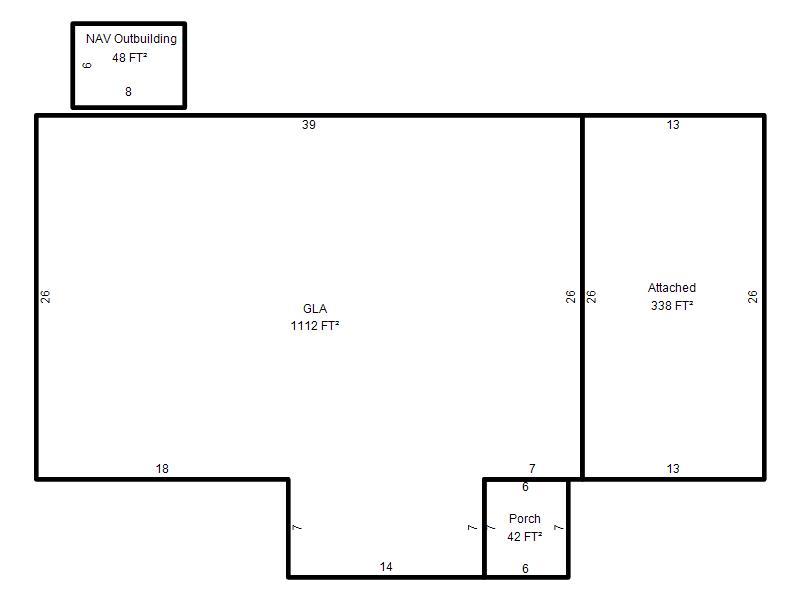
| Bldg # | Vacant/Improved Land | Bldg Description | Year Built | SqFt | # Stories | |
|
1 |
Improved |
Ranch 1 Story |
1953 |
1,112 |
1 Stories |
|