|
|
|
| Larry Stein Oklahoma County Assessor (405) 713-1200 - Public Access System |
|
|
|
|
|
|
| Real Property Display - Screen Produced 4/2/2026 4:16:02 PM | ||||
|---|---|---|---|---|
| Account: R142691595 | Type: Residential | Location: |
4141 NW 61ST TER |
|
| Building Name/Occupant: |
|
OKLAHOMA CITY |
||
| Owner Name 1: | BONDURANT SOPHIE N |
Parcel PIN#: |
2844-14-269-1595 |
|
| Owner Name 2: | 1/4 section #: |
2844 |
||
| Owner Name 3: | Parent Acct: |
|
||
| Billing Address: | 4141 NW 61ST TER | Tax District: |
|
|
| City, State, Zip | OKLAHOMA CITY, OK 73112-1346 | School System: |
Putnam City #1 |
|
|
Country: (If noted) |
Land Size: |
0.2782 Acres |
||
|
Land Value: 52,116 |
|
|||
|
Sect 11-T12N-R4W Qtr NW |
LAKERIDGE
Block
004
Lot
000
|
|||
| Full Legal Description: LAKERIDGE 004 000 ELY 20FT LOT 14 & ALL LOT 15 |
| Photo & Sketch (if available) | Comp Sales (ordered by relevancy) |
|
||||||||||||||||||
|
||||||||||||||||||||
| Value History (*The County Treasurer 405-713-1300 posts & collects actual tax amounts. Contact information HERE) | |||||||||||||
|---|---|---|---|---|---|---|---|---|---|---|---|---|---|
| Year | Market Value | Taxable Mkt Value | Gross Assessed | Exemption | Net Assessed | Millage | Est. Tax | Tax Savings | |||||
|
2026 |
276,000 |
276,000 |
30,360 |
1,000 |
29,360 |
123.17 |
$3,616 |
$123 |
|||||
|
2025 |
242,000 |
143,512 |
15,786 |
1,000 |
14,786 |
123.17 |
$1,821 |
$1,458 |
|||||
|
2024 |
243,000 |
143,512 |
15,786 |
1,000 |
14,786 |
122.30 |
$1,808 |
$1,461 |
|||||
|
2023 |
235,000 |
143,512 |
15,786 |
1,000 |
14,786 |
121.91 |
$1,803 |
$1,349 |
|||||
|
2022 |
206,000 |
143,512 |
15,786 |
1,000 |
14,786 |
123.41 |
$1,825 |
$972 |
|||||
| Property Account Status/Adjustments/Exemptions | ||
|---|---|---|
| Account # | Exemption Description | Amount |
|
R142691595 |
Homestead |
1,000 |
| Property Deed Transaction History (Recorded in the County Clerk's Office) | ||||||||||
|---|---|---|---|---|---|---|---|---|---|---|
| Date | Type | Book | Page | Price | Grantor | Grantee | ||||
|
8/4/2025 |
|
Deeds |
$280,500 |
SOULSBY JULIA BONDURANT |
BONDURANT SOPHIE N |
|||||
|
5/23/2025 |
|
Hmstd Off & |
$0 |
SOULSBY JULIA BONDURANT |
SOULSBY JULIA BONDURANT |
|||||
|
4/24/2025 |
|
Deeds |
$278,000 |
ALLEN JAY R TRUST |
SOULSBY JULIA BONDURANT |
|||||
|
10/8/2009 |
|
Deeds |
$0 |
ALLEN JAY R & MARTHA SUE |
ALLEN JAY R TRUST |
|||||
|
3/18/1991 |
|
Historical |
$71,000 |
YARSA PAUL & DEBORAH LYNN |
ALLEN JAY R & MARTHA SUE |
|||||
| Last Mailed Notice of Value (N.O.V.) Information/History | ||||||||
|---|---|---|---|---|---|---|---|---|
| Year | Date | Market Value | Taxable Market Value | Gross Assessed | Exemption | Net Assessed | ||
|
2026 |
02/23/2026 |
276,000 |
276,000 |
30,360 |
0 |
30,360 |
||
|
2024 |
02/13/2024 |
243,000 |
143,512 |
15,786 |
1,000 |
14,786 |
||
|
2023 |
02/14/2023 |
235,000 |
143,512 |
15,786 |
1,000 |
14,786 |
||
|
2022 |
03/15/2022 |
206,000 |
143,512 |
15,786 |
1,000 |
14,786 |
||
|
2021 |
03/19/2021 |
176,000 |
143,512 |
15,786 |
1,000 |
14,786 |
||
| Property Building Permit History | |||||||||||
|---|---|---|---|---|---|---|---|---|---|---|---|
| Issued | Permit # | Provided by | Bldg # | Description | Est Construction Cost | Status | |||||
| No Building Permit records returned. | |||||||||||
| Click button on building number to access detailed information: | ||||||
|---|---|---|---|---|---|---|
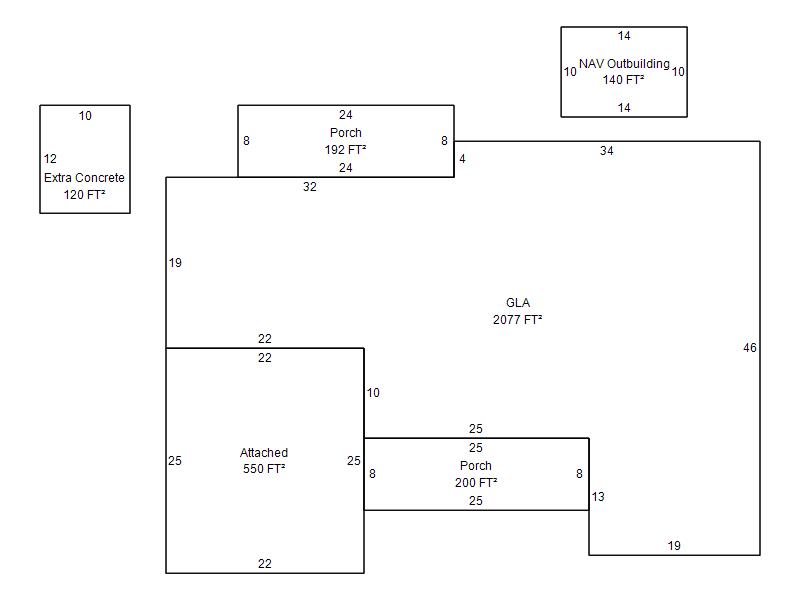
| Bldg # | Vacant/Improved Land | Bldg Description | Year Built | SqFt | # Stories | |
|
1 |
Improved |
Ranch 1 Story |
1959 |
2,077 |
1 Stories |
|