|
|
|
| Larry Stein Oklahoma County Assessor (405) 713-1200 - Public Access System |
|
|
|
|
|
|
| Real Property Display - Screen Produced 2/27/2026 9:19:23 PM | ||||
|---|---|---|---|---|
| Account: R146651925 | Type: Residential | Location: |
4112 NW 58TH ST |
|
| Building Name/Occupant: |
|
OKLAHOMA CITY |
||
| Owner Name 1: | MYRICK JERRE RANDEN |
Parcel PIN#: |
2844-14-665-1925 |
|
| Owner Name 2: | 1/4 section #: |
2844 |
||
| Owner Name 3: | Parent Acct: |
|
||
| Billing Address: | 4112 NW 58TH ST | Tax District: |
|
|
| City, State, Zip | OKLAHOMA CITY, OK 73112-1514 | School System: |
Putnam City #1 |
|
|
Country: (If noted) |
Land Size: |
0.2223 Acres |
||
|
Land Value: 47,000 |
|
|||
|
Sect 11-T12N-R4W Qtr NW |
LAKECREST
Block
003
Lot
036
|
|||
| Full Legal Description: LAKECREST 003 036 EXCEPT W2FT |
| No comparable sales report available. | |||||||||||||||||||
|
|||||||||||||||||||
| Value History (*The County Treasurer 405-713-1300 posts & collects actual tax amounts. Contact information HERE) | |||||||||||||
|---|---|---|---|---|---|---|---|---|---|---|---|---|---|
| Year | Market Value | Taxable Mkt Value | Gross Assessed | Exemption | Net Assessed | Millage | Est. Tax | Tax Savings | |||||
|
2025 |
210,000 |
210,000 |
23,100 |
0 |
23,100 |
123.17 |
$2,845 |
$0 |
|||||
|
2024 |
209,000 |
172,601 |
18,986 |
0 |
18,986 |
122.30 |
$2,322 |
$490 |
|||||
|
2023 |
198,500 |
164,382 |
18,082 |
0 |
18,082 |
121.91 |
$2,204 |
$458 |
|||||
|
2022 |
175,500 |
156,555 |
17,221 |
0 |
17,221 |
123.41 |
$2,125 |
$257 |
|||||
|
2021 |
150,000 |
149,100 |
16,401 |
0 |
16,401 |
122.23 |
$2,005 |
$12 |
|||||
| Property Account Status/Adjustments/Exemptions | ||
|---|---|---|
| Account # | Exemption Description | Amount |
|
R146651925 |
5% Capped Account |
0 |
| Property Deed Transaction History (Recorded in the County Clerk's Office) | |||||||
|---|---|---|---|---|---|---|---|
| Date | Type | Book | Page | Price | Grantor | Grantee | |
|
8/9/2024 |
|
Deeds |
$210,000 |
DOWNING ALICE K |
MYRICK JERRE RANDEN |
||
|
4/24/2018 |
|
Deeds |
$140,000 |
EBERHARDT HARRY G JR & BARBARA |
DOWNING ALICE K |
||
|
9/1/1976 |
|
Historical |
$0 |
|
EBERHARDT HARRY G JR & BARBARA |
||
| Last Mailed Notice of Value (N.O.V.) Information/History | ||||||||
|---|---|---|---|---|---|---|---|---|
| Year | Date | Market Value | Taxable Market Value | Gross Assessed | Exemption | Net Assessed | ||
|
2025 |
02/14/2025 |
210,000 |
210,000 |
23,100 |
0 |
23,100 |
||
|
2024 |
02/13/2024 |
209,000 |
172,601 |
18,986 |
0 |
18,986 |
||
|
2023 |
02/14/2023 |
198,500 |
164,382 |
18,082 |
0 |
18,082 |
||
|
2022 |
03/15/2022 |
175,500 |
156,555 |
17,221 |
0 |
17,221 |
||
|
2021 |
03/19/2021 |
150,000 |
149,100 |
16,401 |
0 |
16,401 |
||
| Property Building Permit History | |||||||||||
|---|---|---|---|---|---|---|---|---|---|---|---|
| Issued | Permit # | Provided by | Bldg # | Description | Est Construction Cost | Status | |||||
| No Building Permit records returned. | |||||||||||
| Click button on building number to access detailed information: | ||||||
|---|---|---|---|---|---|---|
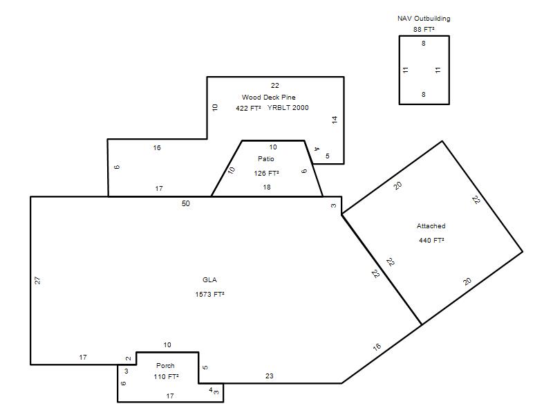
| Bldg # | Vacant/Improved Land | Bldg Description | Year Built | SqFt | # Stories | |
|
1 |
Improved |
Ranch 1 Story |
1962 |
1,573 |
1 Stories |
|