|
|
|
| Larry Stein Oklahoma County Assessor (405) 713-1200 - Public Access System |
|
|
|
|
|
|
| Real Property Display - Screen Produced 4/2/2026 5:20:50 PM | ||||
|---|---|---|---|---|
| Account: R150372355 | Type: Residential | Location: |
1816 RULANE DR |
|
| Building Name/Occupant: |
|
MIDWEST CITY |
||
| Owner Name 1: | MARY ANN OLIVAS PROPERTIES LLC |
Parcel PIN#: |
1414-15-037-2355 |
|
| Owner Name 2: | 1/4 section #: |
1414 |
||
| Owner Name 3: | Parent Acct: |
|
||
| Billing Address: | 4301 HIGH FOREST RD | Tax District: |
|
|
| City, State, Zip | COLORADO SPRINGS, CO 80908-2026 | School System: |
Mid-Del #52 |
|
|
Country: (If noted) |
Land Size: |
0.1909 Acres |
||
|
Land Value: 28,690 |
|
|||
|
Sect 4-T11N-R2W Qtr SE |
BILL ATKINSON RANCHET 2ND
Block
007
Lot
010
|
|||
| Full Legal Description: BILL ATKINSON RANCHET 2ND 007 010 |
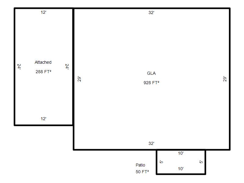
| Photo & Sketch (if available) | Comp Sales (ordered by relevancy) |
|
||||||||||||||||||
|
||||||||||||||||||||
| Value History (*The County Treasurer 405-713-1300 posts & collects actual tax amounts. Contact information HERE) | |||||||||||||
|---|---|---|---|---|---|---|---|---|---|---|---|---|---|
| Year | Market Value | Taxable Mkt Value | Gross Assessed | Exemption | Net Assessed | Millage | Est. Tax | Tax Savings | |||||
|
2026 |
133,000 |
133,000 |
14,630 |
0 |
14,630 |
119.58 |
$1,749 |
$0 |
|||||
|
2025 |
137,000 |
96,995 |
10,669 |
0 |
10,669 |
119.58 |
$1,276 |
$526 |
|||||
|
2024 |
127,500 |
92,377 |
10,160 |
0 |
10,160 |
122.51 |
$1,245 |
$473 |
|||||
|
2023 |
109,000 |
87,979 |
9,676 |
0 |
9,676 |
117.71 |
$1,139 |
$272 |
|||||
|
2022 |
100,000 |
83,790 |
9,216 |
0 |
9,216 |
116.64 |
$1,075 |
$208 |
|||||
| Property Account Status/Adjustments/Exemptions | ||||||
|---|---|---|---|---|---|---|
| Account # | Exemption Description | Amount | ||||
| No adjustment/exemption records returned. | ||||||
| Property Deed Transaction History (Recorded in the County Clerk's Office) | ||||||||||
|---|---|---|---|---|---|---|---|---|---|---|
| Date | Type | Book | Page | Price | Grantor | Grantee | ||||
|
2/4/2025 |
|
Hmstd Off & |
$0 |
SHIVERS BARBARA W CO TRS ETAL |
SHIVERS BARBARA W CO TRS |
|||||
|
2/4/2025 |
|
Deeds |
$140,000 |
SHIVERS BARBARA W CO TRS |
MARY ANN OLIVAS PROPERTIES LLC |
|||||
|
10/27/2023 |
|
Deeds |
$0 |
SHIVERS BARBARA WALLS |
SHIVERS BARBARA W CO TRS ETAL |
|||||
|
12/13/2015 |
|
Deeds |
$0 |
SHIVERS BARBARA WALLS |
SHIVERS BARBARA WALLS |
|||||
|
7/23/2007 |
|
Deeds |
$0 |
SHIVERS BARBARA WALLS |
SHIVERS BARBARA WALLS |
|||||
| Last Mailed Notice of Value (N.O.V.) Information/History | ||||||||
|---|---|---|---|---|---|---|---|---|
| Year | Date | Market Value | Taxable Market Value | Gross Assessed | Exemption | Net Assessed | ||
|
2026 |
02/06/2026 |
133,000 |
133,000 |
14,630 |
0 |
14,630 |
||
|
2025 |
01/31/2025 |
137,000 |
96,995 |
10,669 |
0 |
10,669 |
||
|
2025 |
03/28/2025 |
137,000 |
96,995 |
10,669 |
0 |
10,669 |
||
|
2024 |
01/22/2024 |
127,500 |
92,377 |
10,160 |
0 |
10,160 |
||
|
2023 |
01/23/2023 |
109,000 |
87,979 |
9,676 |
0 |
9,676 |
||
| Property Building Permit History | |||||||||||
|---|---|---|---|---|---|---|---|---|---|---|---|
| Issued | Permit # | Provided by | Bldg # | Description | Est Construction Cost | Status | |||||
| No Building Permit records returned. | |||||||||||
| Click button on building number to access detailed information: | ||||||
|---|---|---|---|---|---|---|
| Bldg # | Vacant/Improved Land | Bldg Description | Year Built | SqFt | # Stories | |
|
1 |
Improved |
Ranch 1 Story |
1959 |
928 |
1 Stories |
|