|
|
|
| Larry Stein Oklahoma County Assessor (405) 713-1200 - Public Access System |
|
|
|
|
|
|
| Real Property Display - Screen Produced 4/4/2026 7:25:37 AM | ||||
|---|---|---|---|---|
| Account: R059855900 | Type: Residential | Location: |
2924 NW 45TH ST |
|
| Building Name/Occupant: |
|
OKLAHOMA CITY |
||
| Owner Name 1: | CULLISON JOHN TYLER |
Parcel PIN#: |
2849-05-985-5900 |
|
| Owner Name 2: | TIPTON DIANA L CULLISON | 1/4 section #: |
2849 |
|
| Owner Name 3: | Parent Acct: |
|
||
| Billing Address: | 2924 NW 45TH ST | Tax District: |
|
|
| City, State, Zip | OKLAHOMA CITY, OK 73112-6012 | School System: |
Oklahoma City #89 |
|
|
Country: (If noted) |
Land Size: |
0.1538 Acres |
||
|
Land Value: 23,000 |
|
|||
|
Sect 13-T12N-R4W Qtr NE |
SPEECE ADDN
Block
005
Lot
007
|
|||
| Full Legal Description: SPEECE ADDN 005 007 |
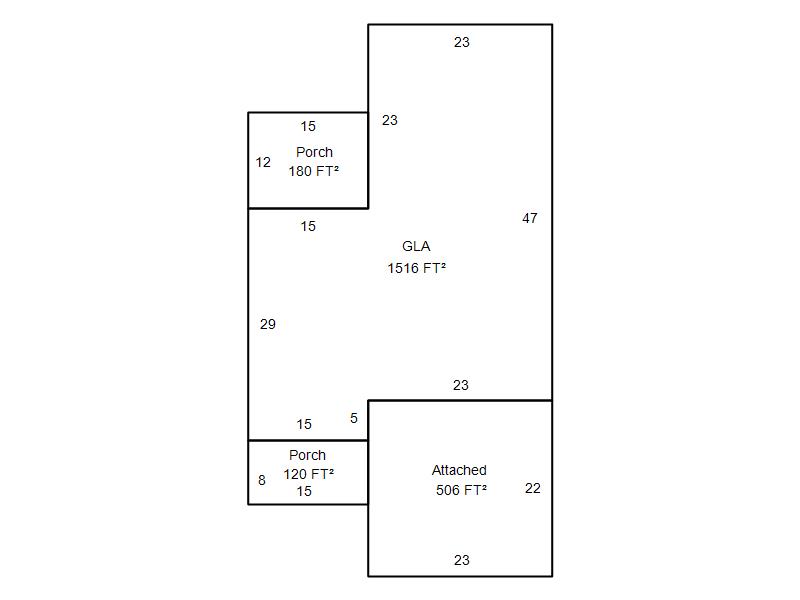
| Photo & Sketch (if available) | Comp Sales (ordered by relevancy) |
|
||||||||||||||||||
|
||||||||||||||||||||
| Value History (*The County Treasurer 405-713-1300 posts & collects actual tax amounts. Contact information HERE) | |||||||||||||
|---|---|---|---|---|---|---|---|---|---|---|---|---|---|
| Year | Market Value | Taxable Mkt Value | Gross Assessed | Exemption | Net Assessed | Millage | Est. Tax | Tax Savings | |||||
|
2026 |
294,000 |
294,000 |
32,340 |
0 |
32,340 |
122.90 |
$3,975 |
$0 |
|||||
|
2025 |
302,000 |
302,000 |
33,220 |
0 |
33,220 |
122.90 |
$4,083 |
$0 |
|||||
|
2024 |
303,500 |
282,791 |
31,106 |
0 |
31,106 |
123.89 |
$3,854 |
$282 |
|||||
|
2023 |
287,500 |
269,325 |
29,625 |
0 |
29,625 |
122.82 |
$3,639 |
$246 |
|||||
|
2022 |
256,500 |
256,500 |
28,215 |
0 |
28,215 |
117.63 |
$3,319 |
$0 |
|||||
| Property Account Status/Adjustments/Exemptions | ||
|---|---|---|
| Account # | Exemption Description | Amount |
|
R059855900 |
5% Capped Account |
0 |
| Property Deed Transaction History (Recorded in the County Clerk's Office) | ||||||||||
|---|---|---|---|---|---|---|---|---|---|---|
| Date | Type | Book | Page | Price | Grantor | Grantee | ||||
|
6/13/2024 |
|
Deeds |
$305,000 |
HEITMAN EMILY |
CULLISON JOHN TYLER |
|||||
|
3/13/2020 |
|
Deeds |
$259,000 |
JAMIL & MARIE LLC |
HEITMAN EMILY |
|||||
|
12/9/2019 |
|
Hmstd Off & |
$0 |
DEAN JIMMY |
DEAN SHARON M |
|||||
|
12/9/2019 |
|
Deeds |
$15,000 |
DEAN SHARON M |
CRAFT ROYAL |
|||||
|
12/9/2019 |
|
Deeds |
$23,000 |
CRAFT ROYAL |
JAMIL & MARIE LLC |
|||||
| Last Mailed Notice of Value (N.O.V.) Information/History | ||||||||
|---|---|---|---|---|---|---|---|---|
| Year | Date | Market Value | Taxable Market Value | Gross Assessed | Exemption | Net Assessed | ||
|
2025 |
02/14/2025 |
302,000 |
302,000 |
33,220 |
0 |
33,220 |
||
|
2024 |
02/13/2024 |
303,500 |
282,791 |
31,106 |
0 |
31,106 |
||
|
2023 |
02/14/2023 |
287,500 |
269,325 |
29,625 |
0 |
29,625 |
||
|
2021 |
03/19/2021 |
256,500 |
256,500 |
28,215 |
0 |
28,215 |
||
|
2020 |
03/10/2020 |
23,000 |
23,000 |
2,530 |
0 |
2,530 |
||
| Property Building Permit History | ||||||
|---|---|---|---|---|---|---|
| Issued | Permit # | Provided by | Bldg # | Description | Est Construction Cost | Status |
|
4/3/2020 |
BLDR-2019-07622 |
|
1 |
Main Dwellin |
|
Inactive |
|
10/20/1993 |
10193137 |
OKLAHOMA CITY |
1 |
Demolish |
0 |
Inactive |
|
4/7/1993 |
10193136 |
OKLAHOMA CITY |
1 |
Burn - Trip |
1,000 |
Inactive |
| Click button on building number to access detailed information: | ||||||
|---|---|---|---|---|---|---|
| Bldg # | Vacant/Improved Land | Bldg Description | Year Built | SqFt | # Stories | |
|
1 |
Improved |
Ranch 1 Story |
2020 |
1,516 |
1 Stories |
|