|
|
|
| Larry Stein Oklahoma County Assessor (405) 713-1200 - Public Access System |
|
|
|
|
|
|
| Real Property Display - Screen Produced 4/2/2026 12:59:13 AM | ||||
|---|---|---|---|---|
| Account: R150811305 | Type: Residential | Location: |
5701 SE 8TH ST |
|
| Building Name/Occupant: |
|
MIDWEST CITY |
||
| Owner Name 1: | PALMER COLTON |
Parcel PIN#: |
1415-15-081-1305 |
|
| Owner Name 2: | 1/4 section #: |
1415 |
||
| Owner Name 3: | Parent Acct: |
|
||
| Billing Address: | 5701 SE 8TH ST | Tax District: |
|
|
| City, State, Zip | MIDWEST CITY, OK 73110 | School System: |
Mid-Del #52 |
|
|
Country: (If noted) |
Land Size: |
0.1867 Acres |
||
|
Land Value: 25,622 |
|
|||
|
Sect 4-T11N-R2W Qtr SW |
CROSBY RICHLAND HILL
Block
003
Lot
006
|
|||
| Full Legal Description: CROSBY RICHLAND HILL 003 006 E48.8FT |
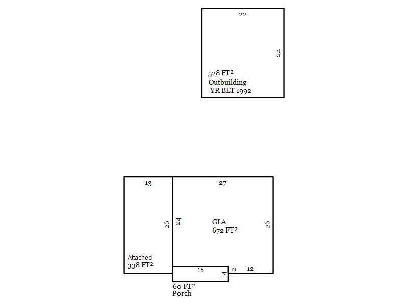
| Photo & Sketch (if available) | Comp Sales (ordered by relevancy) |
|
||||||||||||||||||
|
||||||||||||||||||||
| Value History (*The County Treasurer 405-713-1300 posts & collects actual tax amounts. Contact information HERE) | |||||||||||||
|---|---|---|---|---|---|---|---|---|---|---|---|---|---|
| Year | Market Value | Taxable Mkt Value | Gross Assessed | Exemption | Net Assessed | Millage | Est. Tax | Tax Savings | |||||
|
2026 |
99,500 |
88,699 |
9,756 |
0 |
9,756 |
119.58 |
$1,167 |
$142 |
|||||
|
2025 |
101,500 |
84,476 |
9,291 |
0 |
9,291 |
119.58 |
$1,111 |
$224 |
|||||
|
2024 |
94,500 |
80,454 |
8,849 |
0 |
8,849 |
122.51 |
$1,084 |
$189 |
|||||
|
2023 |
88,500 |
76,623 |
8,428 |
0 |
8,428 |
117.71 |
$992 |
$154 |
|||||
|
2022 |
82,500 |
72,975 |
8,027 |
0 |
8,027 |
116.64 |
$936 |
$122 |
|||||
| Property Account Status/Adjustments/Exemptions | ||
|---|---|---|
| Account # | Exemption Description | Amount |
|
R150811305 |
5% Capped Account |
0 |
| Property Deed Transaction History (Recorded in the County Clerk's Office) | ||||||||||
|---|---|---|---|---|---|---|---|---|---|---|
| Date | Type | Book | Page | Price | Grantor | Grantee | ||||
|
5/8/2020 |
|
Deeds |
$69,000 |
LUIS JOHN ROBERT |
PALMER COLTON |
|||||
|
11/30/2009 |
|
Deeds |
$49,000 |
DUNCAN LARRY D |
LUIS JOHN ROBERT |
|||||
|
11/14/2009 |
|
Deeds |
$0 |
DUNCAN LARRY D DUNCAN ALAN D |
DUNCAN LARRY D |
|||||
|
7/2/2003 |
|
Deeds |
$30,000 |
SANDERS CHARLES EDWARD |
DUNCAN LARRY D DUNCAN ALAN D |
|||||
|
9/4/2002 |
|
Deeds |
$0 |
SANDERS CHAS E & V U |
SANDERS CHARLES EDWARD |
|||||
| Last Mailed Notice of Value (N.O.V.) Information/History | ||||||||
|---|---|---|---|---|---|---|---|---|
| Year | Date | Market Value | Taxable Market Value | Gross Assessed | Exemption | Net Assessed | ||
|
2026 |
02/06/2026 |
99,500 |
88,699 |
9,756 |
0 |
9,756 |
||
|
2025 |
01/31/2025 |
101,500 |
84,476 |
9,291 |
0 |
9,291 |
||
|
2024 |
01/22/2024 |
94,500 |
80,454 |
8,849 |
0 |
8,849 |
||
|
2023 |
01/23/2023 |
88,500 |
76,623 |
8,428 |
0 |
8,428 |
||
|
2022 |
02/22/2022 |
82,500 |
72,975 |
8,027 |
0 |
8,027 |
||
| Property Building Permit History | |||||||||||
|---|---|---|---|---|---|---|---|---|---|---|---|
| Issued | Permit # | Provided by | Bldg # | Description | Est Construction Cost | Status | |||||
| No Building Permit records returned. | |||||||||||
| Click button on building number to access detailed information: | ||||||
|---|---|---|---|---|---|---|
| Bldg # | Vacant/Improved Land | Bldg Description | Year Built | SqFt | # Stories | |
|
1 |
Improved |
Ranch 1 Story |
1953 |
672 |
1 Stories |
|