|
|
|
| Larry Stein Oklahoma County Assessor (405) 713-1200 - Public Access System |
|
|
|
|
|
|
| Real Property Display - Screen Produced 3/22/2026 4:39:26 PM | ||||
|---|---|---|---|---|
| Account: R073490375 | Type: Residential | Location: |
3317 NW 42ND ST |
|
| Building Name/Occupant: |
|
OKLAHOMA CITY |
||
| Owner Name 1: | RICO JUANITA |
Parcel PIN#: |
2851-07-349-0375 |
|
| Owner Name 2: | JASSO JOSE FELIPE AGUINAGA | 1/4 section #: |
2851 |
|
| Owner Name 3: | Parent Acct: |
|
||
| Billing Address: | 3317 NW 42ND ST | Tax District: |
|
|
| City, State, Zip | OKLAHOMA CITY, OK 73112 | School System: |
Oklahoma City #89 |
|
|
Country: (If noted) |
Land Size: |
0.1858 Acres |
||
|
Land Value: 29,138 |
|
|||
|
Sect 13-T12N-R4W Qtr SW |
TREADWELL FOURTH ADD
Block
002
Lot
012
|
|||
| Full Legal Description: TREADWELL FOURTH ADD 002 012 |
| Photo & Sketch (if available) | Comp Sales (ordered by relevancy) |
|
||||||||||||||||||
|
||||||||||||||||||||
| Value History (*The County Treasurer 405-713-1300 posts & collects actual tax amounts. Contact information HERE) | |||||||||||||
|---|---|---|---|---|---|---|---|---|---|---|---|---|---|
| Year | Market Value | Taxable Mkt Value | Gross Assessed | Exemption | Net Assessed | Millage | Est. Tax | Tax Savings | |||||
|
2025 |
142,000 |
142,000 |
15,620 |
1,000 |
14,620 |
122.90 |
$1,797 |
$123 |
|||||
|
2024 |
137,000 |
109,120 |
12,002 |
0 |
12,002 |
123.89 |
$1,487 |
$380 |
|||||
|
2023 |
128,000 |
103,924 |
11,431 |
0 |
11,431 |
122.82 |
$1,404 |
$325 |
|||||
|
2022 |
111,000 |
98,976 |
10,886 |
0 |
10,886 |
117.63 |
$1,281 |
$156 |
|||||
|
2021 |
95,000 |
94,263 |
10,368 |
0 |
10,368 |
117.70 |
$1,220 |
$10 |
|||||
| Property Account Status/Adjustments/Exemptions | ||
|---|---|---|
| Account # | Exemption Description | Amount |
|
R073490375 |
3% Cap Homestead |
0 |
|
R073490375 |
Homestead |
1,000 |
| Property Deed Transaction History (Recorded in the County Clerk's Office) | |||||||
|---|---|---|---|---|---|---|---|
| Date | Type | Book | Page | Price | Grantor | Grantee | |
|
6/3/2024 |
|
Deeds |
$156,000 |
PARHAM STEVE & KRISTA |
RICO JUANITA |
||
|
2/8/2018 |
|
Deeds |
$55,000 |
COULSON HEATH W & KIMBERLY J |
PARHAM STEVE & KRISTA |
||
|
2/13/2003 |
|
Deeds |
$45,000 |
MCQUAID MARY |
COULSON HEATH W & KIMBERLY J |
||
|
11/1/1977 |
|
Historical |
$0 |
|
MCQUAID MARY |
||
| Last Mailed Notice of Value (N.O.V.) Information/History | ||||||||
|---|---|---|---|---|---|---|---|---|
| Year | Date | Market Value | Taxable Market Value | Gross Assessed | Exemption | Net Assessed | ||
|
2025 |
02/14/2025 |
142,000 |
142,000 |
15,620 |
0 |
15,620 |
||
|
2024 |
02/13/2024 |
137,000 |
109,120 |
12,002 |
0 |
12,002 |
||
|
2023 |
02/14/2023 |
128,000 |
103,924 |
11,431 |
0 |
11,431 |
||
|
2022 |
03/15/2022 |
111,000 |
98,976 |
10,886 |
0 |
10,886 |
||
|
2021 |
03/19/2021 |
95,000 |
94,263 |
10,368 |
0 |
10,368 |
||
| Property Building Permit History | |||||||||||
|---|---|---|---|---|---|---|---|---|---|---|---|
| Issued | Permit # | Provided by | Bldg # | Description | Est Construction Cost | Status | |||||
| No Building Permit records returned. | |||||||||||
| Click button on building number to access detailed information: | ||||||
|---|---|---|---|---|---|---|
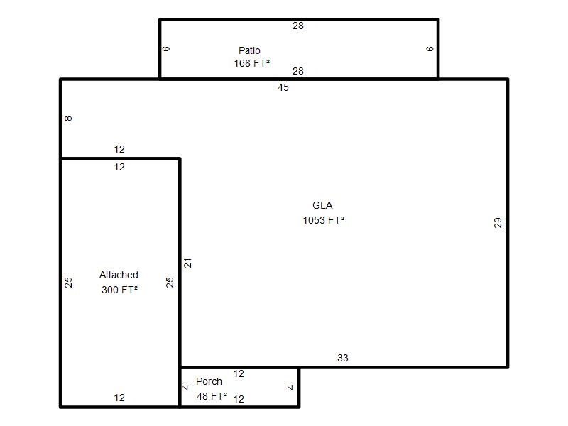
| Bldg # | Vacant/Improved Land | Bldg Description | Year Built | SqFt | # Stories | |
|
1 |
Improved |
Ranch 1 Story |
1951 |
1,053 |
1 Stories |
|