|
|
|
| Larry Stein Oklahoma County Assessor (405) 713-1200 - Public Access System |
|
|
|
|
|
|
| Real Property Display - Screen Produced 4/2/2026 12:44:41 AM | ||||
|---|---|---|---|---|
| Account: R117842510 | Type: Residential | Location: |
3408 NW 44TH ST |
|
| Building Name/Occupant: |
|
OKLAHOMA CITY |
||
| Owner Name 1: | ALVAREZ EDGAR GIOVANI PUAC |
Parcel PIN#: |
2852-11-784-2510 |
|
| Owner Name 2: | 1/4 section #: |
2852 |
||
| Owner Name 3: | Parent Acct: |
|
||
| Billing Address: | 3408 NW 44TH ST | Tax District: |
|
|
| City, State, Zip | OKLAHOMA CITY, OK 73112 | School System: |
Oklahoma City #89 |
|
|
Country: (If noted) |
Land Size: |
0.2204 Acres |
||
|
Land Value: 38,400 |
|
|||
|
Sect 13-T12N-R4W Qtr NW |
TREADWELL HILLS
Block
009
Lot
003
|
|||
| Full Legal Description: TREADWELL HILLS 009 003 |
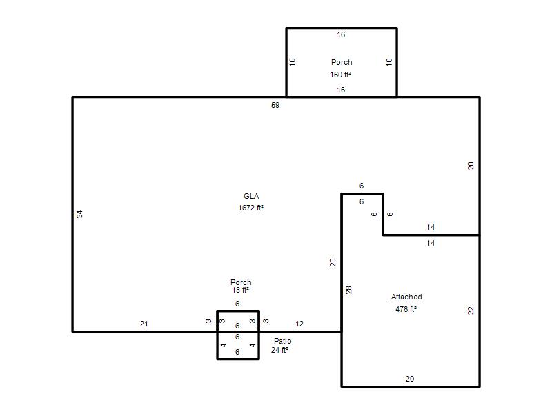
| Photo & Sketch (if available) | Comp Sales (ordered by relevancy) |
|
||||||||||||||||||
|
||||||||||||||||||||
| Value History (*The County Treasurer 405-713-1300 posts & collects actual tax amounts. Contact information HERE) | |||||||||||||
|---|---|---|---|---|---|---|---|---|---|---|---|---|---|
| Year | Market Value | Taxable Mkt Value | Gross Assessed | Exemption | Net Assessed | Millage | Est. Tax | Tax Savings | |||||
|
2026 |
226,000 |
193,901 |
21,328 |
0 |
21,328 |
122.90 |
$2,621 |
$434 |
|||||
|
2025 |
227,500 |
184,668 |
20,313 |
0 |
20,313 |
122.90 |
$2,497 |
$579 |
|||||
|
2024 |
229,500 |
175,875 |
19,346 |
0 |
19,346 |
123.89 |
$2,397 |
$731 |
|||||
|
2023 |
167,500 |
167,500 |
18,425 |
0 |
18,425 |
122.82 |
$2,263 |
$0 |
|||||
|
2022 |
198,000 |
105,632 |
11,619 |
1,000 |
10,619 |
117.63 |
$1,249 |
$1,313 |
|||||
| Property Account Status/Adjustments/Exemptions | ||
|---|---|---|
| Account # | Exemption Description | Amount |
|
R117842510 |
5% Capped Account |
0 |
| Property Deed Transaction History (Recorded in the County Clerk's Office) | ||||||||||
|---|---|---|---|---|---|---|---|---|---|---|
| Date | Type | Book | Page | Price | Grantor | Grantee | ||||
|
10/27/2022 |
|
Deeds |
$165,000 |
EILRICH PEGGY EDDINGTON |
ALVAREZ EDGAR GIOVANI P |
|||||
|
8/25/2022 |
|
Hmstd Off & |
$0 |
HILL J R CO TRS |
EILRICH PEGGY EDDINGTON |
|||||
|
1/26/2007 |
|
Deeds |
$0 |
HILL J R & EXICEN A CO TRS HILL FAMILY TRUST |
HILL J R CO TRS |
|||||
|
12/26/1996 |
|
Historical |
$0 |
HILL ELMER J R |
HILL J R & EXICEN A CO TRS |
|||||
|
6/21/1991 |
|
Historical |
$68,000 |
RUST EDNA |
HILL ELMER J R |
|||||
| Last Mailed Notice of Value (N.O.V.) Information/History | ||||||||
|---|---|---|---|---|---|---|---|---|
| Year | Date | Market Value | Taxable Market Value | Gross Assessed | Exemption | Net Assessed | ||
|
2026 |
02/23/2026 |
226,000 |
193,901 |
21,328 |
0 |
21,328 |
||
|
2025 |
02/14/2025 |
227,500 |
184,668 |
20,313 |
0 |
20,313 |
||
|
2024 |
02/13/2024 |
229,500 |
175,875 |
19,346 |
0 |
19,346 |
||
|
2023 |
02/14/2023 |
167,500 |
167,500 |
18,425 |
0 |
18,425 |
||
|
2022 |
03/15/2022 |
198,000 |
105,632 |
11,619 |
1,000 |
10,619 |
||
| Property Building Permit History | |||||||||||
|---|---|---|---|---|---|---|---|---|---|---|---|
| Issued | Permit # | Provided by | Bldg # | Description | Est Construction Cost | Status | |||||
| No Building Permit records returned. | |||||||||||
| Click button on building number to access detailed information: | ||||||
|---|---|---|---|---|---|---|
| Bldg # | Vacant/Improved Land | Bldg Description | Year Built | SqFt | # Stories | |
|
1 |
Improved |
Ranch 1 Story |
1968 |
1,672 |
1 Stories |
|