|
|
|
| Larry Stein Oklahoma County Assessor (405) 713-1200 - Public Access System |
|
|
|
|
|
|
| Real Property Display - Screen Produced 2/28/2026 1:21:14 AM | ||||
|---|---|---|---|---|
| Account: R188541055 | Type: Residential | Location: |
4525 NW 46TH ST |
|
| Building Name/Occupant: |
|
WARR ACRES |
||
| Owner Name 1: | FERRET CARLOS ARRATE |
Parcel PIN#: |
2857-18-854-1055 |
|
| Owner Name 2: | GONZALEZ ALINA FERNANDEZ | 1/4 section #: |
2857 |
|
| Owner Name 3: | FERNANDEZ CAMILA ARRATE | Parent Acct: |
|
|
| Billing Address: | 4525 NW 46TH ST | Tax District: |
|
|
| City, State, Zip | WARR ACRES, OK 73122 | School System: |
Putnam City #1 |
|
|
Country: (If noted) |
Land Size: |
0.1469 Acres |
||
|
Land Value: 25,280 |
|
|||
|
Sect 15-T12N-R4W Qtr NE |
MERIDIAN TERRACE
Block
001
Lot
007
|
|||
| Full Legal Description: MERIDIAN TERRACE 001 007 |
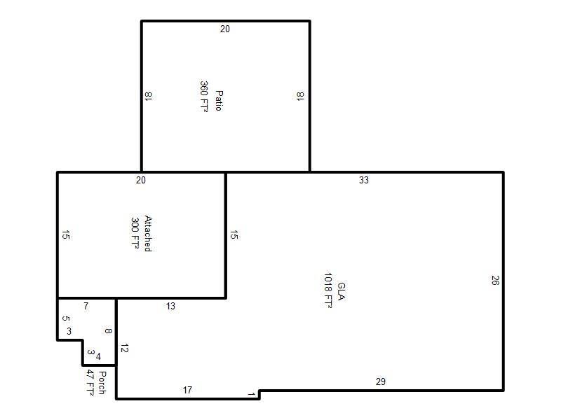
| Photo & Sketch (if available) | Comp Sales (ordered by relevancy) |
|
||||||||||||||||||
|
||||||||||||||||||||
| Value History (*The County Treasurer 405-713-1300 posts & collects actual tax amounts. Contact information HERE) | |||||||||||||
|---|---|---|---|---|---|---|---|---|---|---|---|---|---|
| Year | Market Value | Taxable Mkt Value | Gross Assessed | Exemption | Net Assessed | Millage | Est. Tax | Tax Savings | |||||
|
2025 |
171,500 |
166,118 |
18,272 |
0 |
18,272 |
115.77 |
$2,115 |
$69 |
|||||
|
2024 |
168,500 |
158,208 |
17,402 |
0 |
17,402 |
114.25 |
$1,988 |
$129 |
|||||
|
2023 |
161,000 |
150,675 |
16,574 |
0 |
16,574 |
117.84 |
$1,953 |
$134 |
|||||
|
2022 |
143,500 |
143,500 |
15,785 |
0 |
15,785 |
120.40 |
$1,901 |
$0 |
|||||
|
2021 |
93,500 |
91,451 |
10,059 |
0 |
10,059 |
119.77 |
$1,205 |
$27 |
|||||
| Property Account Status/Adjustments/Exemptions | ||
|---|---|---|
| Account # | Exemption Description | Amount |
|
R188541055 |
5% Capped Account |
0 |
| Property Deed Transaction History (Recorded in the County Clerk's Office) | |||||||
|---|---|---|---|---|---|---|---|
| Date | Type | Book | Page | Price | Grantor | Grantee | |
|
11/11/2021 |
|
Hmstd Off & |
$0 |
FERRET CARLOS ARRATE |
FERRET CARLOS ARRATE |
||
|
4/14/2021 |
|
Deeds |
$144,000 |
PAYNE ABBEY |
FERRET CARLOS ARRATE |
||
|
11/21/2017 |
|
Deeds |
$80,000 |
COLDREN KATHERINE L |
PAYNE ABBEY |
||
|
7/25/2003 |
|
Deeds |
$72,000 |
LOWRY MARSHA BETH COX |
COLDREN KATHERINE L |
||
|
11/1/1980 |
|
Historical |
$0 |
|
LOWRY MARSHA BETH COX |
||
| Last Mailed Notice of Value (N.O.V.) Information/History | ||||||||
|---|---|---|---|---|---|---|---|---|
| Year | Date | Market Value | Taxable Market Value | Gross Assessed | Exemption | Net Assessed | ||
|
2026 |
02/23/2026 |
169,500 |
169,500 |
18,645 |
0 |
18,645 |
||
|
2025 |
02/14/2025 |
171,500 |
166,118 |
18,272 |
0 |
18,272 |
||
|
2024 |
02/13/2024 |
168,500 |
158,208 |
17,402 |
0 |
17,402 |
||
|
2023 |
02/14/2023 |
161,000 |
150,675 |
16,574 |
0 |
16,574 |
||
|
2022 |
03/15/2022 |
143,500 |
143,500 |
15,785 |
0 |
15,785 |
||
| Property Building Permit History | |||||||||||
|---|---|---|---|---|---|---|---|---|---|---|---|
| Issued | Permit # | Provided by | Bldg # | Description | Est Construction Cost | Status | |||||
| No Building Permit records returned. | |||||||||||
| Click button on building number to access detailed information: | ||||||
|---|---|---|---|---|---|---|
| Bldg # | Vacant/Improved Land | Bldg Description | Year Built | SqFt | # Stories | |
|
1 |
Improved |
Ranch 1 Story |
1958 |
1,018 |
1 Stories |
|