|
|
|
| Larry Stein Oklahoma County Assessor (405) 713-1200 - Public Access System |
|
|
|
|
|
|
| Real Property Display - Screen Produced 2/27/2026 7:31:26 PM | ||||
|---|---|---|---|---|
| Account: R188933030 | Type: Residential | Location: |
5512 NW 37TH ST |
|
| Building Name/Occupant: |
|
WARR ACRES |
||
| Owner Name 1: | GARICA DAVID ALBERTO ARELLANO |
Parcel PIN#: |
2859-18-893-3030 |
|
| Owner Name 2: | VARELA LUCIA PONCE | 1/4 section #: |
2859 |
|
| Owner Name 3: | Parent Acct: |
|
||
| Billing Address: | 5512 NW 37TH ST | Tax District: |
|
|
| City, State, Zip | WARR ACRES, OK 73122-2211 | School System: |
Putnam City #1 |
|
|
Country: (If noted) |
Land Size: |
0.1818 Acres |
||
|
Land Value: 32,472 |
|
|||
|
Sect 15-T12N-R4W Qtr SW |
TANGLEWOOD
Block
002
Lot
004
|
|||
| Full Legal Description: TANGLEWOOD 002 004 |
| Photo & Sketch (if available) | Comp Sales (ordered by relevancy) |
|
||||||||||||||||||
|
||||||||||||||||||||
| Value History (*The County Treasurer 405-713-1300 posts & collects actual tax amounts. Contact information HERE) | |||||||||||||
|---|---|---|---|---|---|---|---|---|---|---|---|---|---|
| Year | Market Value | Taxable Mkt Value | Gross Assessed | Exemption | Net Assessed | Millage | Est. Tax | Tax Savings | |||||
|
2025 |
203,000 |
203,000 |
22,330 |
0 |
22,330 |
115.77 |
$2,585 |
$0 |
|||||
|
2024 |
201,500 |
201,500 |
22,165 |
0 |
22,165 |
114.25 |
$2,532 |
$0 |
|||||
|
2023 |
187,500 |
173,250 |
19,057 |
0 |
19,057 |
117.84 |
$2,246 |
$185 |
|||||
|
2022 |
165,000 |
165,000 |
18,150 |
0 |
18,150 |
120.40 |
$2,185 |
$0 |
|||||
|
2021 |
135,500 |
131,775 |
14,495 |
0 |
14,495 |
119.77 |
$1,736 |
$49 |
|||||
| Property Account Status/Adjustments/Exemptions | ||
|---|---|---|
| Account # | Exemption Description | Amount |
|
R188933030 |
5% Capped Account |
0 |
| Property Deed Transaction History (Recorded in the County Clerk's Office) | ||||||||||
|---|---|---|---|---|---|---|---|---|---|---|
| Date | Type | Book | Page | Price | Grantor | Grantee | ||||
|
7/26/2023 |
|
Deeds |
$185,000 |
BOSWELL STEPHANIE |
GARICA DAVID ALBERTO ARELLANO |
|||||
|
8/19/2021 |
|
Deeds |
$155,500 |
ELLIOTT ELIZABETH |
BOSWELL STEPHANIE |
|||||
|
8/13/2021 |
|
Deeds |
$0 |
ELLIOTT ELIZABETH |
ELLIOTT ELIZABETH |
|||||
|
8/2/2019 |
|
Deeds |
$128,000 |
OMEGA INVESTMENTS LLC |
ELLIOTT ELIZABETH |
|||||
|
4/16/2019 |
|
Hmstd Off & |
$0 |
PEDRAM SARA M TRS |
PEDRAM SARA M TRS |
|||||
| Last Mailed Notice of Value (N.O.V.) Information/History | ||||||||
|---|---|---|---|---|---|---|---|---|
| Year | Date | Market Value | Taxable Market Value | Gross Assessed | Exemption | Net Assessed | ||
|
2026 |
02/23/2026 |
205,500 |
205,500 |
22,605 |
0 |
22,605 |
||
|
2025 |
02/14/2025 |
203,000 |
203,000 |
22,330 |
0 |
22,330 |
||
|
2024 |
02/13/2024 |
201,500 |
201,500 |
22,165 |
0 |
22,165 |
||
|
2023 |
02/14/2023 |
187,500 |
173,250 |
19,057 |
0 |
19,057 |
||
|
2022 |
03/15/2022 |
165,000 |
165,000 |
18,150 |
0 |
18,150 |
||
| Property Building Permit History | |||||||||||
|---|---|---|---|---|---|---|---|---|---|---|---|
| Issued | Permit # | Provided by | Bldg # | Description | Est Construction Cost | Status | |||||
| No Building Permit records returned. | |||||||||||
| Click button on building number to access detailed information: | ||||||
|---|---|---|---|---|---|---|
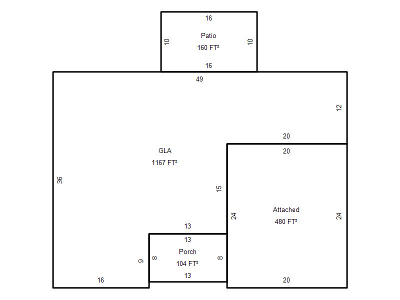
| Bldg # | Vacant/Improved Land | Bldg Description | Year Built | SqFt | # Stories | |
|
1 |
Improved |
Ranch 1 Story |
1960 |
1,167 |
1 Stories |
|