|
|
|
| Larry Stein Oklahoma County Assessor (405) 713-1200 - Public Access System |
|
|
|
|
|
|
| Real Property Display - Screen Produced 4/28/2026 10:46:51 PM | ||||
|---|---|---|---|---|
| Account: R188691115 | Type: Residential | Location: |
5404 NW 45TH TER |
|
| Building Name/Occupant: |
|
WARR ACRES |
||
| Owner Name 1: | RAMOS ABEL DE JESUS JR |
Parcel PIN#: |
2860-18-869-1115 |
|
| Owner Name 2: | 1/4 section #: |
2860 |
||
| Owner Name 3: | Parent Acct: |
|
||
| Billing Address: | 5404 NW 45TH TER | Tax District: |
|
|
| City, State, Zip | WARR ACRES, OK 73122-4307 | School System: |
Putnam City #1 |
|
|
Country: (If noted) |
Land Size: |
0.1667 Acres |
||
|
Land Value: 24,394 |
|
|||
|
Sect 15-T12N-R4W Qtr NW |
REEDERS ANN ARBOR
Block
002
Lot
002
|
|||
| Full Legal Description: REEDERS ANN ARBOR 002 002 |
| Value History (*The County Treasurer 405-713-1300 posts & collects actual tax amounts. Contact information HERE) | |||||||||||||
|---|---|---|---|---|---|---|---|---|---|---|---|---|---|
| Year | Market Value | Taxable Mkt Value | Gross Assessed | Exemption | Net Assessed | Millage | Est. Tax | Tax Savings | |||||
|
2026 |
110,000 |
110,000 |
12,100 |
0 |
12,100 |
115.77 |
$1,401 |
$0 |
|||||
|
2025 |
110,500 |
93,804 |
10,318 |
0 |
10,318 |
115.77 |
$1,195 |
$213 |
|||||
|
2024 |
111,000 |
89,338 |
9,826 |
0 |
9,826 |
114.25 |
$1,123 |
$272 |
|||||
| Property Account Status/Adjustments/Exemptions | ||||||
|---|---|---|---|---|---|---|
| Account # | Exemption Description | Amount | ||||
| No adjustment/exemption records returned. | ||||||
| Property Deed Transaction History (Recorded in the County Clerk's Office) | ||||||||||
|---|---|---|---|---|---|---|---|---|---|---|
| Date | Type | Book | Page | Price | Grantor | Grantee | ||||
|
5/1/2025 |
|
Deeds |
$113,000 |
CHRISTENSEN STEPHEN R |
RAMOS ABEL DE JESUS JR |
|||||
|
7/12/2018 |
|
Deeds |
$68,000 |
BOWLING LINDA M & CLYDE R |
CHRISTENSEN STEPHEN R |
|||||
|
10/19/1999 |
|
Deeds |
$40,000 |
SCOTT JERRY TRS SCOTT JERRY LIVING TRUST |
BOWLING LINDA M & CLYDE R |
|||||
| Last Mailed Notice of Value (N.O.V.) Information/History | ||||||||
|---|---|---|---|---|---|---|---|---|
| Year | Date | Market Value | Taxable Market Value | Gross Assessed | Exemption | Net Assessed | ||
|
2026 |
02/23/2026 |
110,000 |
110,000 |
12,100 |
0 |
12,100 |
||
|
2025 |
02/14/2025 |
110,500 |
93,804 |
10,318 |
0 |
10,318 |
||
|
2024 |
02/13/2024 |
111,000 |
89,338 |
9,826 |
0 |
9,826 |
||
| Property Building Permit History | |||||||||||
|---|---|---|---|---|---|---|---|---|---|---|---|
| Issued | Permit # | Provided by | Bldg # | Description | Est Construction Cost | Status | |||||
| No Building Permit records returned. | |||||||||||
| Click button below to access detailed information and additional property photos: | ||||||
|---|---|---|---|---|---|---|
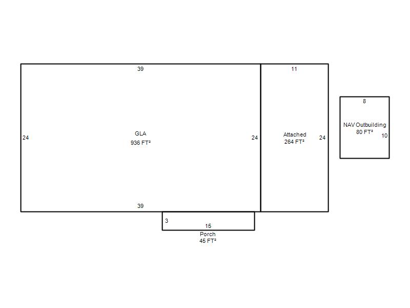
| Bldg # | Vacant/Improved Land | Bldg Description | Year Built | SqFt | # Stories | |
|
1 |
Improved |
Ranch 1 Story |
1954 |
936 |
1 Stories |
|