|
|
|
| Larry Stein Oklahoma County Assessor (405) 713-1200 - Public Access System |
|
|
|
|
|
|
| Real Property Display - Screen Produced 4/6/2026 8:22:39 AM | ||||
|---|---|---|---|---|
| Account: R188691305 | Type: Residential | Location: |
5400 NW 46TH TER |
|
| Building Name/Occupant: |
|
WARR ACRES |
||
| Owner Name 1: | POWERS INVESTMENTS LLC |
Parcel PIN#: |
2860-18-869-1305 |
|
| Owner Name 2: | 1/4 section #: |
2860 |
||
| Owner Name 3: | Parent Acct: |
|
||
| Billing Address: | 118 NW 1ST ST | Tax District: |
|
|
| City, State, Zip | MOORE, OK 73160 | School System: |
Putnam City #1 |
|
|
Country: (If noted) |
Land Size: |
0.1694 Acres |
||
|
Land Value: 24,800 |
|
|||
|
Sect 15-T12N-R4W Qtr NW |
REEDERS ANN ARBOR
Block
004
Lot
001
|
|||
| Full Legal Description: REEDERS ANN ARBOR 004 001 |
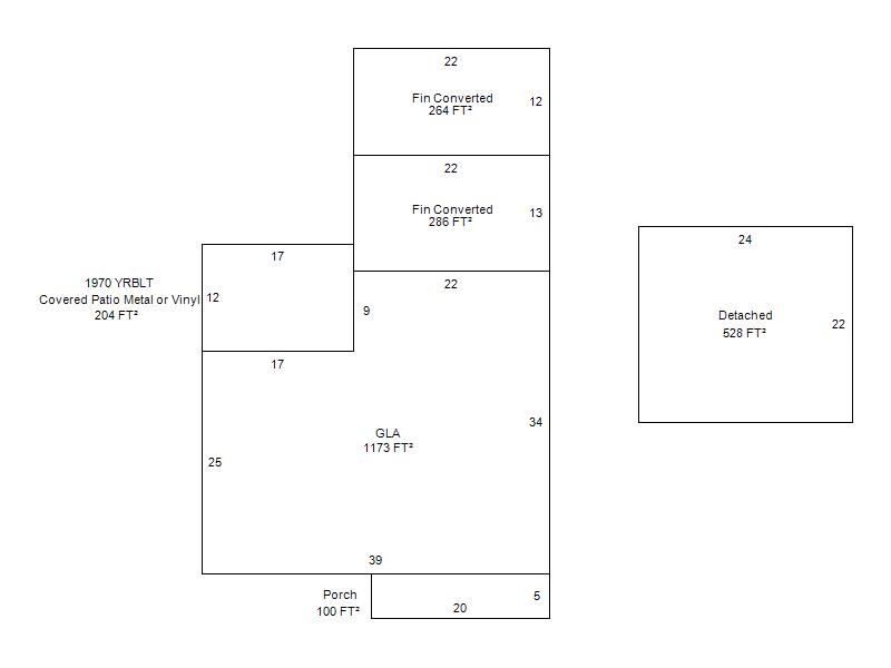
| Photo & Sketch (if available) | Comp Sales (ordered by relevancy) |
|
||||||||||||||||||
|
||||||||||||||||||||
| Value History (*The County Treasurer 405-713-1300 posts & collects actual tax amounts. Contact information HERE) | |||||||||||||
|---|---|---|---|---|---|---|---|---|---|---|---|---|---|
| Year | Market Value | Taxable Mkt Value | Gross Assessed | Exemption | Net Assessed | Millage | Est. Tax | Tax Savings | |||||
|
2026 |
138,500 |
135,441 |
14,898 |
0 |
14,898 |
115.77 |
$1,725 |
$39 |
|||||
|
2025 |
145,500 |
128,992 |
14,188 |
0 |
14,188 |
115.77 |
$1,643 |
$210 |
|||||
|
2024 |
144,500 |
122,850 |
13,513 |
0 |
13,513 |
114.25 |
$1,544 |
$272 |
|||||
|
2023 |
117,000 |
117,000 |
12,870 |
0 |
12,870 |
117.84 |
$1,517 |
$0 |
|||||
|
2022 |
124,500 |
99,967 |
10,995 |
10,995 |
0 |
120.40 |
$0 |
$1,649 |
|||||
| Property Account Status/Adjustments/Exemptions | ||
|---|---|---|
| Account # | Exemption Description | Amount |
|
R188691305 |
5% Capped Account |
0 |
| Property Deed Transaction History (Recorded in the County Clerk's Office) | |||||||
|---|---|---|---|---|---|---|---|
| Date | Type | Book | Page | Price | Grantor | Grantee | |
|
9/21/2022 |
|
Deeds |
$0 |
ACKORS WILLIAM W & JUDY K |
ACKORS WILLIAM W |
||
|
9/21/2022 |
|
Deeds |
$80,000 |
ACKORS WILLIAM W |
MLDK SERVICES LLC |
||
|
9/21/2022 |
|
Deeds |
$115,000 |
MLDK SERVICES LLC |
POWERS INVESTMENTS LLC |
||
|
11/11/1911 |
|
Historical |
$0 |
|
ACKORS WILLIAM W & JUDY K |
||
| Last Mailed Notice of Value (N.O.V.) Information/History | ||||||||
|---|---|---|---|---|---|---|---|---|
| Year | Date | Market Value | Taxable Market Value | Gross Assessed | Exemption | Net Assessed | ||
|
2026 |
02/23/2026 |
138,500 |
135,441 |
14,898 |
0 |
14,898 |
||
|
2025 |
02/14/2025 |
145,500 |
128,992 |
14,188 |
0 |
14,188 |
||
|
2024 |
02/13/2024 |
144,500 |
122,850 |
13,513 |
0 |
13,513 |
||
|
2023 |
02/14/2023 |
117,000 |
117,000 |
12,870 |
0 |
12,870 |
||
|
2022 |
03/15/2022 |
124,500 |
99,967 |
10,995 |
10,995 |
0 |
||
| Property Building Permit History | |||||||||||
|---|---|---|---|---|---|---|---|---|---|---|---|
| Issued | Permit # | Provided by | Bldg # | Description | Est Construction Cost | Status | |||||
| No Building Permit records returned. | |||||||||||
| Click button on building number to access detailed information: | ||||||
|---|---|---|---|---|---|---|
| Bldg # | Vacant/Improved Land | Bldg Description | Year Built | SqFt | # Stories | |
|
1 |
Improved |
Ranch 1 Story |
1956 |
1,173 |
1 Stories |
|