|
|
|
| Larry Stein Oklahoma County Assessor (405) 713-1200 - Public Access System |
|
|
|
|
|
|
| Real Property Display - Screen Produced 2/28/2026 1:17:11 AM | ||||
|---|---|---|---|---|
| Account: R188741155 | Type: Residential | Location: |
4324 N CIRCLE DR |
|
| Building Name/Occupant: |
|
WARR ACRES |
||
| Owner Name 1: | SCHIFFERDECKER BRANISLAV |
Parcel PIN#: |
2860-18-874-1155 |
|
| Owner Name 2: | SCHIFFERDECKER MARGARET DARCEY | 1/4 section #: |
2860 |
|
| Owner Name 3: | Parent Acct: |
|
||
| Billing Address: | 4324 N CIR | Tax District: |
|
|
| City, State, Zip | WARR ACRES, OK 73122 | School System: |
Putnam City #1 |
|
|
Country: (If noted) |
Land Size: |
0.1777 Acres |
||
|
Land Value: 19,505 |
|
|||
|
Sect 15-T12N-R4W Qtr NW |
BAPTIST HINKLE ADD
Block
000
Lot
007
|
|||
| Full Legal Description: BAPTIST HINKLE ADD 000 007 |
| Photo & Sketch (if available) | Comp Sales (ordered by relevancy) |
|
||||||||||||||||||
|
||||||||||||||||||||
| Value History (*The County Treasurer 405-713-1300 posts & collects actual tax amounts. Contact information HERE) | |||||||||||||
|---|---|---|---|---|---|---|---|---|---|---|---|---|---|
| Year | Market Value | Taxable Mkt Value | Gross Assessed | Exemption | Net Assessed | Millage | Est. Tax | Tax Savings | |||||
|
2025 |
119,500 |
98,673 |
10,853 |
0 |
10,853 |
115.77 |
$1,257 |
$265 |
|||||
|
2024 |
117,000 |
93,975 |
10,337 |
0 |
10,337 |
114.25 |
$1,181 |
$289 |
|||||
|
2023 |
89,500 |
89,500 |
9,845 |
0 |
9,845 |
117.84 |
$1,160 |
$0 |
|||||
|
2022 |
99,500 |
89,775 |
9,875 |
0 |
9,875 |
120.40 |
$1,189 |
$129 |
|||||
|
2021 |
85,500 |
85,500 |
9,405 |
0 |
9,405 |
119.77 |
$1,126 |
$0 |
|||||
| Property Account Status/Adjustments/Exemptions | ||
|---|---|---|
| Account # | Exemption Description | Amount |
|
R188741155 |
5% Capped Account |
0 |
| Property Deed Transaction History (Recorded in the County Clerk's Office) | ||||||||||
|---|---|---|---|---|---|---|---|---|---|---|
| Date | Type | Book | Page | Price | Grantor | Grantee | ||||
|
10/25/2022 |
|
Deeds |
$87,000 |
LACKEY CURTISS |
SCHIFFERDECKER BRANISLAV |
|||||
|
2/12/2018 |
|
Deeds |
$84,000 |
WICKLOW ENTERPRISES LLC |
LACKEY CURTISS |
|||||
|
7/31/2017 |
|
Hmstd Off & |
$0 |
WICKLOW ENTERPRISES INC |
WICKLOW ENTERPRISES LLC |
|||||
|
1/26/2012 |
|
Hmstd Off & |
$0 |
KARTHER SUSAN E |
WICKLOW ENTERPRISES INC |
|||||
|
12/16/2011 |
|
Deeds |
$59,000 |
HOPPER EVELYN M MEARS MICHELLE A |
KARTHER SUSAN E |
|||||
| Last Mailed Notice of Value (N.O.V.) Information/History | ||||||||
|---|---|---|---|---|---|---|---|---|
| Year | Date | Market Value | Taxable Market Value | Gross Assessed | Exemption | Net Assessed | ||
|
2026 |
02/23/2026 |
119,000 |
103,606 |
11,396 |
0 |
11,396 |
||
|
2025 |
02/14/2025 |
119,500 |
98,673 |
10,853 |
0 |
10,853 |
||
|
2024 |
02/13/2024 |
117,000 |
93,975 |
10,337 |
0 |
10,337 |
||
|
2022 |
03/15/2022 |
99,500 |
89,775 |
9,875 |
0 |
9,875 |
||
|
2021 |
03/19/2021 |
85,500 |
85,500 |
9,405 |
0 |
9,405 |
||
| Property Building Permit History | |||||||||||
|---|---|---|---|---|---|---|---|---|---|---|---|
| Issued | Permit # | Provided by | Bldg # | Description | Est Construction Cost | Status | |||||
| No Building Permit records returned. | |||||||||||
| Click button on building number to access detailed information: | ||||||
|---|---|---|---|---|---|---|
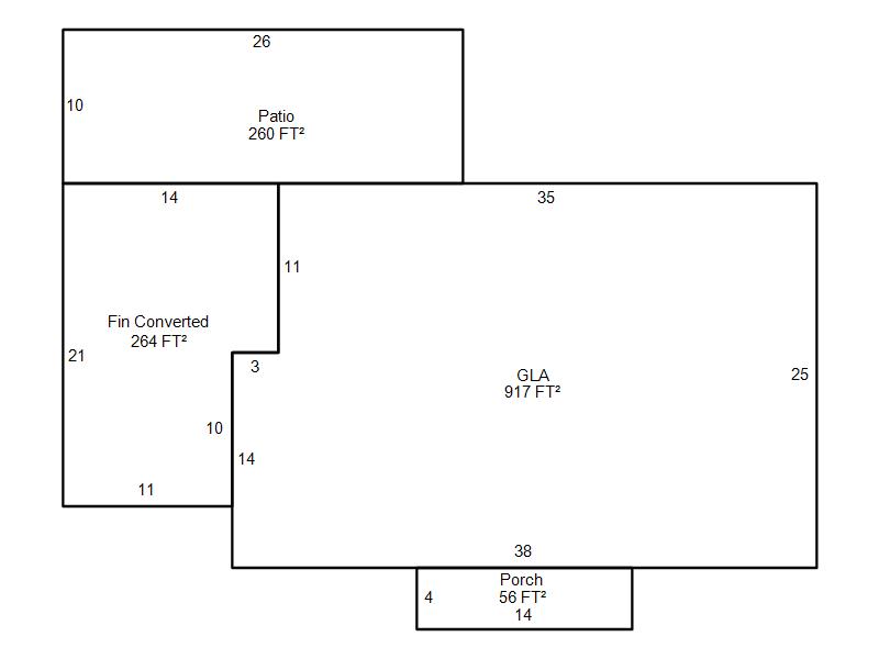
| Bldg # | Vacant/Improved Land | Bldg Description | Year Built | SqFt | # Stories | |
|
1 |
Improved |
Ranch 1 Story |
1954 |
917 |
1 Stories |
|