|
|
|
| Larry Stein Oklahoma County Assessor (405) 713-1200 - Public Access System |
|
|
|
|
|
|
| Real Property Display - Screen Produced 2/27/2026 7:31:26 PM | ||||
|---|---|---|---|---|
| Account: R170907740 | Type: Residential | Location: |
4706 N COLLEGE AVE |
|
| Building Name/Occupant: |
|
BETHANY |
||
| Owner Name 1: | DIAZ LINDSEY & GABRIEL |
Parcel PIN#: |
2864-17-090-7740 |
|
| Owner Name 2: | 1/4 section #: |
2864 |
||
| Owner Name 3: | Parent Acct: |
|
||
| Billing Address: | 4706 N COLLEGE AVE | Tax District: |
|
|
| City, State, Zip | BETHANY, OK 73008-2641 | School System: |
Bethany #88 |
|
|
Country: (If noted) |
Land Size: |
0.1860 Acres |
||
|
Land Value: 30,780 |
|
|||
|
Sect 16-T12N-R4W Qtr NW |
NEELEY SECOND ADD
Block
004
Lot
010
|
|||
| Full Legal Description: NEELEY SECOND ADD 004 010 |
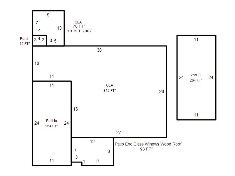
| Photo & Sketch (if available) | Comp Sales (ordered by relevancy) |
|
||||||||||||||||||
|
||||||||||||||||||||
| Value History (*The County Treasurer 405-713-1300 posts & collects actual tax amounts. Contact information HERE) | |||||||||||||
|---|---|---|---|---|---|---|---|---|---|---|---|---|---|
| Year | Market Value | Taxable Mkt Value | Gross Assessed | Exemption | Net Assessed | Millage | Est. Tax | Tax Savings | |||||
|
2025 |
147,500 |
147,500 |
16,225 |
0 |
16,225 |
134.21 |
$2,178 |
$0 |
|||||
|
2024 |
143,500 |
124,443 |
13,687 |
0 |
13,687 |
134.68 |
$1,844 |
$282 |
|||||
|
2023 |
142,000 |
118,518 |
13,036 |
0 |
13,036 |
136.23 |
$1,776 |
$352 |
|||||
|
2022 |
125,000 |
112,875 |
12,416 |
0 |
12,416 |
120.01 |
$1,490 |
$160 |
|||||
|
2021 |
107,500 |
107,500 |
11,825 |
0 |
11,825 |
119.64 |
$1,415 |
$0 |
|||||
| Property Account Status/Adjustments/Exemptions | ||
|---|---|---|
| Account # | Exemption Description | Amount |
|
R170907740 |
3% Cap Homestead |
0 |
|
R170907740 |
Homestead |
1,000 |
| Property Deed Transaction History (Recorded in the County Clerk's Office) | ||||||||||
|---|---|---|---|---|---|---|---|---|---|---|
| Date | Type | Book | Page | Price | Grantor | Grantee | ||||
|
1/22/2024 |
|
Deeds |
$150,000 |
MEYER STEVEN |
DIAZ LINDSEY & GABRIEL |
|||||
|
6/8/2020 |
|
Deeds |
$95,000 |
WESSON KENDRA S |
TEXZUS CAPTIAL VENTURES INC |
|||||
|
6/5/2020 |
|
Deeds |
$103,000 |
TEXZUS CAPTIAL VENTURES INC |
MEYER STEVEN |
|||||
|
11/27/2013 |
|
Deeds |
$0 |
WESSON KENDRA S |
WESSON KENDRA S |
|||||
|
5/24/2013 |
|
Deeds |
$0 |
SHIPMAN STEPHEN B & KENDRA S |
WESSON KENDRA S |
|||||
| Last Mailed Notice of Value (N.O.V.) Information/History | ||||||||
|---|---|---|---|---|---|---|---|---|
| Year | Date | Market Value | Taxable Market Value | Gross Assessed | Exemption | Net Assessed | ||
|
2025 |
02/14/2025 |
147,500 |
147,500 |
16,225 |
0 |
16,225 |
||
|
2024 |
02/13/2024 |
143,500 |
124,443 |
13,687 |
0 |
13,687 |
||
|
2023 |
02/14/2023 |
142,000 |
118,518 |
13,036 |
0 |
13,036 |
||
|
2022 |
03/15/2022 |
125,000 |
112,875 |
12,416 |
0 |
12,416 |
||
|
2021 |
03/19/2021 |
107,500 |
107,500 |
11,825 |
0 |
11,825 |
||
| Property Building Permit History | ||||||
|---|---|---|---|---|---|---|
| Issued | Permit # | Provided by | Bldg # | Description | Est Construction Cost | Status |
|
4/2/2008 |
10349891 |
OKLAHOMA CITY |
1 |
Add On |
0 |
Inactive |
| Click button on building number to access detailed information: | ||||||
|---|---|---|---|---|---|---|
| Bldg # | Vacant/Improved Land | Bldg Description | Year Built | SqFt | # Stories | |
|
1 |
Improved |
1½ Story Fin |
1947 |
1,154 |
1.5 Stories |
|