|
|
|
| Larry Stein Oklahoma County Assessor (405) 713-1200 - Public Access System |
|
|
|
|
|
|
| Real Property Display - Screen Produced 4/2/2026 1:34:00 AM | ||||
|---|---|---|---|---|
| Account: R172002030 | Type: Residential | Location: |
3916 PATTY LN |
|
| Building Name/Occupant: |
|
BETHANY |
||
| Owner Name 1: | RAJA MOHAMMAD |
Parcel PIN#: |
2870-17-200-2030 |
|
| Owner Name 2: | MUZAMMAL AZRA | 1/4 section #: |
2870 |
|
| Owner Name 3: | Parent Acct: |
|
||
| Billing Address: | 3112 ASTORIA BLVD | Tax District: |
|
|
| City, State, Zip | OKLAHOMA CITY, OK 73122-1334 | School System: |
Putnam City #1 |
|
|
Country: (If noted) |
Land Size: |
0.2755 Acres |
||
|
Land Value: 63,600 |
|
|||
|
Sect 18-T12N-R4W Qtr SE |
BROWNSVILLE
Block
002
Lot
004
|
|||
| Full Legal Description: BROWNSVILLE 002 004 |
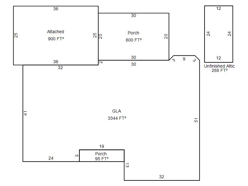
| Photo & Sketch (if available) | Comp Sales (ordered by relevancy) |
|
||||||||||||||||||
|
||||||||||||||||||||
| Value History (*The County Treasurer 405-713-1300 posts & collects actual tax amounts. Contact information HERE) | |||||||||||||
|---|---|---|---|---|---|---|---|---|---|---|---|---|---|
| Year | Market Value | Taxable Mkt Value | Gross Assessed | Exemption | Net Assessed | Millage | Est. Tax | Tax Savings | |||||
|
2026 |
382,000 |
382,000 |
42,020 |
0 |
42,020 |
122.14 |
$5,132 |
$0 |
|||||
|
2025 |
380,500 |
380,500 |
41,855 |
0 |
41,855 |
122.14 |
$5,112 |
$0 |
|||||
|
2024 |
371,500 |
371,500 |
40,865 |
0 |
40,865 |
120.52 |
$4,925 |
$0 |
|||||
|
2023 |
386,000 |
296,454 |
32,609 |
1,000 |
31,609 |
123.06 |
$3,890 |
$1,335 |
|||||
|
2022 |
301,500 |
287,820 |
31,659 |
1,000 |
30,659 |
112.54 |
$3,450 |
$282 |
|||||
| Property Account Status/Adjustments/Exemptions | ||
|---|---|---|
| Account # | Exemption Description | Amount |
|
R172002030 |
5% Capped Account |
0 |
| Property Deed Transaction History (Recorded in the County Clerk's Office) | ||||||||||
|---|---|---|---|---|---|---|---|---|---|---|
| Date | Type | Book | Page | Price | Grantor | Grantee | ||||
|
4/26/2023 |
|
Deeds |
$330,000 |
BATES MARY HELEN TRS |
RAJA MOHAMMAD |
|||||
|
2/3/2003 |
|
Deeds |
$0 |
BATES MARY H |
BATES MARY HELEN TRS |
|||||
|
10/31/2002 |
|
Deeds |
$245,000 |
SIMMONS EVELYN B TRS SIMMONS EVELYN B TRUST |
BATES MARY H |
|||||
|
11/14/1997 |
|
Historical |
$0 |
SIMMONS EVELYN |
SIMMONS EVELYN B TRS |
|||||
|
9/24/1997 |
|
Historical |
$188,333 |
BROWN ROY TRS |
SIMMONS EVELYN |
|||||
| Last Mailed Notice of Value (N.O.V.) Information/History | ||||||||
|---|---|---|---|---|---|---|---|---|
| Year | Date | Market Value | Taxable Market Value | Gross Assessed | Exemption | Net Assessed | ||
|
2026 |
02/23/2026 |
382,000 |
382,000 |
42,020 |
0 |
42,020 |
||
|
2025 |
02/14/2025 |
380,500 |
380,500 |
41,855 |
0 |
41,855 |
||
|
2024 |
02/13/2024 |
371,500 |
371,500 |
40,865 |
0 |
40,865 |
||
|
2023 |
02/14/2023 |
386,000 |
296,454 |
32,609 |
1,000 |
31,609 |
||
|
2022 |
03/15/2022 |
301,500 |
287,820 |
31,659 |
1,000 |
30,659 |
||
| Property Building Permit History | ||||||
|---|---|---|---|---|---|---|
| Issued | Permit # | Provided by | Bldg # | Description | Est Construction Cost | Status |
|
3/5/1998 |
10255417 |
BETHANY |
1 |
Add On |
30,000 |
Inactive |
| Click button on building number to access detailed information: | ||||||
|---|---|---|---|---|---|---|
| Bldg # | Vacant/Improved Land | Bldg Description | Year Built | SqFt | # Stories | |
|
1 |
Improved |
1½ Story Unfin |
1979 |
3,344 |
1.5 Stories |
|