|
|
|
| Larry Stein Oklahoma County Assessor (405) 713-1200 - Public Access System |
|
|
|
|
|
|
| Real Property Display - Screen Produced 3/13/2026 10:27:49 AM | ||||
|---|---|---|---|---|
| Account: R150832800 | Type: Residential | Location: |
5511 JUDY DR |
|
| Building Name/Occupant: |
|
DEL CITY |
||
| Owner Name 1: | EDWARDS ALEXIS |
Parcel PIN#: |
1417-15-083-2800 |
|
| Owner Name 2: | DAVILASMITH ZACHARY | 1/4 section #: |
1417 |
|
| Owner Name 3: | Parent Acct: |
|
||
| Billing Address: | 5511 JUDY DR | Tax District: |
|
|
| City, State, Zip | DEL CITY, OK 73115-4555 | School System: |
Mid-Del #52 |
|
|
Country: (If noted) |
Land Size: |
0.3254 Acres |
||
|
Land Value: 23,447 |
|
|||
|
Sect 5-T11N-R2W Qtr NE |
UNPLTD PT SEC 05 11N 2W
Block
000
Lot
000
|
|||
| Full Legal Description: UNPLTD PT OF NE4 SEC 5 11N 2W BEG 2449FT S & 393.8FT W OF NE/C OF NE4 TH W105FT S135FT E105FT N135FT TO BEG |
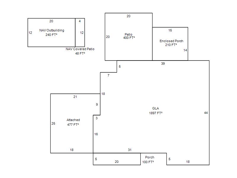
| Photo & Sketch (if available) | Comp Sales (ordered by relevancy) |
|
||||||||||||||||||
|
||||||||||||||||||||
| Value History (*The County Treasurer 405-713-1300 posts & collects actual tax amounts. Contact information HERE) | |||||||||||||
|---|---|---|---|---|---|---|---|---|---|---|---|---|---|
| Year | Market Value | Taxable Mkt Value | Gross Assessed | Exemption | Net Assessed | Millage | Est. Tax | Tax Savings | |||||
|
2025 |
243,500 |
243,500 |
26,785 |
0 |
26,785 |
114.72 |
$3,073 |
$0 |
|||||
|
2024 |
228,000 |
155,319 |
17,084 |
1,000 |
16,084 |
117.21 |
$1,885 |
$1,054 |
|||||
|
2023 |
198,000 |
150,796 |
16,587 |
1,000 |
15,587 |
112.46 |
$1,753 |
$696 |
|||||
|
2022 |
177,000 |
146,404 |
16,104 |
1,000 |
15,104 |
110.76 |
$1,673 |
$484 |
|||||
|
2021 |
154,000 |
142,140 |
15,635 |
1,000 |
14,635 |
114.70 |
$1,679 |
$264 |
|||||
| Property Account Status/Adjustments/Exemptions | ||||||
|---|---|---|---|---|---|---|
| Account # | Exemption Description | Amount | ||||
| No adjustment/exemption records returned. | ||||||
| Property Deed Transaction History (Recorded in the County Clerk's Office) | ||||||||||
|---|---|---|---|---|---|---|---|---|---|---|
| Date | Type | Book | Page | Price | Grantor | Grantee | ||||
|
7/25/2025 |
|
Deeds |
$265,000 |
WOOD INVESTMENTS 777 LLC |
EDWARDS ALEXIS |
|||||
|
10/3/2024 |
|
Hmstd Off & |
$0 |
HARRINGTON JOHN & PAMELA |
PARAGON HOMES LLC |
|||||
|
10/3/2024 |
|
Deeds |
$170,000 |
PARAGON HOMES LLC |
WOOD INVESTMENTS 777 LLC |
|||||
|
6/29/2010 |
|
Deeds |
$160,000 |
BURWELL ROGER D & TERISA J |
HARRINGTON JOHN & PAMELA |
|||||
|
8/31/2005 |
|
Deeds |
$135,000 |
MCCLARY JAMES E |
BURWELL ROGER D & TERISA J |
|||||
| Last Mailed Notice of Value (N.O.V.) Information/History | ||||||||
|---|---|---|---|---|---|---|---|---|
| Year | Date | Market Value | Taxable Market Value | Gross Assessed | Exemption | Net Assessed | ||
|
2025 |
01/31/2025 |
243,500 |
243,500 |
26,785 |
0 |
26,785 |
||
|
2024 |
01/22/2024 |
228,000 |
155,319 |
17,084 |
1,000 |
16,084 |
||
|
2023 |
01/23/2023 |
198,000 |
150,796 |
16,587 |
1,000 |
15,587 |
||
|
2022 |
02/22/2022 |
177,000 |
146,404 |
16,104 |
1,000 |
15,104 |
||
|
2021 |
02/24/2021 |
154,000 |
142,140 |
15,635 |
1,000 |
14,635 |
||
| Property Building Permit History | |||||||||||
|---|---|---|---|---|---|---|---|---|---|---|---|
| Issued | Permit # | Provided by | Bldg # | Description | Est Construction Cost | Status | |||||
| No Building Permit records returned. | |||||||||||
| Click button on building number to access detailed information: | ||||||
|---|---|---|---|---|---|---|
| Bldg # | Vacant/Improved Land | Bldg Description | Year Built | SqFt | # Stories | |
|
1 |
Improved |
Ranch 1 Story |
1964 |
1,897 |
1 Stories |
|