|
|
|
| Larry Stein Oklahoma County Assessor (405) 713-1200 - Public Access System |
|
|
|
|
|
|
| Real Property Display - Screen Produced 4/4/2026 8:53:14 PM | ||||
|---|---|---|---|---|
| Account: R175312145 | Type: Residential | Location: |
8205 NW 37TH ST |
|
| Building Name/Occupant: |
|
BETHANY |
||
| Owner Name 1: | MCBROOM LOGAN J DORNBOS |
Parcel PIN#: |
2870-17-531-2145 |
|
| Owner Name 2: | EVERETT JOANNE E | 1/4 section #: |
2870 |
|
| Owner Name 3: | Parent Acct: |
|
||
| Billing Address: | 8205 NW 37TH ST | Tax District: |
|
|
| City, State, Zip | BETHANY, OK 73008-3012 | School System: |
Putnam City #1 |
|
|
Country: (If noted) |
Land Size: |
0.1625 Acres |
||
|
Land Value: 29,028 |
|
|||
|
Sect 18-T12N-R4W Qtr SE |
LEWALLENS WESTRN SANDS 2ND
Block
014
Lot
020
|
|||
| Full Legal Description: LEWALLENS WESTRN SANDS 2ND 014 020 |
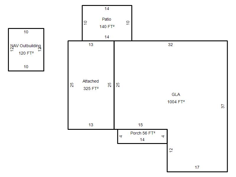
| Photo & Sketch (if available) | Comp Sales (ordered by relevancy) |
|
||||||||||||||||||
|
||||||||||||||||||||
| Value History (*The County Treasurer 405-713-1300 posts & collects actual tax amounts. Contact information HERE) | |||||||||||||
|---|---|---|---|---|---|---|---|---|---|---|---|---|---|
| Year | Market Value | Taxable Mkt Value | Gross Assessed | Exemption | Net Assessed | Millage | Est. Tax | Tax Savings | |||||
|
2026 |
160,500 |
160,500 |
17,655 |
0 |
17,655 |
122.14 |
$2,156 |
$0 |
|||||
|
2025 |
162,000 |
142,965 |
15,725 |
0 |
15,725 |
122.14 |
$1,921 |
$256 |
|||||
|
2024 |
161,000 |
136,158 |
14,977 |
0 |
14,977 |
120.52 |
$1,805 |
$329 |
|||||
|
2023 |
145,000 |
129,675 |
14,264 |
0 |
14,264 |
123.06 |
$1,755 |
$207 |
|||||
|
2022 |
123,500 |
123,500 |
13,585 |
0 |
13,585 |
112.54 |
$1,529 |
$0 |
|||||
| Property Account Status/Adjustments/Exemptions | ||||||
|---|---|---|---|---|---|---|
| Account # | Exemption Description | Amount | ||||
| No adjustment/exemption records returned. | ||||||
| Property Deed Transaction History (Recorded in the County Clerk's Office) | |||||||
|---|---|---|---|---|---|---|---|
| Date | Type | Book | Page | Price | Grantor | Grantee | |
|
7/25/2025 |
|
Deeds |
$150,000 |
DORNBOS TRAVIS C |
MCBROOM LOGAN J DORNBOS |
||
|
11/15/2019 |
|
Deeds |
$113,500 |
CRAWFORD JANET |
DORNBOS TRAVIS C |
||
|
10/26/2012 |
|
Deeds |
$83,000 |
JOHNSON STEPHEN D & ANNETTE M |
CRAWFORD JANET |
||
|
8/31/1992 |
|
Historical |
$38,500 |
VANZANT GLENN E |
JOHNSON STEPHEN D & ANNETTE M |
||
|
12/1/1981 |
|
Historical |
$0 |
|
VANZANT GLENN E |
||
| Last Mailed Notice of Value (N.O.V.) Information/History | ||||||||
|---|---|---|---|---|---|---|---|---|
| Year | Date | Market Value | Taxable Market Value | Gross Assessed | Exemption | Net Assessed | ||
|
2026 |
02/23/2026 |
160,500 |
160,500 |
17,655 |
0 |
17,655 |
||
|
2025 |
02/14/2025 |
162,000 |
142,965 |
15,725 |
0 |
15,725 |
||
|
2024 |
02/13/2024 |
161,000 |
136,158 |
14,977 |
0 |
14,977 |
||
|
2023 |
02/14/2023 |
145,000 |
129,675 |
14,264 |
0 |
14,264 |
||
|
2022 |
03/15/2022 |
123,500 |
123,500 |
13,585 |
0 |
13,585 |
||
| Property Building Permit History | |||||||||||
|---|---|---|---|---|---|---|---|---|---|---|---|
| Issued | Permit # | Provided by | Bldg # | Description | Est Construction Cost | Status | |||||
| No Building Permit records returned. | |||||||||||
| Click button on building number to access detailed information: | ||||||
|---|---|---|---|---|---|---|
| Bldg # | Vacant/Improved Land | Bldg Description | Year Built | SqFt | # Stories | |
|
1 |
Improved |
Ranch 1 Story |
1963 |
1,004 |
1 Stories |
|