|
|
|
| Larry Stein Oklahoma County Assessor (405) 713-1200 - Public Access System |
|
|
|
|
|
|
| Real Property Display - Screen Produced 4/7/2026 3:56:35 PM | ||||
|---|---|---|---|---|
| Account: R172391895 | Type: Residential | Location: |
8108 NW 29TH ST |
|
| Building Name/Occupant: |
|
BETHANY |
||
| Owner Name 1: | PAZ PAULO C DE JESUS |
Parcel PIN#: |
2874-17-239-1895 |
|
| Owner Name 2: | GIRON ZULEMA E GARCIA | 1/4 section #: |
2874 |
|
| Owner Name 3: | Parent Acct: |
|
||
| Billing Address: | 8108 NW 29TH ST | Tax District: |
|
|
| City, State, Zip | BETHANY, OK 73008-4321 | School System: |
Putnam City #1 |
|
|
Country: (If noted) |
Land Size: |
0.1653 Acres |
||
|
Land Value: 31,680 |
|
|||
|
Sect 19-T12N-R4W Qtr SE |
LAKE PARK
Block
004
Lot
003
|
|||
| Full Legal Description: LAKE PARK 004 003 |
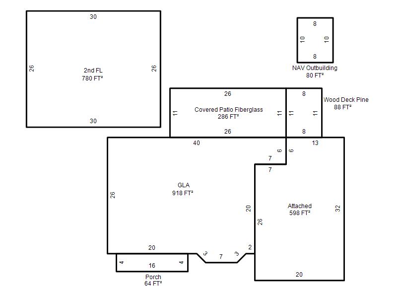
| Photo & Sketch (if available) | Comp Sales (ordered by relevancy) |
|
||||||||||||||||||
|
||||||||||||||||||||
| Value History (*The County Treasurer 405-713-1300 posts & collects actual tax amounts. Contact information HERE) | |||||||||||||
|---|---|---|---|---|---|---|---|---|---|---|---|---|---|
| Year | Market Value | Taxable Mkt Value | Gross Assessed | Exemption | Net Assessed | Millage | Est. Tax | Tax Savings | |||||
|
2026 |
242,000 |
242,000 |
26,620 |
0 |
26,620 |
122.14 |
$3,251 |
$0 |
|||||
|
2025 |
244,500 |
244,500 |
26,895 |
0 |
26,895 |
122.14 |
$3,285 |
$0 |
|||||
|
2024 |
245,000 |
245,000 |
26,950 |
0 |
26,950 |
120.52 |
$3,248 |
$0 |
|||||
|
2023 |
183,500 |
142,024 |
15,622 |
1,000 |
14,622 |
123.06 |
$1,799 |
$685 |
|||||
|
2022 |
168,000 |
137,888 |
15,166 |
1,000 |
14,166 |
112.54 |
$1,594 |
$485 |
|||||
| Property Account Status/Adjustments/Exemptions | ||
|---|---|---|
| Account # | Exemption Description | Amount |
|
R172391895 |
5% Capped Account |
0 |
| Property Deed Transaction History (Recorded in the County Clerk's Office) | |||||||
|---|---|---|---|---|---|---|---|
| Date | Type | Book | Page | Price | Grantor | Grantee | |
|
11/1/2023 |
|
Deeds |
$246,000 |
WELCH GEOFFREY D TRS |
PAZ PAULO C DE JESUS |
||
|
5/7/2019 |
|
Deeds |
$0 |
WELCH GEOFF |
WELCH GEOFFREY D TRS |
||
|
4/6/2005 |
|
Deeds |
$118,000 |
MILLER ROBERT W & TERRI L |
WELCH GEOFF |
||
|
10/1/1993 |
|
Historical |
$65,000 |
SPEED DARRELL L & TERESA E |
MILLER ROBERT W & TERRI L |
||
|
5/1/1984 |
|
Historical |
$0 |
|
SPEED DARRELL L & TERESA E |
||
| Last Mailed Notice of Value (N.O.V.) Information/History | ||||||||
|---|---|---|---|---|---|---|---|---|
| Year | Date | Market Value | Taxable Market Value | Gross Assessed | Exemption | Net Assessed | ||
|
2024 |
02/13/2024 |
245,000 |
245,000 |
26,950 |
0 |
26,950 |
||
|
2023 |
02/14/2023 |
183,500 |
142,024 |
15,622 |
1,000 |
14,622 |
||
|
2022 |
03/15/2022 |
168,000 |
137,888 |
15,166 |
1,000 |
14,166 |
||
|
2021 |
03/19/2021 |
145,500 |
133,872 |
14,725 |
1,000 |
13,725 |
||
|
2020 |
03/10/2020 |
137,000 |
129,973 |
14,297 |
1,000 |
13,297 |
||
| Property Building Permit History | |||||||||||
|---|---|---|---|---|---|---|---|---|---|---|---|
| Issued | Permit # | Provided by | Bldg # | Description | Est Construction Cost | Status | |||||
| No Building Permit records returned. | |||||||||||
| Click button on building number to access detailed information: | ||||||
|---|---|---|---|---|---|---|
| Bldg # | Vacant/Improved Land | Bldg Description | Year Built | SqFt | # Stories | |
|
1 |
Improved |
2 Story |
1963 |
1,698 |
2 Stories |
|