|
|
|
| Larry Stein Oklahoma County Assessor (405) 713-1200 - Public Access System |
|
|
|
|
|
|
| Real Property Display - Screen Produced 2/27/2026 4:46:47 PM | ||||
|---|---|---|---|---|
| Account: R173901430 | Type: Residential | Location: |
7728 NW 27TH ST |
|
| Building Name/Occupant: |
|
BETHANY |
||
| Owner Name 1: | HEATH CONNOR E |
Parcel PIN#: |
2879-17-390-1430 |
|
| Owner Name 2: | 1/4 section #: |
2879 |
||
| Owner Name 3: | Parent Acct: |
|
||
| Billing Address: | 7728 NW 27TH ST | Tax District: |
|
|
| City, State, Zip | BETHANY, OK 73008-4412 | School System: |
Putnam City #1 |
|
|
Country: (If noted) |
Land Size: |
0.2152 Acres |
||
|
Land Value: 37,488 |
|
|||
|
Sect 20-T12N-R4W Qtr SW |
DEVILLE PARK 2ND
Block
003
Lot
000
|
|||
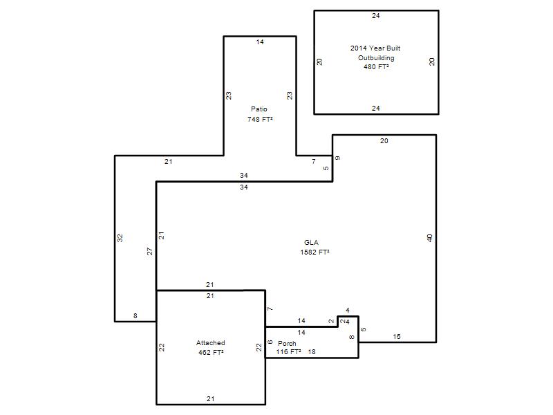
| Full Legal Description: DEVILLE PARK 2ND 003 000 LOT 8 EX W1FT |
| Photo & Sketch (if available) | Comp Sales (ordered by relevancy) |
|
||||||||||||||||||
|
||||||||||||||||||||
| Value History (*The County Treasurer 405-713-1300 posts & collects actual tax amounts. Contact information HERE) | |||||||||||||
|---|---|---|---|---|---|---|---|---|---|---|---|---|---|
| Year | Market Value | Taxable Mkt Value | Gross Assessed | Exemption | Net Assessed | Millage | Est. Tax | Tax Savings | |||||
|
2025 |
219,000 |
219,000 |
24,090 |
0 |
24,090 |
122.14 |
$2,942 |
$0 |
|||||
|
2024 |
217,000 |
184,756 |
20,322 |
0 |
20,322 |
120.52 |
$2,449 |
$427 |
|||||
|
2023 |
206,500 |
175,959 |
19,354 |
0 |
19,354 |
123.06 |
$2,382 |
$413 |
|||||
|
2022 |
184,000 |
167,580 |
18,433 |
0 |
18,433 |
112.54 |
$2,075 |
$203 |
|||||
|
2021 |
163,500 |
159,600 |
17,556 |
0 |
17,556 |
112.07 |
$1,968 |
$48 |
|||||
| Property Account Status/Adjustments/Exemptions | ||
|---|---|---|
| Account # | Exemption Description | Amount |
|
R173901430 |
5% Capped Account |
0 |
| Property Deed Transaction History (Recorded in the County Clerk's Office) | ||||||||||
|---|---|---|---|---|---|---|---|---|---|---|
| Date | Type | Book | Page | Price | Grantor | Grantee | ||||
|
7/3/2024 |
|
Deeds |
$240,500 |
BROWN JACOB TAYLOR |
HEATH CONNOR E |
|||||
|
6/30/2017 |
|
Deeds |
$157,000 |
CRAIG JUSTIN & MALLORI |
BROWN JACOB TAYLOR |
|||||
|
6/12/2013 |
|
Deeds |
$101,500 |
DANDRIOLE JOHN CHANDLER SUC TRS DANDRIOLE CHARLOTTE ANNA SUC |
CRAIG JUSTIN & MALLORI |
|||||
|
6/11/2013 |
|
Hmstd Off & |
$0 |
DANDRIOLE MARY ANNA TRS DANDRIOLE MARY A LIVING TRUST |
DANDRIOLE JOHN CHANDLER SUC TRS DANDRIOLE CHARLOTTE ANNA SUC |
|||||
|
6/17/2010 |
|
Deeds |
$0 |
DANDRIOLE MARY ANNA |
DANDRIOLE MARY ANNA TRS DANDRIOLE MARY A LIVING TRUST |
|||||
| Last Mailed Notice of Value (N.O.V.) Information/History | ||||||||
|---|---|---|---|---|---|---|---|---|
| Year | Date | Market Value | Taxable Market Value | Gross Assessed | Exemption | Net Assessed | ||
|
2026 |
02/23/2026 |
219,500 |
219,500 |
24,145 |
0 |
24,145 |
||
|
2025 |
02/14/2025 |
219,000 |
219,000 |
24,090 |
0 |
24,090 |
||
|
2024 |
02/13/2024 |
217,000 |
184,756 |
20,322 |
0 |
20,322 |
||
|
2023 |
02/14/2023 |
206,500 |
175,959 |
19,354 |
0 |
19,354 |
||
|
2022 |
03/15/2022 |
184,000 |
167,580 |
18,433 |
0 |
18,433 |
||
| Property Building Permit History | |||||||||||
|---|---|---|---|---|---|---|---|---|---|---|---|
| Issued | Permit # | Provided by | Bldg # | Description | Est Construction Cost | Status | |||||
| No Building Permit records returned. | |||||||||||
| Click button on building number to access detailed information: | ||||||
|---|---|---|---|---|---|---|
| Bldg # | Vacant/Improved Land | Bldg Description | Year Built | SqFt | # Stories | |
|
1 |
Improved |
Ranch 1 Story |
1964 |
1,582 |
1 Stories |
|