|
|
|
| Larry Stein Oklahoma County Assessor (405) 713-1200 - Public Access System |
|
|
|
|
|
|
| Real Property Display - Screen Produced 2/27/2026 9:23:53 PM | ||||
|---|---|---|---|---|
| Account: R175431355 | Type: Residential | Location: |
7901 NW 28TH TER |
|
| Building Name/Occupant: |
|
BETHANY |
||
| Owner Name 1: | SAAVEDRA OSCAR OCTAVIO VIDAL |
Parcel PIN#: |
2879-17-543-1355 |
|
| Owner Name 2: | BONILLA DUNIA MARISELA GARCIA | 1/4 section #: |
2879 |
|
| Owner Name 3: | Parent Acct: |
|
||
| Billing Address: | 7901 NW 28TH TER | Tax District: |
|
|
| City, State, Zip | BETHANY, OK 73008-4465 | School System: |
Putnam City #1 |
|
|
Country: (If noted) |
Land Size: |
0.2262 Acres |
||
|
Land Value: 37,942 |
|
|||
|
Sect 20-T12N-R4W Qtr SW |
ROYCE BROWNS TROPICANA VLG
Block
004
Lot
012
|
|||
| Full Legal Description: ROYCE BROWNS TROPICANA VLG 004 012 |
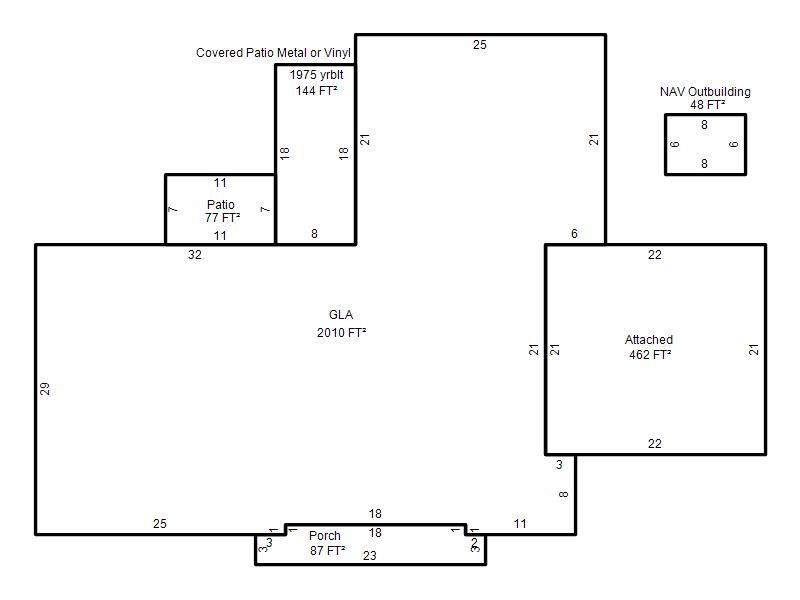
| Photo & Sketch (if available) | Comp Sales (ordered by relevancy) |
|
||||||||||||||||||
|
||||||||||||||||||||
| Value History (*The County Treasurer 405-713-1300 posts & collects actual tax amounts. Contact information HERE) | |||||||||||||
|---|---|---|---|---|---|---|---|---|---|---|---|---|---|
| Year | Market Value | Taxable Mkt Value | Gross Assessed | Exemption | Net Assessed | Millage | Est. Tax | Tax Savings | |||||
|
2025 |
219,000 |
219,000 |
24,090 |
0 |
24,090 |
122.14 |
$2,942 |
$0 |
|||||
|
2024 |
220,000 |
220,000 |
24,200 |
0 |
24,200 |
120.52 |
$2,917 |
$0 |
|||||
|
2023 |
210,500 |
196,875 |
21,656 |
0 |
21,656 |
123.06 |
$2,665 |
$184 |
|||||
|
2022 |
187,500 |
187,500 |
20,625 |
0 |
20,625 |
112.54 |
$2,321 |
$0 |
|||||
|
2021 |
164,500 |
149,497 |
16,443 |
1,000 |
15,443 |
112.07 |
$1,731 |
$297 |
|||||
| Property Account Status/Adjustments/Exemptions | ||
|---|---|---|
| Account # | Exemption Description | Amount |
|
R175431355 |
5% Capped Account |
0 |
| Property Deed Transaction History (Recorded in the County Clerk's Office) | |||||||
|---|---|---|---|---|---|---|---|
| Date | Type | Book | Page | Price | Grantor | Grantee | |
|
2/28/2023 |
|
Deeds |
$225,000 |
SANDROCK HOLDINGS LLC |
SAAVEDRA OSCAR OCTAVIO VIDAL |
||
|
12/10/2021 |
|
Deeds |
$200,000 |
DUEY CARL |
SANDROCK HOLDINGS LLC |
||
|
12/14/2000 |
|
Deeds |
$100,000 |
HOWARD RICHARD E & WINIFRED |
DUEY CARL |
||
|
11/11/1911 |
|
Historical |
$0 |
|
HOWARD RICHARD E & WINIFRED |
||
| Last Mailed Notice of Value (N.O.V.) Information/History | ||||||||
|---|---|---|---|---|---|---|---|---|
| Year | Date | Market Value | Taxable Market Value | Gross Assessed | Exemption | Net Assessed | ||
|
2024 |
02/13/2024 |
220,000 |
220,000 |
24,200 |
0 |
24,200 |
||
|
2023 |
02/14/2023 |
210,500 |
196,875 |
21,656 |
0 |
21,656 |
||
|
2022 |
03/15/2022 |
187,500 |
187,500 |
20,625 |
0 |
20,625 |
||
|
2021 |
03/19/2021 |
164,500 |
149,497 |
16,444 |
1,000 |
15,444 |
||
|
2020 |
03/10/2020 |
154,000 |
145,143 |
15,965 |
1,000 |
14,965 |
||
| Property Building Permit History | |||||||||||
|---|---|---|---|---|---|---|---|---|---|---|---|
| Issued | Permit # | Provided by | Bldg # | Description | Est Construction Cost | Status | |||||
| No Building Permit records returned. | |||||||||||
| Click button on building number to access detailed information: | ||||||
|---|---|---|---|---|---|---|
| Bldg # | Vacant/Improved Land | Bldg Description | Year Built | SqFt | # Stories | |
|
1 |
Improved |
Ranch 1 Story |
1964 |
2,010 |
1 Stories |
|