|
|
|
| Larry Stein Oklahoma County Assessor (405) 713-1200 - Public Access System |
|
|
|
|
|
|
| Real Property Display - Screen Produced 4/3/2026 1:44:47 AM | ||||
|---|---|---|---|---|
| Account: R173784715 | Type: Residential | Location: |
3308 N THOMPKINS AVE |
|
| Building Name/Occupant: |
|
BETHANY |
||
| Owner Name 1: | SIEMS THOMAS & VICTORIA |
Parcel PIN#: |
2880-17-378-4715 |
|
| Owner Name 2: | 1/4 section #: |
2880 |
||
| Owner Name 3: | Parent Acct: |
|
||
| Billing Address: | 3308 N THOMPKINS AVE | Tax District: |
|
|
| City, State, Zip | BETHANY, OK 73008-3633 | School System: |
Putnam City #1 |
|
|
Country: (If noted) |
Land Size: |
0.9100 Acres |
||
|
Land Value: 34,672 |
|
|||
|
Sect 20-T12N-R4W Qtr NW |
UNPLTD PT SEC 20 12N 4W
Block
000
Lot
000
|
|||
| Full Legal Description: UNPLTD PT SEC 20 12N 4W 000 000 PT OF NW4 SEC 20 12N 4W BEG 206.21FT N OF SW/C NE4 NW4 TH N169.30FT E232FT S169.30FT W232FT TO BEG |
| Photo & Sketch (if available) | Comp Sales (ordered by relevancy) |
|
||||||||||||||||||
|
||||||||||||||||||||
| Value History (*The County Treasurer 405-713-1300 posts & collects actual tax amounts. Contact information HERE) | |||||||||||||
|---|---|---|---|---|---|---|---|---|---|---|---|---|---|
| Year | Market Value | Taxable Mkt Value | Gross Assessed | Exemption | Net Assessed | Millage | Est. Tax | Tax Savings | |||||
|
2026 |
269,000 |
269,000 |
29,590 |
1,000 |
28,590 |
122.14 |
$3,492 |
$122 |
|||||
|
2025 |
292,000 |
288,034 |
31,682 |
1,000 |
30,682 |
122.14 |
$3,748 |
$175 |
|||||
|
2024 |
291,000 |
279,645 |
30,760 |
1,000 |
29,760 |
120.52 |
$3,587 |
$271 |
|||||
|
2023 |
271,500 |
271,500 |
29,865 |
1,000 |
28,865 |
123.06 |
$3,552 |
$123 |
|||||
|
2022 |
239,000 |
163,623 |
17,997 |
1,000 |
16,997 |
112.54 |
$1,913 |
$1,046 |
|||||
| Property Account Status/Adjustments/Exemptions | ||
|---|---|---|
| Account # | Exemption Description | Amount |
|
R173784715 |
3% Cap Homestead |
0 |
|
R173784715 |
Homestead |
1,000 |
| Property Deed Transaction History (Recorded in the County Clerk's Office) | |||||||
|---|---|---|---|---|---|---|---|
| Date | Type | Book | Page | Price | Grantor | Grantee | |
|
9/21/2022 |
|
Deeds |
$260,000 |
POSEY JAMES N TRS |
SIEMS THOMAS & VICTORIA |
||
|
3/30/2005 |
|
Deeds |
$0 |
POSEY JAMES N & SHIRLEY J |
POSEY JAMES N TRS |
||
|
11/11/1911 |
|
Historical |
$0 |
|
POSEY JAMES N & SHIRLEY J |
||
| Last Mailed Notice of Value (N.O.V.) Information/History | ||||||||
|---|---|---|---|---|---|---|---|---|
| Year | Date | Market Value | Taxable Market Value | Gross Assessed | Exemption | Net Assessed | ||
|
2025 |
02/14/2025 |
292,000 |
288,034 |
31,682 |
1,000 |
30,682 |
||
|
2024 |
02/13/2024 |
291,000 |
279,645 |
30,760 |
1,000 |
29,760 |
||
|
2023 |
02/14/2023 |
271,500 |
271,500 |
29,865 |
0 |
29,865 |
||
|
2022 |
03/15/2022 |
239,000 |
163,623 |
17,997 |
1,000 |
16,997 |
||
|
2021 |
03/19/2021 |
201,500 |
158,858 |
17,474 |
1,000 |
16,474 |
||
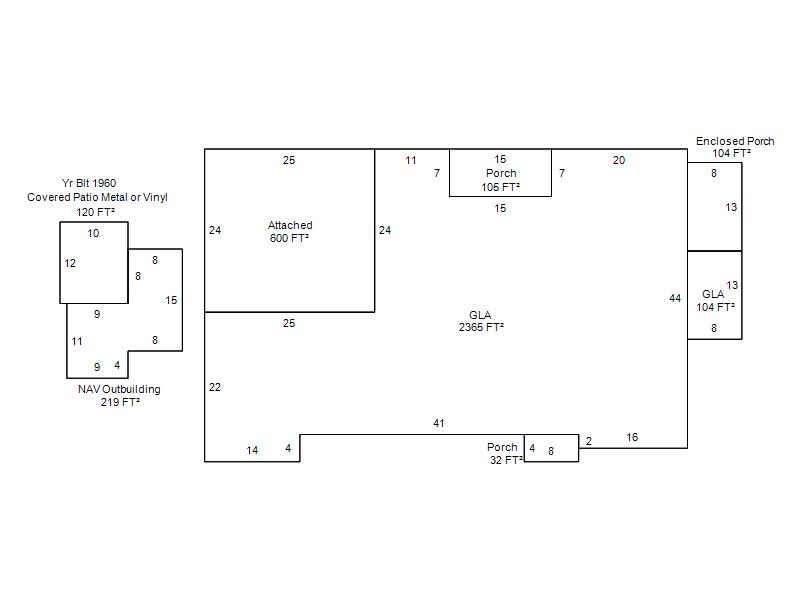
| Property Building Permit History | ||||||
|---|---|---|---|---|---|---|
| Issued | Permit # | Provided by | Bldg # | Description | Est Construction Cost | Status |
|
10/1/1996 |
10255822 |
BETHANY |
1 |
Add On |
23,200 |
Inactive |
| Click button on building number to access detailed information: | ||||||
|---|---|---|---|---|---|---|
| Bldg # | Vacant/Improved Land | Bldg Description | Year Built | SqFt | # Stories | |
|
1 |
Improved |
Ranch 1 Story |
1960 |
2,469 |
1 Stories |
|