|
|
|
| Larry Stein Oklahoma County Assessor (405) 713-1200 - Public Access System |
|
|
|
|
|
|
| Real Property Display - Screen Produced 3/22/2026 2:03:26 PM | ||||
|---|---|---|---|---|
| Account: R145895285 | Type: Residential | Location: |
6212 NW 28TH ST |
|
| Building Name/Occupant: |
|
OKLAHOMA CITY |
||
| Owner Name 1: | ESPARZA JUAN |
Parcel PIN#: |
2882-14-589-5285 |
|
| Owner Name 2: | 1/4 section #: |
2882 |
||
| Owner Name 3: | Parent Acct: |
|
||
| Billing Address: | 6209 NW 28TH ST | Tax District: |
|
|
| City, State, Zip | OKLAHOMA CITY, OK 73127-1408 | School System: |
Putnam City #1 |
|
|
Country: (If noted) |
Land Size: |
0.2300 Acres |
||
|
Land Value: 36,434 |
|
|||
|
Sect 21-T12N-R4W Qtr SE |
UNPLTD PT SEC 21 12N 4W
Block
000
Lot
000
|
|||
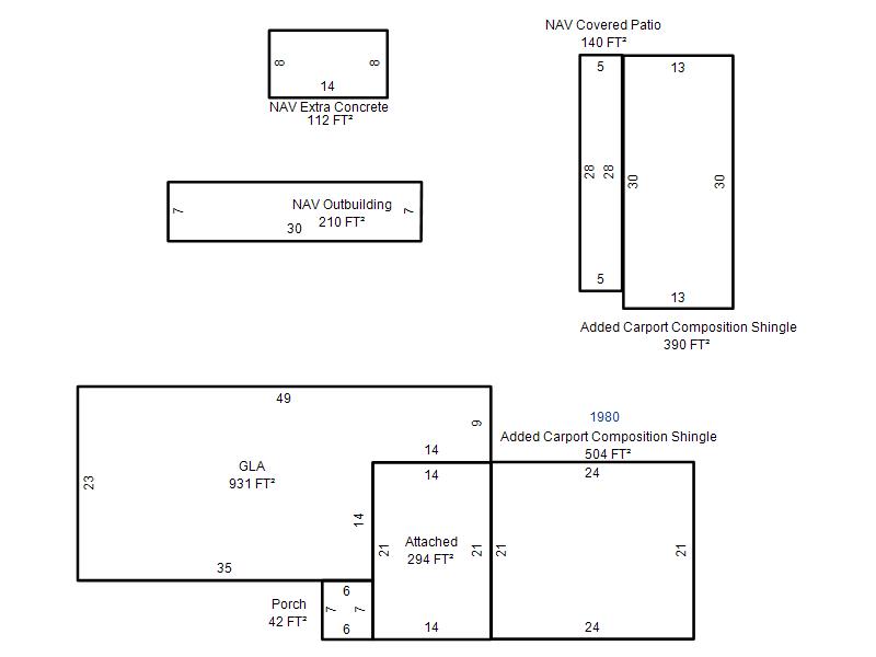
| Full Legal Description: UNPLTD PT OF SE4 SEC 21 12N 4W BEG 710FT S & 1489.89FT W OF NE/C OF SE4 TH W80FT S125FT E80FT N125FT TO BEG |
| Photo & Sketch (if available) | Comp Sales (ordered by relevancy) |
|
||||||||||||||||||
|
||||||||||||||||||||
| Value History (*The County Treasurer 405-713-1300 posts & collects actual tax amounts. Contact information HERE) | |||||||||||||
|---|---|---|---|---|---|---|---|---|---|---|---|---|---|
| Year | Market Value | Taxable Mkt Value | Gross Assessed | Exemption | Net Assessed | Millage | Est. Tax | Tax Savings | |||||
|
2025 |
146,000 |
99,813 |
10,978 |
0 |
10,978 |
123.17 |
$1,352 |
$626 |
|||||
|
2024 |
142,500 |
95,060 |
10,456 |
1,000 |
9,456 |
122.30 |
$1,157 |
$761 |
|||||
|
2023 |
132,500 |
92,292 |
10,151 |
1,000 |
9,151 |
121.91 |
$1,116 |
$661 |
|||||
|
2022 |
116,000 |
89,604 |
9,855 |
1,000 |
8,855 |
123.41 |
$1,093 |
$482 |
|||||
|
2021 |
98,500 |
86,995 |
9,568 |
1,000 |
8,568 |
122.23 |
$1,047 |
$277 |
|||||
| Property Account Status/Adjustments/Exemptions | ||||||
|---|---|---|---|---|---|---|
| Account # | Exemption Description | Amount | ||||
| No adjustment/exemption records returned. | ||||||
| Property Deed Transaction History (Recorded in the County Clerk's Office) | |||||||
|---|---|---|---|---|---|---|---|
| Date | Type | Book | Page | Price | Grantor | Grantee | |
|
1/15/2025 |
|
Deeds |
$120,000 |
BRADY JUDY C |
ESPARZA JUAN |
||
|
10/29/2024 |
|
Hmstd Off & |
$0 |
PIERCE T LAURE |
BRADY JUDY C |
||
|
8/29/2000 |
|
Deeds |
$0 |
KING CLIFFORD |
PIERCE T LAURE |
||
|
6/1/1979 |
|
Historical |
$0 |
|
PIERCE T LAURE |
||
| Last Mailed Notice of Value (N.O.V.) Information/History | ||||||||
|---|---|---|---|---|---|---|---|---|
| Year | Date | Market Value | Taxable Market Value | Gross Assessed | Exemption | Net Assessed | ||
|
2026 |
02/23/2026 |
143,000 |
143,000 |
15,730 |
0 |
15,730 |
||
|
2025 |
02/14/2025 |
146,000 |
99,813 |
10,978 |
0 |
10,978 |
||
|
2024 |
02/13/2024 |
142,500 |
95,060 |
10,456 |
1,000 |
9,456 |
||
|
2023 |
02/14/2023 |
132,500 |
92,292 |
10,151 |
1,000 |
9,151 |
||
|
2022 |
03/15/2022 |
116,000 |
89,604 |
9,855 |
1,000 |
8,855 |
||
| Property Building Permit History | |||||||||||
|---|---|---|---|---|---|---|---|---|---|---|---|
| Issued | Permit # | Provided by | Bldg # | Description | Est Construction Cost | Status | |||||
| No Building Permit records returned. | |||||||||||
| Click button on building number to access detailed information: | ||||||
|---|---|---|---|---|---|---|
| Bldg # | Vacant/Improved Land | Bldg Description | Year Built | SqFt | # Stories | |
|
1 |
Improved |
Ranch 1 Story |
1965 |
931 |
1 Stories |
|