|
|
|
| Larry Stein Oklahoma County Assessor (405) 713-1200 - Public Access System |
|
|
|
|
|
|
| Real Property Display - Screen Produced 3/24/2026 8:56:00 AM | ||||
|---|---|---|---|---|
| Account: R172442325 | Type: Residential | Location: |
6728 NW 28TH ST |
|
| Building Name/Occupant: |
|
BETHANY |
||
| Owner Name 1: | VIRAMONTES RODOLFO RODRIGUEZ |
Parcel PIN#: |
2883-17-244-2325 |
|
| Owner Name 2: | GARCIA ELIZABETH SERNA | 1/4 section #: |
2883 |
|
| Owner Name 3: | Parent Acct: |
|
||
| Billing Address: | 6728 NW 28TH ST | Tax District: |
|
|
| City, State, Zip | BETHANY, OK 73008 | School System: |
Putnam City #1 |
|
|
Country: (If noted) |
Land Size: |
0.1864 Acres |
||
|
Land Value: 25,984 |
|
|||
|
Sect 21-T12N-R4W Qtr SW |
ANDYS SUB ADDITION
Block
007
Lot
008
|
|||
| Full Legal Description: ANDYS SUB ADDITION 007 008 |
| Photo & Sketch (if available) | Comp Sales (ordered by relevancy) |
|
||||||||||||||||||
|
||||||||||||||||||||
| Value History (*The County Treasurer 405-713-1300 posts & collects actual tax amounts. Contact information HERE) | |||||||||||||
|---|---|---|---|---|---|---|---|---|---|---|---|---|---|
| Year | Market Value | Taxable Mkt Value | Gross Assessed | Exemption | Net Assessed | Millage | Est. Tax | Tax Savings | |||||
|
2025 |
157,500 |
157,500 |
17,325 |
0 |
17,325 |
122.14 |
$2,116 |
$0 |
|||||
|
2024 |
153,000 |
153,000 |
16,830 |
0 |
16,830 |
120.52 |
$2,028 |
$0 |
|||||
|
2023 |
156,000 |
156,000 |
17,160 |
0 |
17,160 |
123.06 |
$2,112 |
$0 |
|||||
|
2022 |
121,500 |
100,895 |
11,097 |
1,000 |
10,097 |
112.54 |
$1,136 |
$368 |
|||||
|
2021 |
104,500 |
97,957 |
10,774 |
1,000 |
9,774 |
112.07 |
$1,096 |
$193 |
|||||
| Property Account Status/Adjustments/Exemptions | ||
|---|---|---|
| Account # | Exemption Description | Amount |
|
R172442325 |
5% Capped Account |
0 |
| Property Deed Transaction History (Recorded in the County Clerk's Office) | ||||||||||
|---|---|---|---|---|---|---|---|---|---|---|
| Date | Type | Book | Page | Price | Grantor | Grantee | ||||
|
4/29/2022 |
|
Deeds |
$155,000 |
KHAMPHAN VISET |
VIRAMONTES RODOLFO RODRIGUEZ |
|||||
|
3/26/2013 |
|
Hmstd Off & |
$0 |
NEWTON LUCY E TRS NEWTON LARRY LEON TRS |
NEWTON LARRY LEON SUC TRS NEWTON LIVING TRUST |
|||||
|
3/26/2013 |
|
Deeds |
$89,000 |
NEWTON LARRY LEON SUC TRS NEWTON LIVING TRUST |
KHAMPHAN VISET |
|||||
|
6/12/2008 |
|
Deeds |
$0 |
NEWTON ALBERT R & LUCY E TRS NEWTON LIVING TRUST |
NEWTON LUCY E TRS NEWTON LARRY LEON TRS |
|||||
|
11/6/1995 |
|
Historical |
$0 |
NEWTON A R JR & LUCY |
NEWTON ALBERT R & LUCY E TRS |
|||||
| Last Mailed Notice of Value (N.O.V.) Information/History | ||||||||
|---|---|---|---|---|---|---|---|---|
| Year | Date | Market Value | Taxable Market Value | Gross Assessed | Exemption | Net Assessed | ||
|
2025 |
02/14/2025 |
157,500 |
157,500 |
17,325 |
0 |
17,325 |
||
|
2023 |
02/14/2023 |
156,000 |
156,000 |
17,160 |
0 |
17,160 |
||
|
2022 |
03/15/2022 |
121,500 |
100,895 |
11,097 |
1,000 |
10,097 |
||
|
2021 |
03/19/2021 |
104,500 |
97,957 |
10,775 |
1,000 |
9,775 |
||
|
2020 |
03/10/2020 |
98,000 |
95,104 |
10,461 |
1,000 |
9,461 |
||
| Property Building Permit History | |||||||||||
|---|---|---|---|---|---|---|---|---|---|---|---|
| Issued | Permit # | Provided by | Bldg # | Description | Est Construction Cost | Status | |||||
| No Building Permit records returned. | |||||||||||
| Click button on building number to access detailed information: | ||||||
|---|---|---|---|---|---|---|
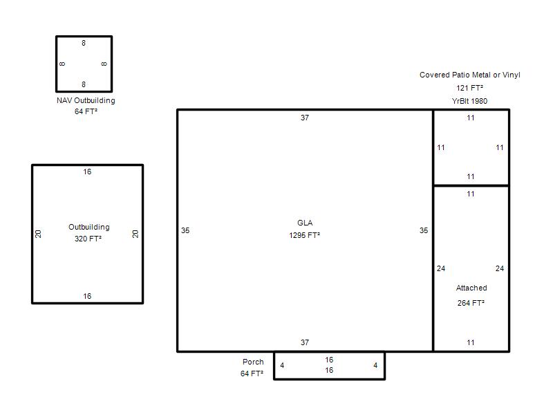
| Bldg # | Vacant/Improved Land | Bldg Description | Year Built | SqFt | # Stories | |
|
1 |
Improved |
Ranch 1 Story |
1957 |
1,295 |
1 Stories |
|