|
|
|
| Larry Stein Oklahoma County Assessor (405) 713-1200 - Public Access System |
|
|
|
|
|
|
| Real Property Display - Screen Produced 3/22/2026 12:23:41 PM | ||||
|---|---|---|---|---|
| Account: R172560075 | Type: Residential | Location: |
3507 N PENIEL AVE |
|
| Building Name/Occupant: |
|
BETHANY |
||
| Owner Name 1: | MARTINEZ EDUARDO & MARGARITA |
Parcel PIN#: |
2884-17-256-0075 |
|
| Owner Name 2: | 1/4 section #: |
2884 |
||
| Owner Name 3: | Parent Acct: |
|
||
| Billing Address: | 3507 N PENIEL AVE | Tax District: |
|
|
| City, State, Zip | BETHANY, OK 73008-4160 | School System: |
Putnam City #1 |
|
|
Country: (If noted) |
Land Size: |
0.1717 Acres |
||
|
Land Value: 17,952 |
|
|||
|
Sect 21-T12N-R4W Qtr NW |
BEDNAR SECOND ADD
Block
001
Lot
000
|
|||
| Full Legal Description: BEDNAR SECOND ADD 001 000 N 1/2 LOT 1 & N 1/2 OF E50FT LOT 2 |
| Photo & Sketch (if available) | Comp Sales (ordered by relevancy) |
|
||||||||||||||||||
|
||||||||||||||||||||
| Value History (*The County Treasurer 405-713-1300 posts & collects actual tax amounts. Contact information HERE) | |||||||||||||
|---|---|---|---|---|---|---|---|---|---|---|---|---|---|
| Year | Market Value | Taxable Mkt Value | Gross Assessed | Exemption | Net Assessed | Millage | Est. Tax | Tax Savings | |||||
|
2025 |
139,000 |
114,864 |
12,634 |
0 |
12,634 |
122.14 |
$1,543 |
$324 |
|||||
|
2024 |
137,000 |
109,395 |
12,033 |
0 |
12,033 |
120.52 |
$1,450 |
$366 |
|||||
|
2023 |
129,000 |
104,186 |
11,459 |
0 |
11,459 |
123.06 |
$1,410 |
$336 |
|||||
|
2022 |
113,000 |
99,225 |
10,914 |
0 |
10,914 |
112.54 |
$1,228 |
$171 |
|||||
|
2021 |
96,500 |
94,500 |
10,395 |
0 |
10,395 |
112.07 |
$1,165 |
$25 |
|||||
| Property Account Status/Adjustments/Exemptions | ||||||
|---|---|---|---|---|---|---|
| Account # | Exemption Description | Amount | ||||
| No adjustment/exemption records returned. | ||||||
| Property Deed Transaction History (Recorded in the County Clerk's Office) | ||||||||||
|---|---|---|---|---|---|---|---|---|---|---|
| Date | Type | Book | Page | Price | Grantor | Grantee | ||||
|
2/10/2025 |
|
Deeds |
$175,000 |
BROWN BRADY L |
MARTINEZ EDUARDO & MARGARITA |
|||||
|
6/30/2009 |
|
Deeds |
$90,000 |
RUMBAUGH CRYSTAL GAYL |
BROWN BRADY L |
|||||
|
2/24/2004 |
|
Deeds |
$70,000 |
HOSKINS CONNIE L TRS HOSKINS CONNIE L TRUST |
RUMBAUGH CRYSTAL GAYL |
|||||
|
6/13/1996 |
|
Historical |
$0 |
HOSKINS CONNIE L |
HOSKINS CONNIE L TRS |
|||||
|
3/31/1987 |
|
Historical |
$0 |
HOSKINS CHARLIE A & CONNIE L |
HOSKINS CONNIE L |
|||||
| Last Mailed Notice of Value (N.O.V.) Information/History | ||||||||
|---|---|---|---|---|---|---|---|---|
| Year | Date | Market Value | Taxable Market Value | Gross Assessed | Exemption | Net Assessed | ||
|
2026 |
02/23/2026 |
152,500 |
152,500 |
16,775 |
0 |
16,775 |
||
|
2025 |
02/14/2025 |
139,000 |
114,864 |
12,634 |
0 |
12,634 |
||
|
2025 |
03/28/2025 |
139,000 |
114,864 |
12,634 |
0 |
12,634 |
||
|
2024 |
02/13/2024 |
137,000 |
109,395 |
12,033 |
0 |
12,033 |
||
|
2023 |
02/14/2023 |
129,000 |
104,186 |
11,459 |
0 |
11,459 |
||
| Property Building Permit History | |||||||||||
|---|---|---|---|---|---|---|---|---|---|---|---|
| Issued | Permit # | Provided by | Bldg # | Description | Est Construction Cost | Status | |||||
| No Building Permit records returned. | |||||||||||
| Click button on building number to access detailed information: | ||||||
|---|---|---|---|---|---|---|
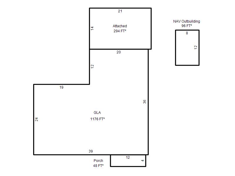
| Bldg # | Vacant/Improved Land | Bldg Description | Year Built | SqFt | # Stories | |
|
1 |
Improved |
Ranch 1 Story |
1959 |
1,176 |
1 Stories |
|