|
|
|
| Larry Stein Oklahoma County Assessor (405) 713-1200 - Public Access System |
|
|
|
|
|
|
| Real Property Display - Screen Produced 4/4/2026 3:35:04 AM | ||||
|---|---|---|---|---|
| Account: R172560300 | Type: Residential | Location: |
6611 NW 34TH ST |
|
| Building Name/Occupant: |
|
BETHANY |
||
| Owner Name 1: | BYLSMA TYLER DANIEL |
Parcel PIN#: |
2884-17-256-0300 |
|
| Owner Name 2: | 1/4 section #: |
2884 |
||
| Owner Name 3: | Parent Acct: |
|
||
| Billing Address: | 6611 NW 34TH ST | Tax District: |
|
|
| City, State, Zip | BETHANY, OK 73008 | School System: |
Putnam City #1 |
|
|
Country: (If noted) |
Land Size: |
0.1851 Acres |
||
|
Land Value: 19,349 |
|
|||
|
Sect 21-T12N-R4W Qtr NW |
BEDNAR SECOND ADD
Block
001
Lot
006
|
|||
| Full Legal Description: BEDNAR SECOND ADD 001 006 |
| Photo & Sketch (if available) | Comp Sales (ordered by relevancy) |
|
||||||||||||||||||
|
||||||||||||||||||||
| Value History (*The County Treasurer 405-713-1300 posts & collects actual tax amounts. Contact information HERE) | |||||||||||||
|---|---|---|---|---|---|---|---|---|---|---|---|---|---|
| Year | Market Value | Taxable Mkt Value | Gross Assessed | Exemption | Net Assessed | Millage | Est. Tax | Tax Savings | |||||
|
2026 |
230,500 |
230,500 |
25,355 |
25,355 |
0 |
122.14 |
$0 |
$3,097 |
|||||
|
2025 |
228,000 |
227,032 |
24,973 |
24,973 |
0 |
122.14 |
$0 |
$3,063 |
|||||
|
2024 |
227,000 |
220,420 |
24,246 |
24,246 |
0 |
120.52 |
$0 |
$3,009 |
|||||
|
2023 |
214,000 |
214,000 |
23,540 |
0 |
23,540 |
123.06 |
$2,897 |
$0 |
|||||
|
2022 |
111,500 |
111,500 |
12,265 |
0 |
12,265 |
112.54 |
$1,380 |
$0 |
|||||
| Property Account Status/Adjustments/Exemptions | ||
|---|---|---|
| Account # | Exemption Description | Amount |
|
R172560300 |
100% DAV Exemption |
100 |
|
R172560300 |
3% Cap Homestead |
0 |
|
R172560300 |
DAV Homestead |
0 |
| Property Deed Transaction History (Recorded in the County Clerk's Office) | |||||||
|---|---|---|---|---|---|---|---|
| Date | Type | Book | Page | Price | Grantor | Grantee | |
|
2/28/2022 |
|
Deeds |
$225,000 |
MAGNOLIA LLC |
BYLSMA TYLER DANIEL |
||
|
5/10/2021 |
|
Deeds |
$107,000 |
HUNTLEIGH CO HOLDINGS LLC SERIES K |
MAGNOLIA LLC |
||
|
4/16/2021 |
|
Deeds |
$85,000 |
PARNELL BOBBY J & PHYLLIS L |
HUNTLEIGH CO HOLDINGS LLC SERIES K |
||
|
11/11/1911 |
|
Historical |
$0 |
|
PARNELL BOBBY J & PHYLLIS L |
||
| Last Mailed Notice of Value (N.O.V.) Information/History | ||||||||
|---|---|---|---|---|---|---|---|---|
| Year | Date | Market Value | Taxable Market Value | Gross Assessed | Exemption | Net Assessed | ||
|
2026 |
02/23/2026 |
230,500 |
230,500 |
25,355 |
25,355 |
0 |
||
|
2025 |
02/14/2025 |
228,000 |
227,032 |
24,973 |
24,973 |
0 |
||
|
2024 |
02/13/2024 |
227,000 |
224,700 |
24,717 |
0 |
24,717 |
||
|
2023 |
02/14/2023 |
214,000 |
214,000 |
23,540 |
0 |
23,540 |
||
|
2022 |
03/15/2022 |
111,500 |
111,500 |
12,265 |
0 |
12,265 |
||
| Property Building Permit History | |||||||||||
|---|---|---|---|---|---|---|---|---|---|---|---|
| Issued | Permit # | Provided by | Bldg # | Description | Est Construction Cost | Status | |||||
| No Building Permit records returned. | |||||||||||
| Click button on building number to access detailed information: | ||||||
|---|---|---|---|---|---|---|
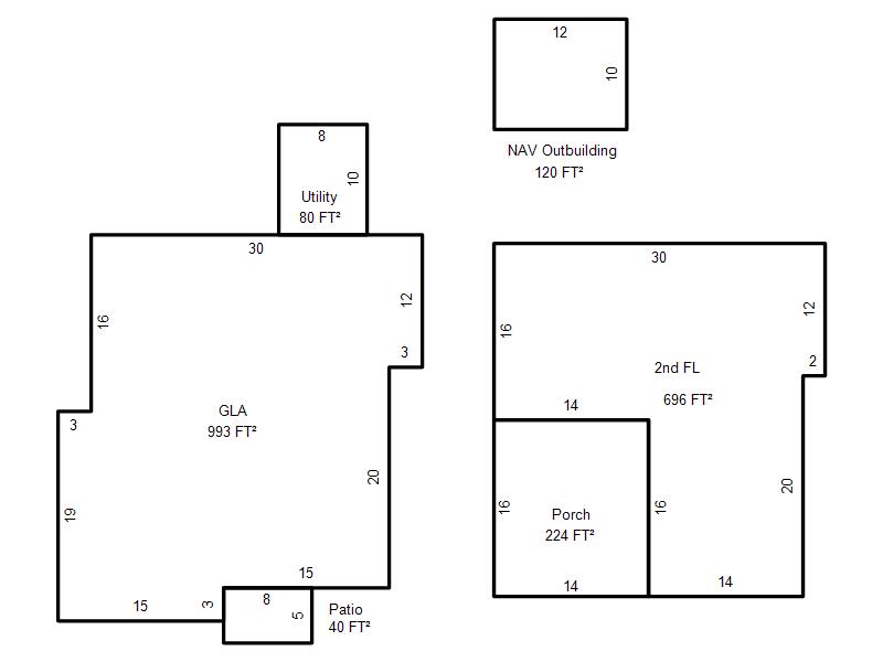
| Bldg # | Vacant/Improved Land | Bldg Description | Year Built | SqFt | # Stories | |
|
1 |
Improved |
2 Story |
1951 |
1,689 |
2 Stories |
|