|
|
|
| Larry Stein Oklahoma County Assessor (405) 713-1200 - Public Access System |
|
|
|
|
|
|
| Real Property Display - Screen Produced 2/28/2026 5:23:21 AM | ||||
|---|---|---|---|---|
| Account: R145931295 | Type: Residential | Location: |
4625 NW 35TH ST |
|
| Building Name/Occupant: |
|
OKLAHOMA CITY |
||
| Owner Name 1: | LOPEZ RAMON |
Parcel PIN#: |
2885-14-593-1295 |
|
| Owner Name 2: | 1/4 section #: |
2885 |
||
| Owner Name 3: | Parent Acct: |
|
||
| Billing Address: | 4625 NW 35TH ST | Tax District: |
|
|
| City, State, Zip | OKLAHOMA CITY, OK 73122 | School System: |
Putnam City #1 |
|
|
Country: (If noted) |
Land Size: |
0.1928 Acres |
||
|
Land Value: 42,000 |
|
|||
|
Sect 22-T12N-R4W Qtr NE |
WINDSOR HILLS 2ND
Block
011
Lot
017
|
|||
| Full Legal Description: WINDSOR HILLS 2ND 011 017 |
| Photo & Sketch (if available) | Comp Sales (ordered by relevancy) |
|
||||||||||||||||||
|
||||||||||||||||||||
| Value History (*The County Treasurer 405-713-1300 posts & collects actual tax amounts. Contact information HERE) | |||||||||||||
|---|---|---|---|---|---|---|---|---|---|---|---|---|---|
| Year | Market Value | Taxable Mkt Value | Gross Assessed | Exemption | Net Assessed | Millage | Est. Tax | Tax Savings | |||||
|
2025 |
250,000 |
250,000 |
27,500 |
0 |
27,500 |
123.17 |
$3,387 |
$0 |
|||||
|
2024 |
250,500 |
250,500 |
27,555 |
0 |
27,555 |
122.30 |
$3,370 |
$0 |
|||||
|
2023 |
239,000 |
239,000 |
26,290 |
0 |
26,290 |
121.91 |
$3,205 |
$0 |
|||||
|
2022 |
187,500 |
145,075 |
15,956 |
0 |
15,956 |
123.41 |
$1,969 |
$576 |
|||||
|
2021 |
162,000 |
138,167 |
15,197 |
1,000 |
14,197 |
122.23 |
$1,735 |
$443 |
|||||
| Property Account Status/Adjustments/Exemptions | ||
|---|---|---|
| Account # | Exemption Description | Amount |
|
R145931295 |
5% Capped Account |
0 |
| Property Deed Transaction History (Recorded in the County Clerk's Office) | ||||||||||
|---|---|---|---|---|---|---|---|---|---|---|
| Date | Type | Book | Page | Price | Grantor | Grantee | ||||
|
6/17/2022 |
|
Deeds |
$229,000 |
DOUGLAS CATHERINE ANN TRS |
LOPEZ RAMON |
|||||
|
5/1/2017 |
|
Deeds |
$0 |
DOUGLAS CATHERINE |
DOUGLAS CATHERINE ANN TRS |
|||||
|
3/17/2017 |
|
Deeds |
$0 |
SULLENS DEIDRE & CHRIS |
DOUGLAS CATHERINE |
|||||
|
11/4/2015 |
|
Deeds |
$0 |
DOUGLAS CATHERINE |
SULLENS DEIDRE |
|||||
|
7/31/2015 |
|
Deeds |
$0 |
DOUGLAS CATHERINE SULLENS DEIDRE |
DOUGLAS CATHERINE |
|||||
| Last Mailed Notice of Value (N.O.V.) Information/History | ||||||||
|---|---|---|---|---|---|---|---|---|
| Year | Date | Market Value | Taxable Market Value | Gross Assessed | Exemption | Net Assessed | ||
|
2024 |
02/13/2024 |
250,500 |
250,500 |
27,555 |
0 |
27,555 |
||
|
2023 |
02/14/2023 |
239,000 |
239,000 |
26,290 |
0 |
26,290 |
||
|
2022 |
03/15/2022 |
187,500 |
142,312 |
15,652 |
1,000 |
14,652 |
||
|
2021 |
03/19/2021 |
162,000 |
138,167 |
15,198 |
1,000 |
14,198 |
||
|
2020 |
03/10/2020 |
151,000 |
134,143 |
14,755 |
1,000 |
13,755 |
||
| Property Building Permit History | |||||||||||
|---|---|---|---|---|---|---|---|---|---|---|---|
| Issued | Permit # | Provided by | Bldg # | Description | Est Construction Cost | Status | |||||
| No Building Permit records returned. | |||||||||||
| Click button on building number to access detailed information: | ||||||
|---|---|---|---|---|---|---|
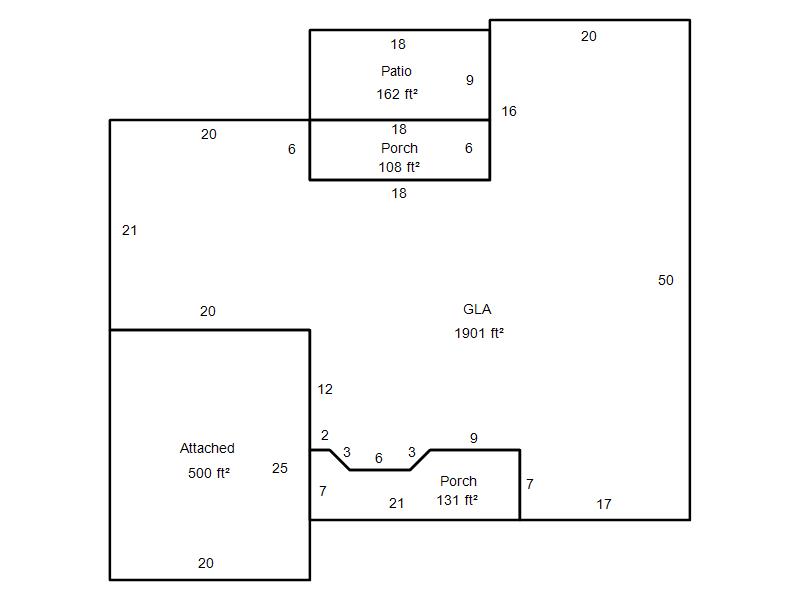
| Bldg # | Vacant/Improved Land | Bldg Description | Year Built | SqFt | # Stories | |
|
1 |
Improved |
Ranch 1 Story |
1962 |
1,901 |
1 Stories |
|