|
|
|
| Larry Stein Oklahoma County Assessor (405) 713-1200 - Public Access System |
|
|
|
|
|
|
| Real Property Display - Screen Produced 2/28/2026 12:33:58 AM | ||||
|---|---|---|---|---|
| Account: R145931685 | Type: Residential | Location: |
4609 NW 33RD DR |
|
| Building Name/Occupant: |
|
OKLAHOMA CITY |
||
| Owner Name 1: | RODRIGUEZ MARIA LIZBETH IBARRA |
Parcel PIN#: |
2885-14-593-1685 |
|
| Owner Name 2: | 1/4 section #: |
2885 |
||
| Owner Name 3: | Parent Acct: |
|
||
| Billing Address: | 4609 NW 33RD DR | Tax District: |
|
|
| City, State, Zip | OKLAHOMA CITY, OK 73122-1325 | School System: |
Putnam City #1 |
|
|
Country: (If noted) |
Land Size: |
0.2112 Acres |
||
|
Land Value: 46,000 |
|
|||
|
Sect 22-T12N-R4W Qtr NE |
WINDSOR HILLS 2ND
Block
013
Lot
016
|
|||
| Full Legal Description: WINDSOR HILLS 2ND 013 016 |
| Photo & Sketch (if available) | Comp Sales (ordered by relevancy) |
|
||||||||||||||||||
|
||||||||||||||||||||
| Value History (*The County Treasurer 405-713-1300 posts & collects actual tax amounts. Contact information HERE) | |||||||||||||
|---|---|---|---|---|---|---|---|---|---|---|---|---|---|
| Year | Market Value | Taxable Mkt Value | Gross Assessed | Exemption | Net Assessed | Millage | Est. Tax | Tax Savings | |||||
|
2025 |
268,500 |
268,500 |
29,535 |
1,000 |
28,535 |
123.17 |
$3,515 |
$123 |
|||||
|
2024 |
268,500 |
268,500 |
29,535 |
1,000 |
28,535 |
122.30 |
$3,490 |
$122 |
|||||
|
2023 |
202,500 |
117,092 |
12,879 |
0 |
12,879 |
121.91 |
$1,570 |
$1,145 |
|||||
|
2022 |
179,500 |
111,517 |
12,266 |
2,000 |
10,266 |
123.41 |
$1,267 |
$1,170 |
|||||
|
2021 |
154,000 |
111,517 |
12,266 |
2,000 |
10,266 |
122.23 |
$1,255 |
$816 |
|||||
| Property Account Status/Adjustments/Exemptions | ||||||
|---|---|---|---|---|---|---|
| Account # | Exemption Description | Amount | ||||
| No adjustment/exemption records returned. | ||||||
| Property Deed Transaction History (Recorded in the County Clerk's Office) | |||||||
|---|---|---|---|---|---|---|---|
| Date | Type | Book | Page | Price | Grantor | Grantee | |
|
4/15/2025 |
|
Deeds |
$269,000 |
KUHN JONATHAN |
RODRIGUEZ MARIA LIZBETH IBARRA |
||
|
11/27/2023 |
|
Deeds |
$249,500 |
P163 LLC |
KUHN JONATHAN |
||
|
3/14/2023 |
|
Deeds |
$90,000 |
HENSEL DOROTHY D CO TRS & TRUST |
P163 LLC |
||
|
7/11/2012 |
|
Deeds |
$0 |
HENSEL DOROTHY DELL |
HENSEL DOROTHY D CO TRS & TRUST |
||
|
8/1/1985 |
|
Historical |
$0 |
|
HENSEL DOROTHY DELL |
||
| Last Mailed Notice of Value (N.O.V.) Information/History | ||||||||
|---|---|---|---|---|---|---|---|---|
| Year | Date | Market Value | Taxable Market Value | Gross Assessed | Exemption | Net Assessed | ||
|
2024 |
02/13/2024 |
268,500 |
268,500 |
29,535 |
1,000 |
28,535 |
||
|
2023 |
02/14/2023 |
202,500 |
111,517 |
12,266 |
2,000 |
10,266 |
||
|
2023 |
03/02/2023 |
202,500 |
117,092 |
12,879 |
0 |
12,879 |
||
|
2023 |
04/21/2023 |
202,500 |
117,092 |
12,879 |
0 |
12,879 |
||
|
2022 |
03/15/2022 |
179,500 |
111,517 |
12,266 |
2,000 |
10,266 |
||
| Property Building Permit History | |||||||||||
|---|---|---|---|---|---|---|---|---|---|---|---|
| Issued | Permit # | Provided by | Bldg # | Description | Est Construction Cost | Status | |||||
| No Building Permit records returned. | |||||||||||
| Click button on building number to access detailed information: | ||||||
|---|---|---|---|---|---|---|
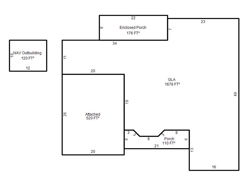
| Bldg # | Vacant/Improved Land | Bldg Description | Year Built | SqFt | # Stories | |
|
1 |
Improved |
Ranch 1 Story |
1962 |
1,678 |
1 Stories |
|