|
|
|
| Larry Stein Oklahoma County Assessor (405) 713-1200 - Public Access System |
|
|
|
|
|
|
| Real Property Display - Screen Produced 2/28/2026 12:33:58 AM | ||||
|---|---|---|---|---|
| Account: R145941075 | Type: Residential | Location: |
4521 NW 32ND PL |
|
| Building Name/Occupant: |
|
OKLAHOMA CITY |
||
| Owner Name 1: | ORDONEZ RODAS DARVIN L ETAL |
Parcel PIN#: |
2885-14-594-1075 |
|
| Owner Name 2: | DE LEON GRAMAJO PATRICIA PAOLA | 1/4 section #: |
2885 |
|
| Owner Name 3: | LOPEZ MARGARITO LAZARO ORDONEZ | Parent Acct: |
|
|
| Billing Address: | 2801 N WINDSOR PL | Tax District: |
|
|
| City, State, Zip | OKLAHOMA CITY, OK 73127 | School System: |
Putnam City #1 |
|
|
Country: (If noted) |
Land Size: |
0.2847 Acres |
||
|
Land Value: 48,360 |
|
|||
|
Sect 22-T12N-R4W Qtr NE |
WINDSOR HILLS 4TH
Block
019
Lot
005
|
|||
| Full Legal Description: WINDSOR HILLS 4TH 019 005 |
| Photo & Sketch (if available) | Comp Sales (ordered by relevancy) |
|
||||||||||||||||||
|
||||||||||||||||||||
| Value History (*The County Treasurer 405-713-1300 posts & collects actual tax amounts. Contact information HERE) | |||||||||||||
|---|---|---|---|---|---|---|---|---|---|---|---|---|---|
| Year | Market Value | Taxable Mkt Value | Gross Assessed | Exemption | Net Assessed | Millage | Est. Tax | Tax Savings | |||||
|
2025 |
248,500 |
248,500 |
27,335 |
0 |
27,335 |
123.17 |
$3,367 |
$0 |
|||||
|
2024 |
248,500 |
248,500 |
27,335 |
0 |
27,335 |
122.30 |
$3,343 |
$0 |
|||||
|
2023 |
237,500 |
164,454 |
18,089 |
1,000 |
17,089 |
121.91 |
$2,083 |
$1,101 |
|||||
|
2022 |
209,500 |
164,454 |
18,089 |
1,000 |
17,089 |
123.41 |
$2,109 |
$735 |
|||||
|
2021 |
179,500 |
164,454 |
18,089 |
1,000 |
17,089 |
122.23 |
$2,089 |
$325 |
|||||
| Property Account Status/Adjustments/Exemptions | ||
|---|---|---|
| Account # | Exemption Description | Amount |
|
R145941075 |
5% Capped Account |
0 |
| Property Deed Transaction History (Recorded in the County Clerk's Office) | ||||||||||
|---|---|---|---|---|---|---|---|---|---|---|
| Date | Type | Book | Page | Price | Grantor | Grantee | ||||
|
2/8/2023 |
|
Deeds |
$240,000 |
LOVETT ELAINE C TRS |
ORDONEZ RODAS DARVIN L ETAL |
|||||
|
4/1/2015 |
|
Deeds |
$0 |
GLENN PATRICK J LOVETT ELAINE C |
LOVETT ELAINE C TRS |
|||||
|
9/6/2012 |
|
Deeds |
$130,000 |
MURRAY KENNETH W & MARGARET M |
GLENN PATRICK J LOVETT ELAINE C |
|||||
|
1/31/2011 |
|
Deeds |
$0 |
MURRAY KENNETH W & MARGARET CO TRS MURRAY KENNETH & MARGARET |
MURRAY KENNETH W & MARGARET M |
|||||
|
12/31/2010 |
|
Deeds |
$0 |
MURRAY KENNETH W TRS MURRAY KENNETH & MARGARET REV TRUST |
MURRAY KENNETH W & MARGARET M |
|||||
| Last Mailed Notice of Value (N.O.V.) Information/History | ||||||||
|---|---|---|---|---|---|---|---|---|
| Year | Date | Market Value | Taxable Market Value | Gross Assessed | Exemption | Net Assessed | ||
|
2024 |
02/13/2024 |
248,500 |
248,500 |
27,335 |
0 |
27,335 |
||
|
2023 |
02/14/2023 |
237,500 |
164,454 |
18,089 |
1,000 |
17,089 |
||
|
2023 |
03/02/2023 |
237,500 |
164,454 |
18,089 |
1,000 |
17,089 |
||
|
2022 |
03/15/2022 |
209,500 |
164,454 |
18,089 |
1,000 |
17,089 |
||
|
2021 |
03/19/2021 |
179,500 |
164,454 |
18,089 |
1,000 |
17,089 |
||
| Property Building Permit History | |||||||||||
|---|---|---|---|---|---|---|---|---|---|---|---|
| Issued | Permit # | Provided by | Bldg # | Description | Est Construction Cost | Status | |||||
| No Building Permit records returned. | |||||||||||
| Click button on building number to access detailed information: | ||||||
|---|---|---|---|---|---|---|
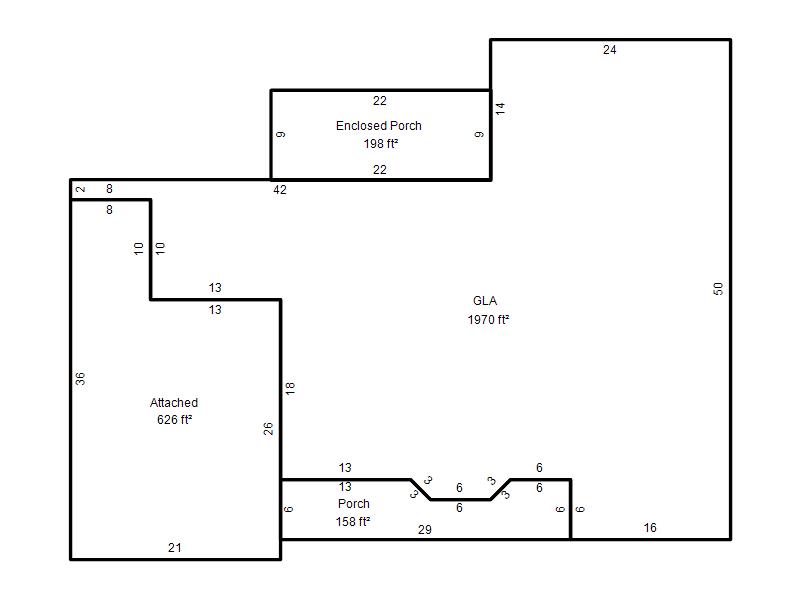
| Bldg # | Vacant/Improved Land | Bldg Description | Year Built | SqFt | # Stories | |
|
1 |
Improved |
Ranch 1 Story |
1963 |
1,970 |
1 Stories |
|