|
|
|
| Larry Stein Oklahoma County Assessor (405) 713-1200 - Public Access System |
|
|
|
|
|
|
| Real Property Display - Screen Produced 2/28/2026 6:59:23 AM | ||||
|---|---|---|---|---|
| Account: R146371490 | Type: Residential | Location: |
2701 N HARVARD AVE |
|
| Building Name/Occupant: |
|
OKLAHOMA CITY |
||
| Owner Name 1: | TKACHEV VLADIMIR S |
Parcel PIN#: |
2886-14-637-1490 |
|
| Owner Name 2: | JAMESON OLGA Y | 1/4 section #: |
2886 |
|
| Owner Name 3: | Parent Acct: |
|
||
| Billing Address: | 3125 NW 43RD ST | Tax District: |
|
|
| City, State, Zip | OKLAHOMA CITY, OK 73112 | School System: |
Putnam City #1 |
|
|
Country: (If noted) |
Land Size: |
0.2507 Acres |
||
|
Land Value: 49,140 |
|
|||
|
Sect 22-T12N-R4W Qtr SE |
WINDSOR HILLS 7TH
Block
037
Lot
014
|
|||
| Full Legal Description: WINDSOR HILLS 7TH 037 014 |
| Photo & Sketch (if available) | Comp Sales (ordered by relevancy) |
|
||||||||||||||||||
|
||||||||||||||||||||
| Value History (*The County Treasurer 405-713-1300 posts & collects actual tax amounts. Contact information HERE) | |||||||||||||
|---|---|---|---|---|---|---|---|---|---|---|---|---|---|
| Year | Market Value | Taxable Mkt Value | Gross Assessed | Exemption | Net Assessed | Millage | Est. Tax | Tax Savings | |||||
|
2025 |
271,000 |
239,242 |
26,316 |
0 |
26,316 |
123.17 |
$3,241 |
$430 |
|||||
|
2024 |
271,000 |
227,850 |
25,063 |
0 |
25,063 |
122.30 |
$3,065 |
$580 |
|||||
|
2023 |
217,000 |
217,000 |
23,870 |
0 |
23,870 |
121.91 |
$2,910 |
$0 |
|||||
|
2022 |
229,500 |
186,833 |
20,550 |
1,000 |
19,550 |
123.41 |
$2,413 |
$703 |
|||||
|
2021 |
199,500 |
181,392 |
19,952 |
1,000 |
18,952 |
122.23 |
$2,317 |
$366 |
|||||
| Property Account Status/Adjustments/Exemptions | ||
|---|---|---|
| Account # | Exemption Description | Amount |
|
R146371490 |
5% Capped Account |
0 |
| Property Deed Transaction History (Recorded in the County Clerk's Office) | ||||||||||
|---|---|---|---|---|---|---|---|---|---|---|
| Date | Type | Book | Page | Price | Grantor | Grantee | ||||
|
2/15/2022 |
|
Deeds |
$215,000 |
BRIAN RICHARD L & JUANITA KAREN |
TKACHEV VLADIMIR S |
|||||
|
9/25/2013 |
|
Deeds |
$0 |
BRIAN RICHARD L |
BRIAN RICHARD L & JUANITA KAREN |
|||||
|
6/10/2010 |
|
Deeds |
$0 |
CRAWFORD FAMILY REV TRUST |
CRAWFORD JAY WARREN TRS CRAWFORD FAMILY REV TRUST |
|||||
|
6/10/2010 |
|
Deeds |
$163,000 |
CRAWFORD JAY WARREN TRS CRAWFORD FAMILY REV TRUST |
BRIAN RICHARD L |
|||||
|
8/9/1993 |
|
Historical |
$0 |
CRAWFORD JOHN W & HELEN G |
CRAWFORD FAMILY REV TRUST |
|||||
| Last Mailed Notice of Value (N.O.V.) Information/History | ||||||||
|---|---|---|---|---|---|---|---|---|
| Year | Date | Market Value | Taxable Market Value | Gross Assessed | Exemption | Net Assessed | ||
|
2026 |
02/23/2026 |
263,500 |
251,204 |
27,631 |
0 |
27,631 |
||
|
2025 |
02/14/2025 |
271,000 |
239,242 |
26,316 |
0 |
26,316 |
||
|
2024 |
02/13/2024 |
271,000 |
227,850 |
25,063 |
0 |
25,063 |
||
|
2023 |
02/14/2023 |
217,000 |
217,000 |
23,870 |
0 |
23,870 |
||
|
2022 |
03/15/2022 |
229,500 |
186,833 |
20,550 |
1,000 |
19,550 |
||
| Property Building Permit History | |||||||||||
|---|---|---|---|---|---|---|---|---|---|---|---|
| Issued | Permit # | Provided by | Bldg # | Description | Est Construction Cost | Status | |||||
| No Building Permit records returned. | |||||||||||
| Click button on building number to access detailed information: | ||||||
|---|---|---|---|---|---|---|
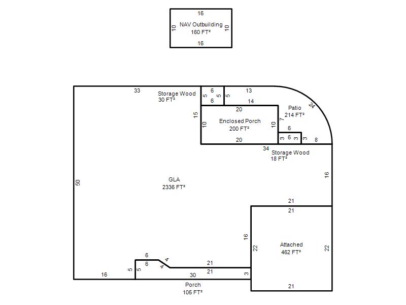
| Bldg # | Vacant/Improved Land | Bldg Description | Year Built | SqFt | # Stories | |
|
1 |
Improved |
Ranch 1 Story |
1965 |
2,336 |
1 Stories |
|