|
|
|
| Larry Stein Oklahoma County Assessor (405) 713-1200 - Public Access System |
|
|
|
|
|
|
| Real Property Display - Screen Produced 2/28/2026 5:19:07 AM | ||||
|---|---|---|---|---|
| Account: R146371990 | Type: Residential | Location: |
2709 TUDOR RD |
|
| Building Name/Occupant: |
|
OKLAHOMA CITY |
||
| Owner Name 1: | RIVAS ALFREDO O MAZARIEGOS |
Parcel PIN#: |
2886-14-637-1990 |
|
| Owner Name 2: | 1/4 section #: |
2886 |
||
| Owner Name 3: | Parent Acct: |
|
||
| Billing Address: | 2709 TUDOR RD | Tax District: |
|
|
| City, State, Zip | OKLAHOMA CITY, OK 73127-1953 | School System: |
Putnam City #1 |
|
|
Country: (If noted) |
Land Size: |
0.2342 Acres |
||
|
Land Value: 45,900 |
|
|||
|
Sect 22-T12N-R4W Qtr SE |
WINDSOR HILLS 7TH
Block
039
Lot
013
|
|||
| Full Legal Description: WINDSOR HILLS 7TH 039 013 |
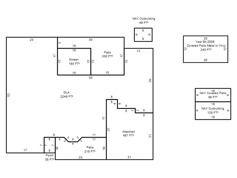
| Photo & Sketch (if available) | Comp Sales (ordered by relevancy) |
|
||||||||||||||||||
|
||||||||||||||||||||
| Value History (*The County Treasurer 405-713-1300 posts & collects actual tax amounts. Contact information HERE) | |||||||||||||
|---|---|---|---|---|---|---|---|---|---|---|---|---|---|
| Year | Market Value | Taxable Mkt Value | Gross Assessed | Exemption | Net Assessed | Millage | Est. Tax | Tax Savings | |||||
|
2025 |
315,500 |
315,500 |
34,705 |
0 |
34,705 |
123.17 |
$4,275 |
$0 |
|||||
|
2024 |
328,500 |
264,667 |
29,113 |
0 |
29,113 |
122.30 |
$3,561 |
$859 |
|||||
|
2023 |
313,500 |
252,064 |
27,726 |
0 |
27,726 |
121.91 |
$3,380 |
$824 |
|||||
|
2022 |
278,500 |
240,061 |
26,405 |
0 |
26,405 |
123.41 |
$3,259 |
$522 |
|||||
|
2021 |
239,500 |
228,630 |
25,148 |
0 |
25,148 |
122.23 |
$3,074 |
$146 |
|||||
| Property Account Status/Adjustments/Exemptions | ||
|---|---|---|
| Account # | Exemption Description | Amount |
|
R146371990 |
5% Capped Account |
0 |
| Property Deed Transaction History (Recorded in the County Clerk's Office) | ||||||||||
|---|---|---|---|---|---|---|---|---|---|---|
| Date | Type | Book | Page | Price | Grantor | Grantee | ||||
|
1/4/2024 |
|
Deeds |
$280,000 |
CLARK LINDA MICHELLE |
RIVAS ALFREDO O MAZARIEGOS |
|||||
|
4/17/2015 |
|
Deeds |
$195,000 |
LEONARD D C & LYNETTE C TRS LEONARD D C & LYNETTE C LIV TRUS |
CLARK LINDA MICHELLE |
|||||
|
1/21/2014 |
|
Deeds |
$0 |
LEONARD D C & LYNETTE C |
LEONARD DC & LYNETTE C |
|||||
|
1/21/2014 |
|
Deeds |
$0 |
LEONARD DC & LYNETTE C |
LEONARD D C & LYNETTE C TRS LEONARD D C & LYNETTE C LIVING T |
|||||
|
1/14/2013 |
|
Deeds |
$140,000 |
RUDROW MARK D |
LEONARD DC |
|||||
| Last Mailed Notice of Value (N.O.V.) Information/History | ||||||||
|---|---|---|---|---|---|---|---|---|
| Year | Date | Market Value | Taxable Market Value | Gross Assessed | Exemption | Net Assessed | ||
|
2025 |
02/14/2025 |
315,500 |
315,500 |
34,705 |
0 |
34,705 |
||
|
2024 |
02/13/2024 |
328,500 |
264,667 |
29,113 |
0 |
29,113 |
||
|
2023 |
02/14/2023 |
313,500 |
252,064 |
27,726 |
0 |
27,726 |
||
|
2022 |
03/15/2022 |
278,500 |
240,061 |
26,405 |
0 |
26,405 |
||
|
2021 |
03/19/2021 |
239,500 |
228,630 |
25,149 |
0 |
25,149 |
||
| Property Building Permit History | |||||||||||
|---|---|---|---|---|---|---|---|---|---|---|---|
| Issued | Permit # | Provided by | Bldg # | Description | Est Construction Cost | Status | |||||
| No Building Permit records returned. | |||||||||||
| Click button on building number to access detailed information: | ||||||
|---|---|---|---|---|---|---|
| Bldg # | Vacant/Improved Land | Bldg Description | Year Built | SqFt | # Stories | |
|
1 |
Improved |
Ranch 1 Story |
1965 |
2,249 |
1 Stories |
|