|
|
|
| Larry Stein Oklahoma County Assessor (405) 713-1200 - Public Access System |
|
|
|
|
|
|
| Real Property Display - Screen Produced 2/28/2026 12:33:58 AM | ||||
|---|---|---|---|---|
| Account: R146372120 | Type: Residential | Location: |
2704 TUDOR RD |
|
| Building Name/Occupant: |
|
OKLAHOMA CITY |
||
| Owner Name 1: | MALDONADO ELMER MARCONI BARRIOS |
Parcel PIN#: |
2886-14-637-2120 |
|
| Owner Name 2: | RODAS FLORIDALMA R DE LEON | 1/4 section #: |
2886 |
|
| Owner Name 3: | Parent Acct: |
|
||
| Billing Address: | 3621 NW 20TH ST | Tax District: |
|
|
| City, State, Zip | OKLAHOMA CITY, OK 73107 | School System: |
Putnam City #1 |
|
|
Country: (If noted) |
Land Size: |
0.2342 Acres |
||
|
Land Value: 45,900 |
|
|||
|
Sect 22-T12N-R4W Qtr SE |
WINDSOR HILLS 7TH
Block
040
Lot
008
|
|||
| Full Legal Description: WINDSOR HILLS 7TH 040 008 |
| Photo & Sketch (if available) | Comp Sales (ordered by relevancy) |
|
||||||||||||||||||
|
||||||||||||||||||||
| Value History (*The County Treasurer 405-713-1300 posts & collects actual tax amounts. Contact information HERE) | |||||||||||||
|---|---|---|---|---|---|---|---|---|---|---|---|---|---|
| Year | Market Value | Taxable Mkt Value | Gross Assessed | Exemption | Net Assessed | Millage | Est. Tax | Tax Savings | |||||
|
2025 |
246,000 |
246,000 |
27,060 |
0 |
27,060 |
123.17 |
$3,333 |
$0 |
|||||
|
2024 |
247,000 |
247,000 |
27,170 |
0 |
27,170 |
122.30 |
$3,323 |
$0 |
|||||
|
2023 |
236,500 |
236,500 |
26,015 |
0 |
26,015 |
121.91 |
$3,171 |
$0 |
|||||
|
2022 |
210,000 |
122,191 |
13,441 |
1,000 |
12,441 |
123.41 |
$1,535 |
$1,315 |
|||||
|
2021 |
180,000 |
122,191 |
13,441 |
1,000 |
12,441 |
122.23 |
$1,521 |
$899 |
|||||
| Property Account Status/Adjustments/Exemptions | ||
|---|---|---|
| Account # | Exemption Description | Amount |
|
R146372120 |
5% Capped Account |
0 |
| Property Deed Transaction History (Recorded in the County Clerk's Office) | |||||||
|---|---|---|---|---|---|---|---|
| Date | Type | Book | Page | Price | Grantor | Grantee | |
|
11/4/2022 |
|
Deeds |
$240,000 |
FOWLER DOVIE L TRS |
MALDONADO ELMER MARCONI BARRIOS |
||
|
5/28/2003 |
|
Deeds |
$0 |
FOWLER CHARLES M DOVIE L |
FOWLER DOVIE L |
||
|
5/28/2003 |
|
Deeds |
$0 |
FOWLER CHARLES M & DOVIE L |
FOWLER DOVIE L TRS |
||
|
11/11/1911 |
|
Historical |
$0 |
|
FOWLER CHARLES M & DOVIE L |
||
| Last Mailed Notice of Value (N.O.V.) Information/History | ||||||||
|---|---|---|---|---|---|---|---|---|
| Year | Date | Market Value | Taxable Market Value | Gross Assessed | Exemption | Net Assessed | ||
|
2024 |
02/13/2024 |
247,000 |
247,000 |
27,170 |
0 |
27,170 |
||
|
2023 |
02/14/2023 |
236,500 |
236,500 |
26,015 |
0 |
26,015 |
||
|
2022 |
03/15/2022 |
210,000 |
122,191 |
13,441 |
1,000 |
12,441 |
||
|
2021 |
03/19/2021 |
180,000 |
122,191 |
13,441 |
1,000 |
12,441 |
||
|
2020 |
03/10/2020 |
168,000 |
122,191 |
13,441 |
1,000 |
12,441 |
||
| Property Building Permit History | |||||||||||
|---|---|---|---|---|---|---|---|---|---|---|---|
| Issued | Permit # | Provided by | Bldg # | Description | Est Construction Cost | Status | |||||
| No Building Permit records returned. | |||||||||||
| Click button on building number to access detailed information: | ||||||
|---|---|---|---|---|---|---|
| Bldg # | Vacant/Improved Land | Bldg Description | Year Built | SqFt | # Stories | |
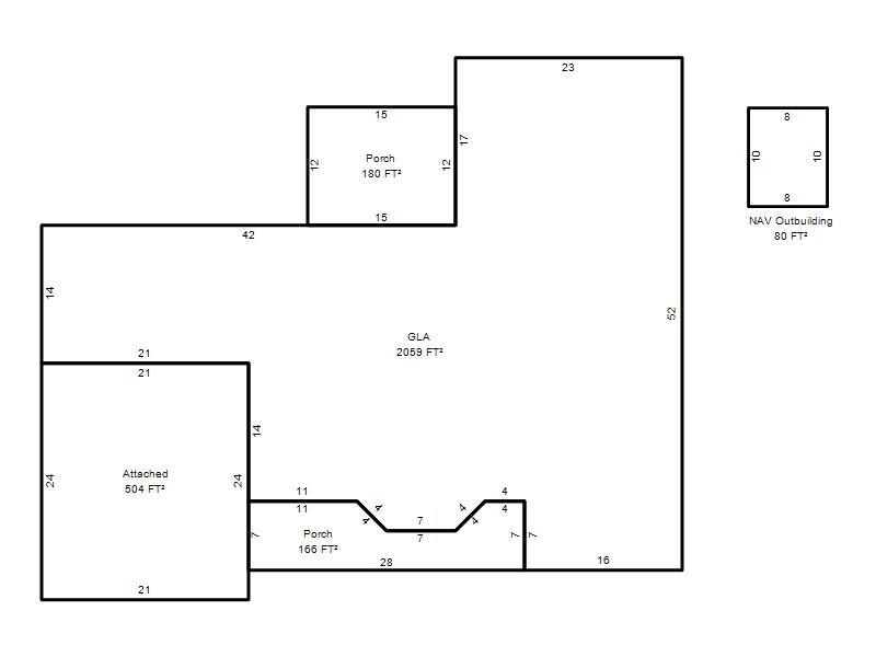
|
1 |
Improved |
Ranch 1 Story |
1966 |
2,059 |
1 Stories |
|