|
|
|
| Larry Stein Oklahoma County Assessor (405) 713-1200 - Public Access System |
|
|
|
|
|
|
| Real Property Display - Screen Produced 2/27/2026 7:31:25 PM | ||||
|---|---|---|---|---|
| Account: R146031585 | Type: Residential | Location: |
2817 N DITTMER RD |
|
| Building Name/Occupant: |
|
OKLAHOMA CITY |
||
| Owner Name 1: | CRUZ DELMY J QUEVEDO |
Parcel PIN#: |
2887-14-603-1585 |
|
| Owner Name 2: | CHAVEZ VICTOR M TELON | 1/4 section #: |
2887 |
|
| Owner Name 3: | Parent Acct: |
|
||
| Billing Address: | 2817 N DITMER RD | Tax District: |
|
|
| City, State, Zip | OKLAHOMA CITY, OK 73127 | School System: |
Putnam City #1 |
|
|
Country: (If noted) |
Land Size: |
0.2373 Acres |
||
|
Land Value: 48,579 |
|
|||
|
Sect 22-T12N-R4W Qtr SW |
WINDSOR OAKS
Block
003
Lot
018
|
|||
| Full Legal Description: WINDSOR OAKS 003 018 |
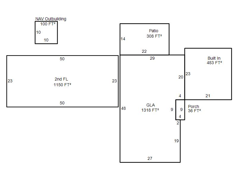
| Photo & Sketch (if available) | Comp Sales (ordered by relevancy) |
|
||||||||||||||||||
|
||||||||||||||||||||
| Value History (*The County Treasurer 405-713-1300 posts & collects actual tax amounts. Contact information HERE) | |||||||||||||
|---|---|---|---|---|---|---|---|---|---|---|---|---|---|
| Year | Market Value | Taxable Mkt Value | Gross Assessed | Exemption | Net Assessed | Millage | Est. Tax | Tax Savings | |||||
|
2025 |
251,000 |
251,000 |
27,610 |
0 |
27,610 |
123.17 |
$3,401 |
$0 |
|||||
|
2024 |
254,000 |
245,700 |
27,027 |
0 |
27,027 |
122.30 |
$3,305 |
$112 |
|||||
|
2023 |
234,000 |
234,000 |
25,740 |
0 |
25,740 |
121.91 |
$3,138 |
$0 |
|||||
|
2022 |
215,500 |
180,643 |
19,869 |
1,000 |
18,869 |
123.41 |
$2,329 |
$597 |
|||||
|
2021 |
184,000 |
175,382 |
19,291 |
1,000 |
18,291 |
122.23 |
$2,236 |
$238 |
|||||
| Property Account Status/Adjustments/Exemptions | ||
|---|---|---|
| Account # | Exemption Description | Amount |
|
R146031585 |
5% Capped Account |
0 |
| Property Deed Transaction History (Recorded in the County Clerk's Office) | |||||||
|---|---|---|---|---|---|---|---|
| Date | Type | Book | Page | Price | Grantor | Grantee | |
|
9/14/2022 |
|
Deeds |
$0 |
VISBAL DANNY B SR & ZOSIMA G |
VISBAL ZOSIMA G |
||
|
9/14/2022 |
|
Deeds |
$225,000 |
VISBAL ZOSIMA G |
CRUZ DELMY J QUEVEDO |
||
|
11/10/2005 |
|
Deeds |
$139,000 |
WHITTINGTON KENNETH W & A I |
VISBAL DANNY B SR & ZOSIMA G |
||
|
11/11/1911 |
|
Historical |
$0 |
|
WHITTINGTON KENNETH W & A I |
||
| Last Mailed Notice of Value (N.O.V.) Information/History | ||||||||
|---|---|---|---|---|---|---|---|---|
| Year | Date | Market Value | Taxable Market Value | Gross Assessed | Exemption | Net Assessed | ||
|
2025 |
02/14/2025 |
251,000 |
251,000 |
27,610 |
0 |
27,610 |
||
|
2024 |
02/13/2024 |
254,000 |
245,700 |
27,027 |
0 |
27,027 |
||
|
2023 |
02/14/2023 |
234,000 |
234,000 |
25,740 |
0 |
25,740 |
||
|
2022 |
03/15/2022 |
215,500 |
180,643 |
19,869 |
1,000 |
18,869 |
||
|
2021 |
03/19/2021 |
184,000 |
175,382 |
19,292 |
1,000 |
18,292 |
||
| Property Building Permit History | |||||||||||
|---|---|---|---|---|---|---|---|---|---|---|---|
| Issued | Permit # | Provided by | Bldg # | Description | Est Construction Cost | Status | |||||
| No Building Permit records returned. | |||||||||||
| Click button on building number to access detailed information: | ||||||
|---|---|---|---|---|---|---|
| Bldg # | Vacant/Improved Land | Bldg Description | Year Built | SqFt | # Stories | |
|
1 |
Improved |
2 Story |
1963 |
2,468 |
2 Stories |
|