|
|
|
| Larry Stein Oklahoma County Assessor (405) 713-1200 - Public Access System |
|
|
|
|
|
|
| Real Property Display - Screen Produced 2/27/2026 4:33:55 AM | ||||
|---|---|---|---|---|
| Account: R147431665 | Type: Residential | Location: |
5713 NW 33RD ST |
|
| Building Name/Occupant: |
|
OKLAHOMA CITY |
||
| Owner Name 1: | BAF ASSETS 5 LLC |
Parcel PIN#: |
2888-14-743-1665 |
|
| Owner Name 2: | 1/4 section #: |
2888 |
||
| Owner Name 3: | Parent Acct: |
|
||
| Billing Address: | 5001 PLAZA ON THE LAKE, Unit 200 | Tax District: |
|
|
| City, State, Zip | AUSTIN, TX 78746 | School System: |
Putnam City #1 |
|
|
Country: (If noted) |
Land Size: |
0.2089 Acres |
||
|
Land Value: 40,950 |
|
|||
|
Sect 22-T12N-R4W Qtr NW |
GOLDEN OAKS
Block
006
Lot
000
|
|||
| Full Legal Description: GOLDEN OAKS 006 000 E40FT LOT 12 & W25FT LOT 13 |
| Photo & Sketch (if available) | Comp Sales (ordered by relevancy) |
|
||||||||||||||||||
|
||||||||||||||||||||
| Value History (*The County Treasurer 405-713-1300 posts & collects actual tax amounts. Contact information HERE) | |||||||||||||
|---|---|---|---|---|---|---|---|---|---|---|---|---|---|
| Year | Market Value | Taxable Mkt Value | Gross Assessed | Exemption | Net Assessed | Millage | Est. Tax | Tax Savings | |||||
|
2025 |
229,000 |
211,128 |
23,223 |
0 |
23,223 |
123.17 |
$2,861 |
$242 |
|||||
|
2024 |
229,000 |
201,075 |
22,118 |
0 |
22,118 |
122.30 |
$2,705 |
$376 |
|||||
|
2023 |
191,500 |
191,500 |
21,065 |
0 |
21,065 |
121.91 |
$2,568 |
$0 |
|||||
|
2022 |
172,500 |
172,500 |
18,975 |
0 |
18,975 |
123.41 |
$2,342 |
$0 |
|||||
|
2021 |
163,000 |
154,875 |
17,036 |
0 |
17,036 |
122.23 |
$2,082 |
$109 |
|||||
| Property Account Status/Adjustments/Exemptions | ||
|---|---|---|
| Account # | Exemption Description | Amount |
|
R147431665 |
5% Capped Account |
0 |
| Property Deed Transaction History (Recorded in the County Clerk's Office) | ||||||||||
|---|---|---|---|---|---|---|---|---|---|---|
| Date | Type | Book | Page | Price | Grantor | Grantee | ||||
|
8/4/2022 |
|
Mult Parcel |
$14,723,500 |
BAF 1 LLC |
BAF ASSETS 5 LLC |
|||||
|
5/24/2021 |
|
Deeds |
$166,000 |
KALIDY LLC |
BAF 1 LLC |
|||||
|
6/17/2019 |
|
Sheriff's/Ma |
$98,500 |
HERNANDEZ MARIA DEL ROSARIO GARCIA DE |
KALIDY LLC |
|||||
|
12/1/2006 |
|
Deeds |
$0 |
MORRIS JAMES FERRELL & MADELINE VICTORIA REV TRUST |
MORRIS MADELINE V SUC TRS |
|||||
|
12/1/2006 |
|
Deeds |
$0 |
MORRIS MADELINE V SUC TRS |
KEESEE THOMAS LEE & VICKI FAYE |
|||||
| Last Mailed Notice of Value (N.O.V.) Information/History | ||||||||
|---|---|---|---|---|---|---|---|---|
| Year | Date | Market Value | Taxable Market Value | Gross Assessed | Exemption | Net Assessed | ||
|
2026 |
02/23/2026 |
224,000 |
221,684 |
24,385 |
0 |
24,385 |
||
|
2025 |
02/14/2025 |
229,000 |
211,128 |
23,223 |
0 |
23,223 |
||
|
2024 |
02/13/2024 |
229,000 |
201,075 |
22,118 |
0 |
22,118 |
||
|
2023 |
02/14/2023 |
191,500 |
191,500 |
21,065 |
0 |
21,065 |
||
|
2022 |
03/15/2022 |
172,500 |
172,500 |
18,975 |
0 |
18,975 |
||
| Property Building Permit History | |||||||||||
|---|---|---|---|---|---|---|---|---|---|---|---|
| Issued | Permit # | Provided by | Bldg # | Description | Est Construction Cost | Status | |||||
| No Building Permit records returned. | |||||||||||
| Click button on building number to access detailed information: | ||||||
|---|---|---|---|---|---|---|
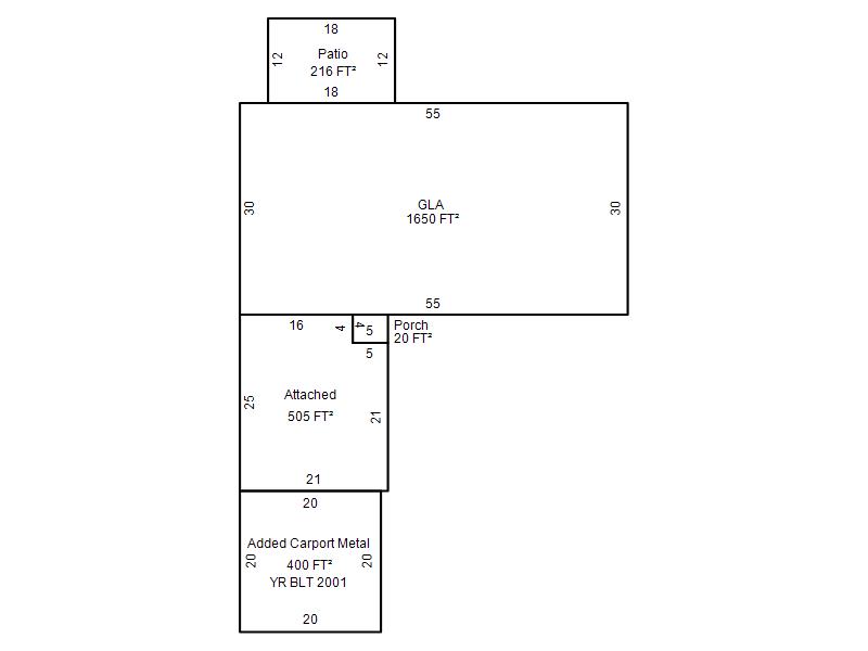
| Bldg # | Vacant/Improved Land | Bldg Description | Year Built | SqFt | # Stories | |
|
1 |
Improved |
Ranch 1 Story |
1964 |
1,650 |
1 Stories |
|