|
|
|
| Larry Stein Oklahoma County Assessor (405) 713-1200 - Public Access System |
|
|
|
|
|
|
| Real Property Display - Screen Produced 4/3/2026 6:01:20 AM | ||||
|---|---|---|---|---|
| Account: R113653050 | Type: Residential | Location: |
3257 N ROFF AVE |
|
| Building Name/Occupant: |
|
OKLAHOMA CITY |
||
| Owner Name 1: | HARRIS MYLES |
Parcel PIN#: |
2889-11-365-3050 |
|
| Owner Name 2: | 1/4 section #: |
2889 |
||
| Owner Name 3: | Parent Acct: |
|
||
| Billing Address: | 3257 N ROFF AVE | Tax District: |
|
|
| City, State, Zip | OKLAHOMA CITY, OK 73112-3343 | School System: |
Oklahoma City #89 |
|
|
Country: (If noted) |
Land Size: |
0.2463 Acres |
||
|
Land Value: 42,912 |
|
|||
|
Sect 23-T12N-R4W Qtr NE |
L L LYON SKYLINE VW
Block
013
Lot
038
|
|||
| Full Legal Description: L L LYON SKYLINE VW 013 038 |
| Photo & Sketch (if available) | Comp Sales (ordered by relevancy) |
|
||||||||||||||||||
|
||||||||||||||||||||
| Value History (*The County Treasurer 405-713-1300 posts & collects actual tax amounts. Contact information HERE) | |||||||||||||
|---|---|---|---|---|---|---|---|---|---|---|---|---|---|
| Year | Market Value | Taxable Mkt Value | Gross Assessed | Exemption | Net Assessed | Millage | Est. Tax | Tax Savings | |||||
|
2026 |
174,000 |
174,000 |
19,140 |
0 |
19,140 |
122.90 |
$2,352 |
$0 |
|||||
|
2025 |
133,000 |
133,000 |
14,630 |
0 |
14,630 |
122.90 |
$1,798 |
$0 |
|||||
|
2024 |
128,500 |
101,291 |
11,141 |
0 |
11,141 |
123.89 |
$1,380 |
$371 |
|||||
|
2023 |
118,500 |
96,468 |
10,611 |
0 |
10,611 |
122.82 |
$1,303 |
$298 |
|||||
|
2022 |
102,500 |
91,875 |
10,106 |
0 |
10,106 |
117.63 |
$1,189 |
$137 |
|||||
| Property Account Status/Adjustments/Exemptions | ||||||
|---|---|---|---|---|---|---|
| Account # | Exemption Description | Amount | ||||
| No adjustment/exemption records returned. | ||||||
| Property Deed Transaction History (Recorded in the County Clerk's Office) | ||||||||||
|---|---|---|---|---|---|---|---|---|---|---|
| Date | Type | Book | Page | Price | Grantor | Grantee | ||||
|
2/7/2025 |
|
Deeds |
$184,000 |
LEVEL R INVESTMENT LLC |
HARRIS MYLES |
|||||
|
10/4/2024 |
|
Hmstd Off & |
$0 |
H & R HOMES LLC |
ESPARZA VICTORIA MORALES |
|||||
|
9/7/2024 |
|
Deeds |
$84,000 |
ESPARZA VICTORIA MORALES |
LEVEL R INVESTMENT LLC |
|||||
|
5/22/2020 |
|
Deeds |
$80,500 |
WALKER FRED L |
H & R HOMES LLC |
|||||
|
4/17/2017 |
|
Deeds |
$0 |
PEWENAFKIT MARY L |
WALKER FRED L |
|||||
| Last Mailed Notice of Value (N.O.V.) Information/History | ||||||||
|---|---|---|---|---|---|---|---|---|
| Year | Date | Market Value | Taxable Market Value | Gross Assessed | Exemption | Net Assessed | ||
|
2026 |
02/23/2026 |
174,000 |
174,000 |
19,140 |
0 |
19,140 |
||
|
2025 |
02/14/2025 |
133,000 |
133,000 |
14,630 |
0 |
14,630 |
||
|
2025 |
03/28/2025 |
133,000 |
133,000 |
14,630 |
0 |
14,630 |
||
|
2024 |
02/13/2024 |
128,500 |
101,291 |
11,141 |
0 |
11,141 |
||
|
2023 |
02/14/2023 |
118,500 |
96,468 |
10,611 |
0 |
10,611 |
||
| Property Building Permit History | |||||||||||
|---|---|---|---|---|---|---|---|---|---|---|---|
| Issued | Permit # | Provided by | Bldg # | Description | Est Construction Cost | Status | |||||
| No Building Permit records returned. | |||||||||||
| Click button on building number to access detailed information: | ||||||
|---|---|---|---|---|---|---|
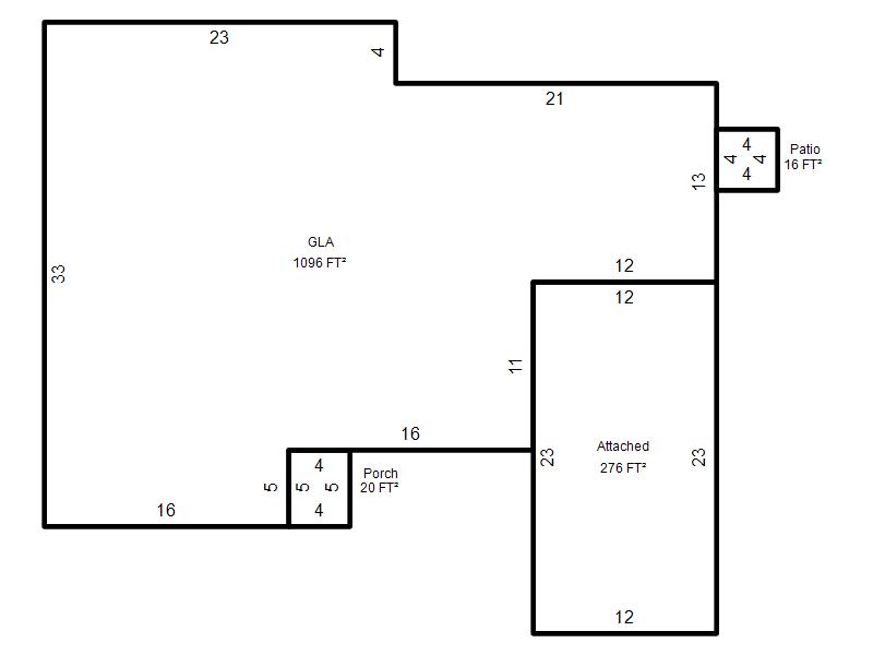
| Bldg # | Vacant/Improved Land | Bldg Description | Year Built | SqFt | # Stories | |
|
1 |
Improved |
Ranch 1 Story |
1951 |
1,096 |
1 Stories |
|