|
|
|
| Larry Stein Oklahoma County Assessor (405) 713-1200 - Public Access System |
|
|
|
|
|
|
| Real Property Display - Screen Produced 4/1/2026 1:54:54 AM | ||||
|---|---|---|---|---|
| Account: R068067480 | Type: Residential | Location: |
3725 NW 26TH ST |
|
| Building Name/Occupant: |
|
OKLAHOMA CITY |
||
| Owner Name 1: | HOLT DUSTIN |
Parcel PIN#: |
2890-06-806-7480 |
|
| Owner Name 2: | 1/4 section #: |
2890 |
||
| Owner Name 3: | Parent Acct: |
|
||
| Billing Address: | 3725 NW 26TH ST | Tax District: |
|
|
| City, State, Zip | OKLAHOMA CITY, OK 73107-1409 | School System: |
Oklahoma City #89 |
|
|
Country: (If noted) |
Land Size: |
0.1686 Acres |
||
|
Land Value: 22,766 |
|
|||
|
Sect 23-T12N-R4W Qtr SE |
MARTINDALE ADDITION
Block
009
Lot
016
|
|||
| Full Legal Description: MARTINDALE ADDITION 009 016 |
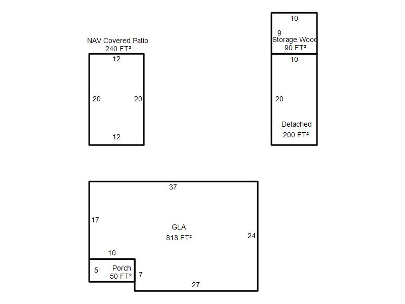
| Photo & Sketch (if available) | Comp Sales (ordered by relevancy) |
|
||||||||||||||||||
|
||||||||||||||||||||
| Value History (*The County Treasurer 405-713-1300 posts & collects actual tax amounts. Contact information HERE) | |||||||||||||
|---|---|---|---|---|---|---|---|---|---|---|---|---|---|
| Year | Market Value | Taxable Mkt Value | Gross Assessed | Exemption | Net Assessed | Millage | Est. Tax | Tax Savings | |||||
|
2026 |
143,000 |
143,000 |
15,730 |
1,000 |
14,730 |
122.90 |
$1,810 |
$123 |
|||||
|
2025 |
142,000 |
103,418 |
11,375 |
0 |
11,375 |
122.90 |
$1,398 |
$522 |
|||||
|
2024 |
142,500 |
98,494 |
10,833 |
0 |
10,833 |
123.89 |
$1,342 |
$600 |
|||||
|
2023 |
134,000 |
93,804 |
10,318 |
0 |
10,318 |
122.82 |
$1,267 |
$543 |
|||||
|
2022 |
116,500 |
89,338 |
9,825 |
0 |
9,825 |
117.63 |
$1,156 |
$351 |
|||||
| Property Account Status/Adjustments/Exemptions | ||
|---|---|---|
| Account # | Exemption Description | Amount |
|
R068067480 |
Homestead |
1,000 |
| Property Deed Transaction History (Recorded in the County Clerk's Office) | |||||||
|---|---|---|---|---|---|---|---|
| Date | Type | Book | Page | Price | Grantor | Grantee | |
|
11/25/2025 |
|
Deeds |
$130,000 |
AYLING PATRICIA ANN & RICHARD A |
HOLT DUSTIN |
||
|
12/13/2016 |
|
Deeds |
$70,500 |
GOEDERS MELAINE S |
AYLING PATRICIA ANN & RICHARD A |
||
|
8/18/2006 |
|
Deeds |
$71,500 |
PIETTE MONICA S |
GOEDERS MELAINE S |
||
|
8/6/1991 |
|
Historical |
$20,000 |
AIKMAN EVA F CO TRS |
PIETTE MONICA S |
||
|
2/1/1986 |
|
Historical |
$0 |
|
AIKMAN EVA F CO TRS |
||
| Last Mailed Notice of Value (N.O.V.) Information/History | ||||||||
|---|---|---|---|---|---|---|---|---|
| Year | Date | Market Value | Taxable Market Value | Gross Assessed | Exemption | Net Assessed | ||
|
2026 |
02/23/2026 |
143,000 |
143,000 |
15,730 |
1,000 |
14,730 |
||
|
2025 |
02/14/2025 |
142,000 |
103,418 |
11,375 |
0 |
11,375 |
||
|
2024 |
02/13/2024 |
142,500 |
98,494 |
10,833 |
0 |
10,833 |
||
|
2023 |
02/14/2023 |
134,000 |
93,804 |
10,318 |
0 |
10,318 |
||
|
2022 |
03/15/2022 |
116,500 |
89,338 |
9,825 |
0 |
9,825 |
||
| Property Building Permit History | |||||||||||
|---|---|---|---|---|---|---|---|---|---|---|---|
| Issued | Permit # | Provided by | Bldg # | Description | Est Construction Cost | Status | |||||
| No Building Permit records returned. | |||||||||||
| Click button on building number to access detailed information: | ||||||
|---|---|---|---|---|---|---|
| Bldg # | Vacant/Improved Land | Bldg Description | Year Built | SqFt | # Stories | |
|
1 |
Improved |
Ranch 1 Story |
1943 |
818 |
1 Stories |
|