|
|
|
| Larry Stein Oklahoma County Assessor (405) 713-1200 - Public Access System |
|
|
|
|
|
|
| Real Property Display - Screen Produced 4/29/2026 5:34:24 AM | ||||
|---|---|---|---|---|
| Account: R115011915 | Type: Residential | Location: |
3024 N UTAH AVE |
|
| Building Name/Occupant: |
|
OKLAHOMA CITY |
||
| Owner Name 1: | LOPEZ MA CRUZ YOLANDA RUBALCAVA |
Parcel PIN#: |
2891-11-501-1915 |
|
| Owner Name 2: | 1/4 section #: |
2891 |
||
| Owner Name 3: | Parent Acct: |
|
||
| Billing Address: | 6601 NW 57TH ST | Tax District: |
|
|
| City, State, Zip | BETHANY, OK 73008-2105 | School System: |
Oklahoma City #89 |
|
|
Country: (If noted) |
Land Size: |
0.1597 Acres |
||
|
Land Value: 27,820 |
|
|||
|
Sect 23-T12N-R4W Qtr SW |
ZEDNA ANN 5TH ADD
Block
005
Lot
022
|
|||
| Full Legal Description: ZEDNA ANN 5TH ADD 005 022 |
| Value History (*The County Treasurer 405-713-1300 posts & collects actual tax amounts. Contact information HERE) | |||||||||||||
|---|---|---|---|---|---|---|---|---|---|---|---|---|---|
| Year | Market Value | Taxable Mkt Value | Gross Assessed | Exemption | Net Assessed | Millage | Est. Tax | Tax Savings | |||||
|
2026 |
110,500 |
110,500 |
12,155 |
0 |
12,155 |
122.90 |
$1,494 |
$0 |
|||||
|
2025 |
108,500 |
108,500 |
11,935 |
0 |
11,935 |
122.90 |
$1,467 |
$0 |
|||||
|
2024 |
107,000 |
57,500 |
6,325 |
1,000 |
5,325 |
123.89 |
$660 |
$798 |
|||||
| Property Account Status/Adjustments/Exemptions | ||
|---|---|---|
| Account # | Exemption Description | Amount |
|
R115011915 |
5% Capped Account |
0 |
| Property Deed Transaction History (Recorded in the County Clerk's Office) | ||||||||||
|---|---|---|---|---|---|---|---|---|---|---|
| Date | Type | Book | Page | Price | Grantor | Grantee | ||||
|
8/30/2024 |
|
Hmstd Off & |
$0 |
KINNEAR FREDDIE MAE |
BASSETT EDEN RAE |
|||||
|
8/30/2024 |
|
Deeds |
$130,000 |
BASSETT EDEN RAE |
LOPEZ MA CRUZ YOLANDA RUBALCAVA |
|||||
|
7/25/2007 |
|
Deeds |
$0 |
KINNEAR FREDDIE MAE |
KINNEAR FREDDIE MAE |
|||||
| Last Mailed Notice of Value (N.O.V.) Information/History | ||||||||
|---|---|---|---|---|---|---|---|---|
| Year | Date | Market Value | Taxable Market Value | Gross Assessed | Exemption | Net Assessed | ||
|
2026 |
02/23/2026 |
110,500 |
110,500 |
12,155 |
0 |
12,155 |
||
|
2025 |
02/14/2025 |
108,500 |
108,500 |
11,935 |
0 |
11,935 |
||
|
2024 |
02/13/2024 |
107,000 |
57,500 |
6,325 |
1,000 |
5,325 |
||
| Property Building Permit History | |||||||||||
|---|---|---|---|---|---|---|---|---|---|---|---|
| Issued | Permit # | Provided by | Bldg # | Description | Est Construction Cost | Status | |||||
| No Building Permit records returned. | |||||||||||
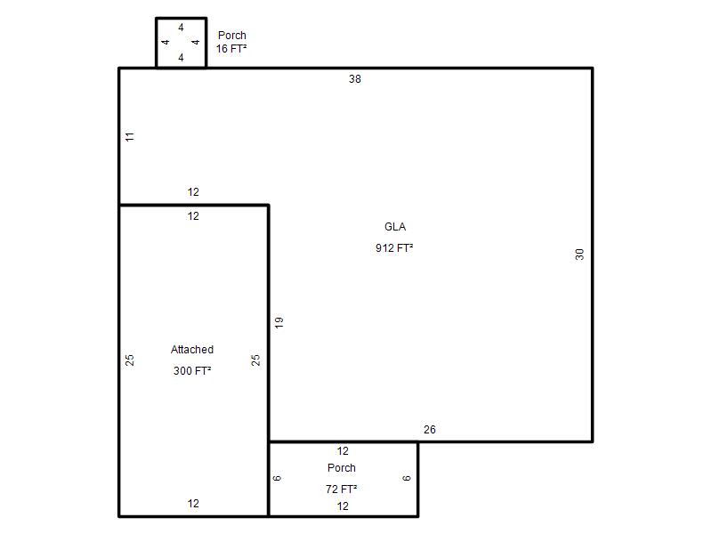
| Click button below to access detailed information and additional property photos: | ||||||
|---|---|---|---|---|---|---|
| Bldg # | Vacant/Improved Land | Bldg Description | Year Built | SqFt | # Stories | |
|
1 |
Improved |
Ranch 1 Story |
1955 |
912 |
1 Stories |
|