|
|
|
| Larry Stein Oklahoma County Assessor (405) 713-1200 - Public Access System |
|
|
|
|
|
|
| Real Property Display - Screen Produced 4/29/2026 5:34:24 AM | ||||
|---|---|---|---|---|
| Account: R145012305 | Type: Residential | Location: |
2820 N UTAH AVE |
|
| Building Name/Occupant: |
|
OKLAHOMA CITY |
||
| Owner Name 1: | MITCHELL LAUREN N |
Parcel PIN#: |
2891-14-501-2305 |
|
| Owner Name 2: | 1/4 section #: |
2891 |
||
| Owner Name 3: | Parent Acct: |
|
||
| Billing Address: | 2820 N UTAH AVE | Tax District: |
|
|
| City, State, Zip | OKLAHOMA CITY, OK 73107 | School System: |
Putnam City #1 |
|
|
Country: (If noted) |
Land Size: |
0.1481 Acres |
||
|
Land Value: 25,800 |
|
|||
|
Sect 23-T12N-R4W Qtr SW |
ZEDNA ANN 5TH ADD
Block
007
Lot
017
|
|||
| Full Legal Description: ZEDNA ANN 5TH ADD 007 017 |
| Value History (*The County Treasurer 405-713-1300 posts & collects actual tax amounts. Contact information HERE) | |||||||||||||
|---|---|---|---|---|---|---|---|---|---|---|---|---|---|
| Year | Market Value | Taxable Mkt Value | Gross Assessed | Exemption | Net Assessed | Millage | Est. Tax | Tax Savings | |||||
|
2026 |
152,500 |
152,500 |
16,775 |
0 |
16,775 |
123.17 |
$2,066 |
$0 |
|||||
|
2025 |
149,500 |
149,500 |
16,445 |
0 |
16,445 |
123.17 |
$2,026 |
$0 |
|||||
|
2024 |
148,000 |
147,525 |
16,227 |
0 |
16,227 |
122.30 |
$1,985 |
$6 |
|||||
| Property Account Status/Adjustments/Exemptions | ||
|---|---|---|
| Account # | Exemption Description | Amount |
|
R145012305 |
5% Capped Account |
0 |
| Property Deed Transaction History (Recorded in the County Clerk's Office) | ||||||||||
|---|---|---|---|---|---|---|---|---|---|---|
| Date | Type | Book | Page | Price | Grantor | Grantee | ||||
|
9/8/2022 |
|
Deeds |
$133,500 |
GRIFFITH GABRIELLE V |
MITCHELL LAUREN N |
|||||
|
4/29/2011 |
|
Deeds |
$68,000 |
THATCHER MARIE M |
GRIFFITH GABRIELLE V |
|||||
|
8/9/2002 |
|
Deeds |
$0 |
THATCHER WILLIE L THATCHER MARIE M |
THATCHER MARIE M |
|||||
| Last Mailed Notice of Value (N.O.V.) Information/History | ||||||||
|---|---|---|---|---|---|---|---|---|
| Year | Date | Market Value | Taxable Market Value | Gross Assessed | Exemption | Net Assessed | ||
|
2026 |
02/23/2026 |
152,500 |
152,500 |
16,775 |
0 |
16,775 |
||
|
2025 |
02/14/2025 |
149,500 |
149,500 |
16,445 |
0 |
16,445 |
||
|
2024 |
02/13/2024 |
148,000 |
147,525 |
16,227 |
0 |
16,227 |
||
| Property Building Permit History | |||||||||||
|---|---|---|---|---|---|---|---|---|---|---|---|
| Issued | Permit # | Provided by | Bldg # | Description | Est Construction Cost | Status | |||||
| No Building Permit records returned. | |||||||||||
| Click button below to access detailed information and additional property photos: | ||||||
|---|---|---|---|---|---|---|
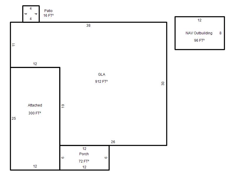
| Bldg # | Vacant/Improved Land | Bldg Description | Year Built | SqFt | # Stories | |
|
1 |
Improved |
Ranch 1 Story |
1955 |
912 |
1 Stories |
|