|
|
|
| Larry Stein Oklahoma County Assessor (405) 713-1200 - Public Access System |
|
|
|
|
|
|
| Real Property Display - Screen Produced 2/27/2026 10:20:02 AM | ||||
|---|---|---|---|---|
| Account: R144932095 | Type: Residential | Location: |
4101 NW 34TH ST |
|
| Building Name/Occupant: |
|
OKLAHOMA CITY |
||
| Owner Name 1: | OLIVAS ORTIZ HILDA V |
Parcel PIN#: |
2892-14-493-2095 |
|
| Owner Name 2: | LOYA CHRISTIAN ANTONY | 1/4 section #: |
2892 |
|
| Owner Name 3: | Parent Acct: |
|
||
| Billing Address: | 4101 NW 34TH ST | Tax District: |
|
|
| City, State, Zip | OKLAHOMA CITY, OK 73112-3120 | School System: |
Oklahoma City #89 |
|
|
Country: (If noted) |
Land Size: |
0.1542 Acres |
||
|
Land Value: 39,283 |
|
|||
|
Sect 23-T12N-R4W Qtr NW |
HARRY REEDERS TALK OF THE TOWN
Block
008
Lot
009
|
|||
| Full Legal Description: HARRY REEDERS TALK OF THE TOWN 008 009 |
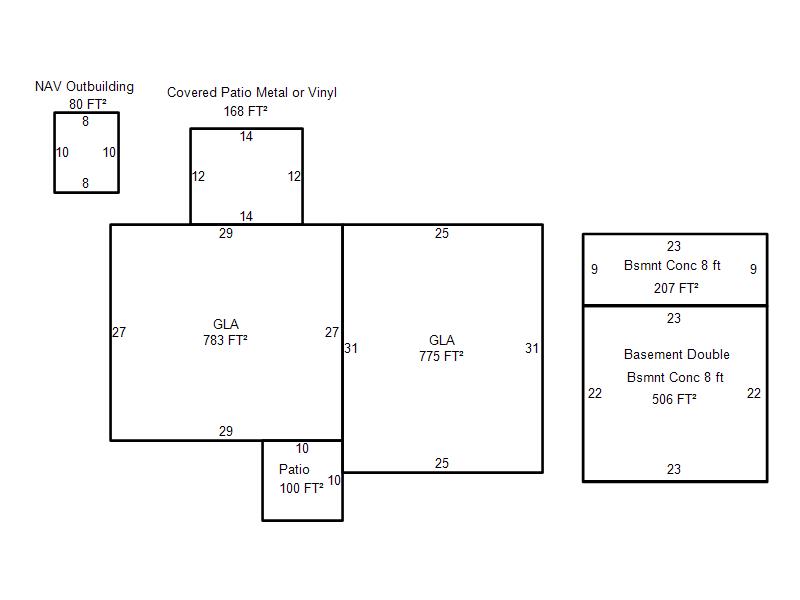
| Photo & Sketch (if available) | Comp Sales (ordered by relevancy) |
|
||||||||||||||||||
|
||||||||||||||||||||
| Value History (*The County Treasurer 405-713-1300 posts & collects actual tax amounts. Contact information HERE) | |||||||||||||
|---|---|---|---|---|---|---|---|---|---|---|---|---|---|
| Year | Market Value | Taxable Mkt Value | Gross Assessed | Exemption | Net Assessed | Millage | Est. Tax | Tax Savings | |||||
|
2025 |
211,500 |
211,500 |
23,265 |
0 |
23,265 |
122.90 |
$2,859 |
$0 |
|||||
|
2024 |
206,500 |
206,500 |
22,715 |
0 |
22,715 |
123.89 |
$2,814 |
$0 |
|||||
|
2023 |
231,000 |
231,000 |
25,410 |
0 |
25,410 |
122.82 |
$3,121 |
$0 |
|||||
|
2022 |
173,500 |
156,555 |
17,221 |
0 |
17,221 |
117.63 |
$2,026 |
$219 |
|||||
|
2021 |
150,000 |
149,100 |
16,401 |
0 |
16,401 |
117.70 |
$1,930 |
$12 |
|||||
| Property Account Status/Adjustments/Exemptions | ||||||
|---|---|---|---|---|---|---|
| Account # | Exemption Description | Amount | ||||
| No adjustment/exemption records returned. | ||||||
| Property Deed Transaction History (Recorded in the County Clerk's Office) | ||||||||||
|---|---|---|---|---|---|---|---|---|---|---|
| Date | Type | Book | Page | Price | Grantor | Grantee | ||||
|
11/26/2025 |
|
Deeds |
$233,000 |
4101 NW 34 LLC |
OLIVAS ORTIZ HILDA V |
|||||
|
4/20/2022 |
|
Deeds |
$230,000 |
MINERA FRANK A |
4101 NW 34 LLC |
|||||
|
1/18/2022 |
|
Deeds |
$150,000 |
SMART PHILLIP L |
MINERA FRANK A |
|||||
|
5/18/2017 |
|
Deeds |
$90,000 |
CHARBENEAU ROBERT P |
SMART PHILLIP L |
|||||
|
7/8/2016 |
|
Deeds |
$0 |
CHARBENEAU ROBERT P & KIMBERLY W |
CHARBENEAU ROBERT P |
|||||
| Last Mailed Notice of Value (N.O.V.) Information/History | ||||||||
|---|---|---|---|---|---|---|---|---|
| Year | Date | Market Value | Taxable Market Value | Gross Assessed | Exemption | Net Assessed | ||
|
2026 |
02/23/2026 |
215,500 |
215,500 |
23,705 |
0 |
23,705 |
||
|
2025 |
02/14/2025 |
211,500 |
211,500 |
23,265 |
0 |
23,265 |
||
|
2023 |
02/14/2023 |
231,000 |
231,000 |
25,410 |
0 |
25,410 |
||
|
2022 |
03/15/2022 |
173,500 |
156,555 |
17,221 |
0 |
17,221 |
||
|
2021 |
03/19/2021 |
150,000 |
149,100 |
16,401 |
0 |
16,401 |
||
| Property Building Permit History | |||||||||||
|---|---|---|---|---|---|---|---|---|---|---|---|
| Issued | Permit # | Provided by | Bldg # | Description | Est Construction Cost | Status | |||||
| No Building Permit records returned. | |||||||||||
| Click button on building number to access detailed information: | ||||||
|---|---|---|---|---|---|---|
| Bldg # | Vacant/Improved Land | Bldg Description | Year Built | SqFt | # Stories | |
|
1 |
Improved |
Split Level |
1973 |
1,558 |
1 Stories |
|