|
|
|
| Larry Stein Oklahoma County Assessor (405) 713-1200 - Public Access System |
|
|
|
|
|
|
| Real Property Display - Screen Produced 2/27/2026 8:17:42 AM | ||||
|---|---|---|---|---|
| Account: R145684000 | Type: Residential | Location: |
4317 NW 30TH ST |
|
| Building Name/Occupant: |
|
OKLAHOMA CITY |
||
| Owner Name 1: | SANTOS ERIK |
Parcel PIN#: |
2892-14-568-4000 |
|
| Owner Name 2: | CIFUENTES AIDE | 1/4 section #: |
2892 |
|
| Owner Name 3: | Parent Acct: |
|
||
| Billing Address: | 3033 N ZEDNA DR | Tax District: |
|
|
| City, State, Zip | OKLAHOMA CITY, OK 73107 | School System: |
Putnam City #1 |
|
|
Country: (If noted) |
Land Size: |
0.2893 Acres |
||
|
Land Value: 16,380 |
|
|||
|
Sect 23-T12N-R4W Qtr NW |
WINSTON ADDITION
Block
000
Lot
004
|
|||
| Full Legal Description: WINSTON ADDITION 000 004 |
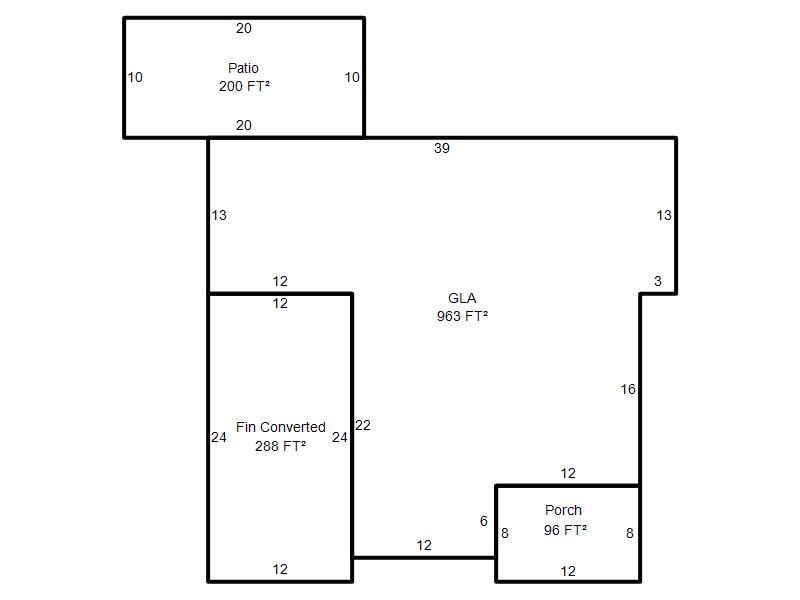
| Photo & Sketch (if available) | Comp Sales (ordered by relevancy) |
|
||||||||||||||||||
|
||||||||||||||||||||
| Value History (*The County Treasurer 405-713-1300 posts & collects actual tax amounts. Contact information HERE) | |||||||||||||
|---|---|---|---|---|---|---|---|---|---|---|---|---|---|
| Year | Market Value | Taxable Mkt Value | Gross Assessed | Exemption | Net Assessed | Millage | Est. Tax | Tax Savings | |||||
|
2025 |
131,500 |
96,660 |
10,632 |
0 |
10,632 |
123.17 |
$1,310 |
$472 |
|||||
|
2024 |
127,000 |
92,058 |
10,126 |
0 |
10,126 |
122.30 |
$1,238 |
$470 |
|||||
|
2023 |
97,500 |
87,675 |
9,644 |
0 |
9,644 |
121.91 |
$1,176 |
$132 |
|||||
|
2022 |
83,500 |
83,500 |
9,185 |
0 |
9,185 |
123.41 |
$1,134 |
$0 |
|||||
|
2021 |
85,000 |
68,838 |
7,571 |
0 |
7,571 |
122.23 |
$926 |
$217 |
|||||
| Property Account Status/Adjustments/Exemptions | ||
|---|---|---|
| Account # | Exemption Description | Amount |
|
R145684000 |
5% Capped Account |
0 |
| Property Deed Transaction History (Recorded in the County Clerk's Office) | |||||||
|---|---|---|---|---|---|---|---|
| Date | Type | Book | Page | Price | Grantor | Grantee | |
|
7/19/2021 |
|
Deeds |
$80,000 |
RUPE JOAN LYNN |
SANTOS ERIK |
||
|
6/11/2010 |
|
Deeds |
$0 |
FAULKNER OTHA & MARY |
FAULKNER OTHA |
||
|
6/11/2010 |
|
Deeds |
$50,500 |
FAULKNER OTHA |
RUPE JOAN LYNN |
||
|
11/11/1911 |
|
Historical |
$0 |
|
FAULKNER OTHA & MARY |
||
| Last Mailed Notice of Value (N.O.V.) Information/History | ||||||||
|---|---|---|---|---|---|---|---|---|
| Year | Date | Market Value | Taxable Market Value | Gross Assessed | Exemption | Net Assessed | ||
|
2026 |
02/23/2026 |
133,000 |
101,493 |
11,163 |
0 |
11,163 |
||
|
2025 |
02/14/2025 |
131,500 |
96,660 |
10,632 |
0 |
10,632 |
||
|
2024 |
02/13/2024 |
127,000 |
92,058 |
10,126 |
0 |
10,126 |
||
|
2023 |
02/14/2023 |
97,500 |
87,675 |
9,644 |
0 |
9,644 |
||
|
2022 |
03/15/2022 |
83,500 |
83,500 |
9,185 |
0 |
9,185 |
||
| Property Building Permit History | |||||||||||
|---|---|---|---|---|---|---|---|---|---|---|---|
| Issued | Permit # | Provided by | Bldg # | Description | Est Construction Cost | Status | |||||
| No Building Permit records returned. | |||||||||||
| Click button on building number to access detailed information: | ||||||
|---|---|---|---|---|---|---|
| Bldg # | Vacant/Improved Land | Bldg Description | Year Built | SqFt | # Stories | |
|
1 |
Improved |
Ranch 1 Story |
1950 |
963 |
1 Stories |
|