|
|
|
| Larry Stein Oklahoma County Assessor (405) 713-1200 - Public Access System |
|
|
|
|
|
|
| Real Property Display - Screen Produced 4/28/2026 10:46:51 PM | ||||
|---|---|---|---|---|
| Account: R145761315 | Type: Residential | Location: |
4417 NW 31ST ST |
|
| Building Name/Occupant: |
|
OKLAHOMA CITY |
||
| Owner Name 1: | AGUINAGA JASSO JOSE FELIPE |
Parcel PIN#: |
2892-14-576-1315 |
|
| Owner Name 2: | RICO JUANITA | 1/4 section #: |
2892 |
|
| Owner Name 3: | Parent Acct: |
|
||
| Billing Address: | 3317 NW 42ND ST | Tax District: |
|
|
| City, State, Zip | OKLAHOMA CITY, OK 73112-6227 | School System: |
Putnam City #1 |
|
|
Country: (If noted) |
Land Size: |
0.1671 Acres |
||
|
Land Value: 27,664 |
|
|||
|
Sect 23-T12N-R4W Qtr NW |
MERIDIAN COURT 2ND
Block
002
Lot
012
|
|||
| Full Legal Description: MERIDIAN COURT 2ND 002 012 |
| Value History (*The County Treasurer 405-713-1300 posts & collects actual tax amounts. Contact information HERE) | |||||||||||||
|---|---|---|---|---|---|---|---|---|---|---|---|---|---|
| Year | Market Value | Taxable Mkt Value | Gross Assessed | Exemption | Net Assessed | Millage | Est. Tax | Tax Savings | |||||
|
2026 |
141,500 |
141,500 |
15,565 |
0 |
15,565 |
123.17 |
$1,917 |
$0 |
|||||
|
2025 |
133,000 |
106,535 |
11,718 |
0 |
11,718 |
123.17 |
$1,443 |
$359 |
|||||
|
2024 |
131,500 |
101,462 |
11,160 |
0 |
11,160 |
122.30 |
$1,365 |
$404 |
|||||
| Property Account Status/Adjustments/Exemptions | ||||||
|---|---|---|---|---|---|---|
| Account # | Exemption Description | Amount | ||||
| No adjustment/exemption records returned. | ||||||
| Property Deed Transaction History (Recorded in the County Clerk's Office) | ||||||||||
|---|---|---|---|---|---|---|---|---|---|---|
| Date | Type | Book | Page | Price | Grantor | Grantee | ||||
|
9/15/2025 |
|
Hmstd Off & |
$0 |
MEADE NICHOLAS R |
MEADE NICHOLAS R & BOBBI R LLOYD REV TRUST |
|||||
|
9/15/2025 |
|
Deeds |
$142,000 |
MEADE NICHOLAS R & BOBBI R LLOYD REV TRUST |
AGUINAGA JASSO JOSE FELIPE |
|||||
|
6/13/2024 |
|
Hmstd Off & |
$0 |
MEADE NICHOLAS |
MEADE NICHOLAS R TRS & REV TRUST |
|||||
| Last Mailed Notice of Value (N.O.V.) Information/History | ||||||||
|---|---|---|---|---|---|---|---|---|
| Year | Date | Market Value | Taxable Market Value | Gross Assessed | Exemption | Net Assessed | ||
|
2026 |
02/23/2026 |
141,500 |
141,500 |
15,565 |
0 |
15,565 |
||
|
2025 |
02/14/2025 |
133,000 |
106,535 |
11,718 |
0 |
11,718 |
||
|
2024 |
02/13/2024 |
131,500 |
101,462 |
11,160 |
0 |
11,160 |
||
| Property Building Permit History | |||||||||||
|---|---|---|---|---|---|---|---|---|---|---|---|
| Issued | Permit # | Provided by | Bldg # | Description | Est Construction Cost | Status | |||||
| No Building Permit records returned. | |||||||||||
| Click button below to access detailed information and additional property photos: | ||||||
|---|---|---|---|---|---|---|
| Bldg # | Vacant/Improved Land | Bldg Description | Year Built | SqFt | # Stories | |
|
1 |
Improved |
Ranch 1 Story |
1957 |
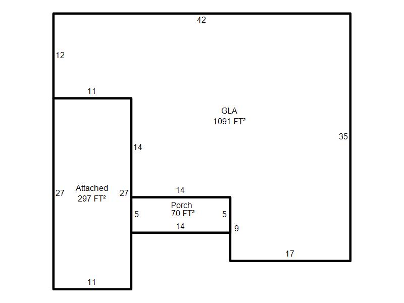
1,091 |
1 Stories |
|