|
|
|
| Larry Stein Oklahoma County Assessor (405) 713-1200 - Public Access System |
|
|
|
|
|
|
| Real Property Display - Screen Produced 2/27/2026 8:17:07 AM | ||||
|---|---|---|---|---|
| Account: R204411050 | Type: Residential | Location: |
4429 NW 32ND PL |
|
| Building Name/Occupant: |
|
OKLAHOMA CITY |
||
| Owner Name 1: | GENZER JERRY L |
Parcel PIN#: |
2892-20-441-1050 |
|
| Owner Name 2: | 1/4 section #: |
2892 |
||
| Owner Name 3: | Parent Acct: |
2892-14-998-3500 |
||
| Billing Address: | 4429 NW 32ND PL | Tax District: |
|
|
| City, State, Zip | OKLAHOMA CITY, OK 73112 | School System: |
Putnam City #1 |
|
|
Country: (If noted) |
Land Size: |
0.0750 Acres |
||
|
Land Value: 31,700 |
|
|||
|
Sect 23-T12N-R4W Qtr NW |
WINDSOR HILLS GARDEN HOMES
Block
001
Lot
006
|
|||
| Full Legal Description: WINDSOR HILLS GARDEN HOMES 001 006 |
| Photo & Sketch (if available) | Comp Sales (ordered by relevancy) |
|
||||||||||||||||||
|
||||||||||||||||||||
| Value History (*The County Treasurer 405-713-1300 posts & collects actual tax amounts. Contact information HERE) | |||||||||||||
|---|---|---|---|---|---|---|---|---|---|---|---|---|---|
| Year | Market Value | Taxable Mkt Value | Gross Assessed | Exemption | Net Assessed | Millage | Est. Tax | Tax Savings | |||||
|
2025 |
243,500 |
195,693 |
21,526 |
0 |
21,526 |
123.17 |
$2,651 |
$648 |
|||||
|
2024 |
238,000 |
186,375 |
20,501 |
0 |
20,501 |
122.30 |
$2,507 |
$695 |
|||||
|
2023 |
177,500 |
177,500 |
19,525 |
0 |
19,525 |
121.91 |
$2,380 |
$0 |
|||||
|
2022 |
199,500 |
175,848 |
19,343 |
0 |
19,343 |
123.41 |
$2,387 |
$321 |
|||||
|
2021 |
170,500 |
167,475 |
18,422 |
0 |
18,422 |
122.23 |
$2,252 |
$41 |
|||||
| Property Account Status/Adjustments/Exemptions | ||
|---|---|---|
| Account # | Exemption Description | Amount |
|
R204411050 |
5% Capped Account |
0 |
| Property Deed Transaction History (Recorded in the County Clerk's Office) | |||||||
|---|---|---|---|---|---|---|---|
| Date | Type | Book | Page | Price | Grantor | Grantee | |
|
5/6/2022 |
|
Deeds |
$175,000 |
PRICE MINDY LEE SUCC TRS |
GENZER JERRY L |
||
|
8/2/2007 |
|
Deeds |
$0 |
CLEAVER LAURA PRICE |
CLEAVER LAURA PRICE TRS |
||
|
1/24/2005 |
|
Deeds |
$157,000 |
EARL AUSTIN CONSTRUCTION CO |
CLEAVER LAURA PRICE |
||
| Last Mailed Notice of Value (N.O.V.) Information/History | ||||||||
|---|---|---|---|---|---|---|---|---|
| Year | Date | Market Value | Taxable Market Value | Gross Assessed | Exemption | Net Assessed | ||
|
2026 |
02/23/2026 |
242,500 |
205,477 |
22,602 |
0 |
22,602 |
||
|
2025 |
02/14/2025 |
243,500 |
195,693 |
21,526 |
0 |
21,526 |
||
|
2024 |
02/13/2024 |
238,000 |
186,375 |
20,501 |
0 |
20,501 |
||
|
2023 |
02/14/2023 |
177,500 |
177,500 |
19,525 |
0 |
19,525 |
||
|
2022 |
03/15/2022 |
199,500 |
175,848 |
19,343 |
0 |
19,343 |
||
| Property Building Permit History | ||||||
|---|---|---|---|---|---|---|
| Issued | Permit # | Provided by | Bldg # | Description | Est Construction Cost | Status |
|
7/21/2004 |
10294887 |
OKLAHOMA CITY |
1 |
Main Dwellin |
130,000 |
Inactive |
| Click button on building number to access detailed information: | ||||||
|---|---|---|---|---|---|---|
| Bldg # | Vacant/Improved Land | Bldg Description | Year Built | SqFt | # Stories | |
|
1 |
Improved |
Ranch 1 Story |
2004 |
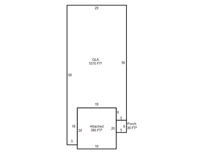
1,570 |
1 Stories |
|