|
|
|
| Larry Stein Oklahoma County Assessor (405) 713-1200 - Public Access System |
|
|
|
|
|
|
| Real Property Display - Screen Produced 4/1/2026 5:43:32 PM | ||||
|---|---|---|---|---|
| Account: R052504200 | Type: Residential | Location: |
3216 NW 33RD ST |
|
| Building Name/Occupant: |
|
OKLAHOMA CITY |
||
| Owner Name 1: | SIGNATURE PROPERTY GROUP LLC |
Parcel PIN#: |
2893-05-250-4200 |
|
| Owner Name 2: | 1/4 section #: |
2893 |
||
| Owner Name 3: | Parent Acct: |
|
||
| Billing Address: | 1000 W WILSHIRE BLVD, Unit 234 | Tax District: |
|
|
| City, State, Zip | OKLAHOMA CITY, OK 73116 | School System: |
Oklahoma City #89 |
|
|
Country: (If noted) |
Land Size: |
0.1354 Acres |
||
|
Land Value: 14,160 |
|
|||
|
Sect 24-T12N-R4W Qtr NE |
LYONS WILL ROGERS PK
Block
004
Lot
018
|
|||
| Full Legal Description: LYONS WILL ROGERS PK 004 018 |
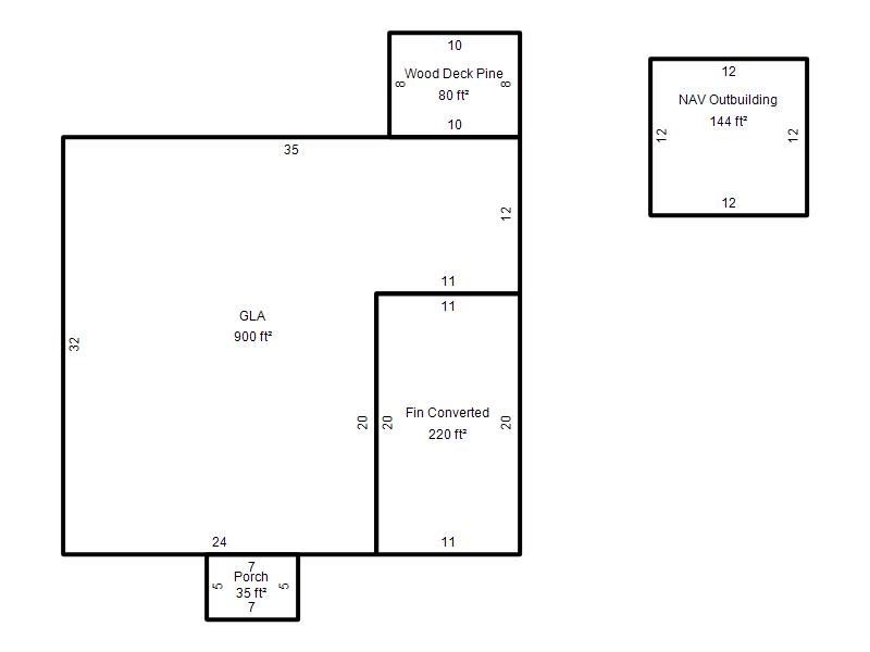
| Photo & Sketch (if available) | Comp Sales (ordered by relevancy) |
|
||||||||||||||||||
|
||||||||||||||||||||
| Value History (*The County Treasurer 405-713-1300 posts & collects actual tax amounts. Contact information HERE) | |||||||||||||
|---|---|---|---|---|---|---|---|---|---|---|---|---|---|
| Year | Market Value | Taxable Mkt Value | Gross Assessed | Exemption | Net Assessed | Millage | Est. Tax | Tax Savings | |||||
|
2026 |
128,000 |
128,000 |
14,080 |
0 |
14,080 |
122.90 |
$1,730 |
$0 |
|||||
|
2025 |
128,500 |
96,485 |
10,613 |
0 |
10,613 |
122.90 |
$1,304 |
$433 |
|||||
|
2024 |
122,500 |
91,891 |
10,107 |
0 |
10,107 |
123.89 |
$1,252 |
$417 |
|||||
|
2023 |
112,000 |
87,516 |
9,626 |
0 |
9,626 |
122.82 |
$1,182 |
$331 |
|||||
|
2022 |
92,500 |
83,349 |
9,167 |
0 |
9,167 |
117.63 |
$1,078 |
$118 |
|||||
| Property Account Status/Adjustments/Exemptions | ||||||
|---|---|---|---|---|---|---|
| Account # | Exemption Description | Amount | ||||
| No adjustment/exemption records returned. | ||||||
| Property Deed Transaction History (Recorded in the County Clerk's Office) | ||||||||||
|---|---|---|---|---|---|---|---|---|---|---|
| Date | Type | Book | Page | Price | Grantor | Grantee | ||||
|
2/27/2025 |
|
Hmstd Off & |
$0 |
LOPEZ YURIBIA |
LOPEZ YURIBIA |
|||||
|
2/27/2025 |
|
Deeds |
$102,000 |
LOPEZ YURIBIA |
SIGNATURE PROPERTY GROUP LLC |
|||||
|
5/24/2016 |
|
Deeds |
$70,000 |
ROJAS RICARDO & GLORIA |
LOPEZ YURIBIA |
|||||
|
9/11/2006 |
|
Deeds |
$65,000 |
CUTTER MICHAEL GEORGE TERRY L |
ROJAS RICARDO & GLORIA |
|||||
|
5/5/1999 |
|
Deeds |
$38,000 |
VAUGHAN JOHN & DIANE |
CUTTER MICHAEL |
|||||
| Last Mailed Notice of Value (N.O.V.) Information/History | ||||||||
|---|---|---|---|---|---|---|---|---|
| Year | Date | Market Value | Taxable Market Value | Gross Assessed | Exemption | Net Assessed | ||
|
2026 |
02/23/2026 |
128,000 |
128,000 |
14,080 |
0 |
14,080 |
||
|
2025 |
02/14/2025 |
128,500 |
96,485 |
10,613 |
0 |
10,613 |
||
|
2025 |
03/28/2025 |
128,500 |
96,485 |
10,613 |
0 |
10,613 |
||
|
2024 |
02/13/2024 |
122,500 |
91,891 |
10,107 |
0 |
10,107 |
||
|
2023 |
02/14/2023 |
112,000 |
87,516 |
9,626 |
0 |
9,626 |
||
| Property Building Permit History | |||||||||||
|---|---|---|---|---|---|---|---|---|---|---|---|
| Issued | Permit # | Provided by | Bldg # | Description | Est Construction Cost | Status | |||||
| No Building Permit records returned. | |||||||||||
| Click button on building number to access detailed information: | ||||||
|---|---|---|---|---|---|---|
| Bldg # | Vacant/Improved Land | Bldg Description | Year Built | SqFt | # Stories | |
|
1 |
Improved |
Ranch 1 Story |
1948 |
900 |
1 Stories |
|