|
|
|
| Larry Stein Oklahoma County Assessor (405) 713-1200 - Public Access System |
|
|
|
|
|
|
| Real Property Display - Screen Produced 4/1/2026 8:21:36 PM | ||||
|---|---|---|---|---|
| Account: R068140300 | Type: Residential | Location: |
3508 NW 27TH ST |
|
| Building Name/Occupant: |
|
OKLAHOMA CITY |
||
| Owner Name 1: | LOPEZ RUTILIA LUCIA OROZCO |
Parcel PIN#: |
2895-06-814-0300 |
|
| Owner Name 2: | 1/4 section #: |
2895 |
||
| Owner Name 3: | Parent Acct: |
|
||
| Billing Address: | 3508 NW 27TH ST | Tax District: |
|
|
| City, State, Zip | OKLAHOMA CITY, OK 73107 | School System: |
Oklahoma City #89 |
|
|
Country: (If noted) |
Land Size: |
0.1550 Acres |
||
|
Land Value: 20,250 |
|
|||
|
Sect 24-T12N-R4W Qtr SW |
RIDGECREST ADDITION
Block
001
Lot
003
|
|||
| Full Legal Description: RIDGECREST ADDITION 001 003 |
| Photo & Sketch (if available) | Comp Sales (ordered by relevancy) |
|
||||||||||||||||||
|
||||||||||||||||||||
| Value History (*The County Treasurer 405-713-1300 posts & collects actual tax amounts. Contact information HERE) | |||||||||||||
|---|---|---|---|---|---|---|---|---|---|---|---|---|---|
| Year | Market Value | Taxable Mkt Value | Gross Assessed | Exemption | Net Assessed | Millage | Est. Tax | Tax Savings | |||||
|
2026 |
194,000 |
194,000 |
21,340 |
0 |
21,340 |
122.90 |
$2,623 |
$0 |
|||||
|
2025 |
198,500 |
196,245 |
21,586 |
0 |
21,586 |
122.90 |
$2,653 |
$30 |
|||||
|
2024 |
193,000 |
186,900 |
20,559 |
0 |
20,559 |
123.89 |
$2,547 |
$83 |
|||||
|
2023 |
178,000 |
178,000 |
19,580 |
0 |
19,580 |
122.82 |
$2,405 |
$0 |
|||||
|
2022 |
114,500 |
91,162 |
10,026 |
0 |
10,026 |
117.63 |
$1,180 |
$302 |
|||||
| Property Account Status/Adjustments/Exemptions | ||
|---|---|---|
| Account # | Exemption Description | Amount |
|
R068140300 |
5% Capped Account |
0 |
| Property Deed Transaction History (Recorded in the County Clerk's Office) | ||||||||||
|---|---|---|---|---|---|---|---|---|---|---|
| Date | Type | Book | Page | Price | Grantor | Grantee | ||||
|
12/5/2022 |
|
Deeds |
$170,000 |
RAMOS AUNER A CHAJ |
LOPEZ RUTILIA LUCIA OROZCO |
|||||
|
3/28/2022 |
|
Deeds |
$125,000 |
CROWELL STANLEY R & KIMBERLY N |
RAMOS AUNER A CHAJ |
|||||
|
8/21/2006 |
|
Deeds |
$0 |
CROWELL STANLEY R |
CROWELL STANLEY R & KIMBERLY N |
|||||
|
7/26/2004 |
|
Deeds |
$68,500 |
HRH ENTERPRISES INC |
CROWELL STANLEY R |
|||||
|
7/21/2004 |
|
Hmstd Off & |
$0 |
BALES TINA L & MICHAEL G |
HRH ENTERPRISES INC |
|||||
| Last Mailed Notice of Value (N.O.V.) Information/History | ||||||||
|---|---|---|---|---|---|---|---|---|
| Year | Date | Market Value | Taxable Market Value | Gross Assessed | Exemption | Net Assessed | ||
|
2025 |
02/14/2025 |
198,500 |
196,245 |
21,586 |
0 |
21,586 |
||
|
2024 |
02/13/2024 |
193,000 |
186,900 |
20,559 |
0 |
20,559 |
||
|
2023 |
02/14/2023 |
178,000 |
178,000 |
19,580 |
0 |
19,580 |
||
|
2022 |
03/15/2022 |
114,500 |
91,162 |
10,026 |
0 |
10,026 |
||
|
2021 |
03/19/2021 |
94,500 |
86,821 |
9,550 |
0 |
9,550 |
||
| Property Building Permit History | |||||||||||
|---|---|---|---|---|---|---|---|---|---|---|---|
| Issued | Permit # | Provided by | Bldg # | Description | Est Construction Cost | Status | |||||
| No Building Permit records returned. | |||||||||||
| Click button on building number to access detailed information: | ||||||
|---|---|---|---|---|---|---|
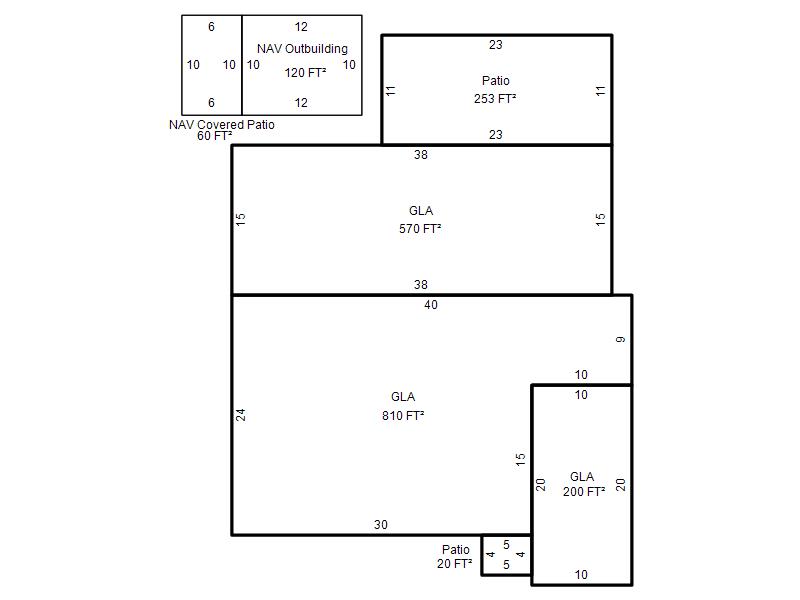
| Bldg # | Vacant/Improved Land | Bldg Description | Year Built | SqFt | # Stories | |
|
1 |
Improved |
Ranch 1 Story |
1940 |
1,580 |
1 Stories |
|