|
|
|
| Larry Stein Oklahoma County Assessor (405) 713-1200 - Public Access System |
|
|
|
|
|
|
| Real Property Display - Screen Produced 3/22/2026 11:05:51 AM | ||||
|---|---|---|---|---|
| Account: R068625200 | Type: Residential | Location: |
3504 NW LIBERTY ST |
|
| Building Name/Occupant: |
|
OKLAHOMA CITY |
||
| Owner Name 1: | SAREMASLANI AIDEN |
Parcel PIN#: |
2899-06-862-5200 |
|
| Owner Name 2: | 1/4 section #: |
2899 |
||
| Owner Name 3: | Parent Acct: |
|
||
| Billing Address: | 3504 NW LIBERTY ST | Tax District: |
|
|
| City, State, Zip | OKLAHOMA CITY, OK 73107-4438 | School System: |
Oklahoma City #89 |
|
|
Country: (If noted) |
Land Size: |
0.1550 Acres |
||
|
Land Value: 14,850 |
|
|||
|
Sect 25-T12N-R4W Qtr SW |
STULTS ADDITION
Block
002
Lot
002
|
|||
| Full Legal Description: STULTS ADDITION 002 002 |
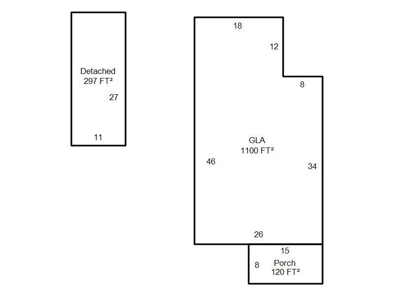
| Photo & Sketch (if available) | Comp Sales (ordered by relevancy) |
|
||||||||||||||||||
|
||||||||||||||||||||
| Value History (*The County Treasurer 405-713-1300 posts & collects actual tax amounts. Contact information HERE) | |||||||||||||
|---|---|---|---|---|---|---|---|---|---|---|---|---|---|
| Year | Market Value | Taxable Mkt Value | Gross Assessed | Exemption | Net Assessed | Millage | Est. Tax | Tax Savings | |||||
|
2025 |
157,500 |
157,500 |
17,325 |
1,000 |
16,325 |
122.90 |
$2,006 |
$123 |
|||||
|
2024 |
156,500 |
156,500 |
17,215 |
0 |
17,215 |
123.89 |
$2,133 |
$0 |
|||||
|
2023 |
158,000 |
158,000 |
17,380 |
0 |
17,380 |
122.82 |
$2,135 |
$0 |
|||||
|
2022 |
100,000 |
77,213 |
8,492 |
0 |
8,492 |
117.63 |
$999 |
$295 |
|||||
|
2021 |
81,000 |
73,537 |
8,088 |
0 |
8,088 |
117.70 |
$952 |
$97 |
|||||
| Property Account Status/Adjustments/Exemptions | ||
|---|---|---|
| Account # | Exemption Description | Amount |
|
R068625200 |
3% Cap Homestead |
0 |
|
R068625200 |
Homestead |
1,000 |
| Property Deed Transaction History (Recorded in the County Clerk's Office) | ||||||||||
|---|---|---|---|---|---|---|---|---|---|---|
| Date | Type | Book | Page | Price | Grantor | Grantee | ||||
|
5/6/2024 |
|
Deeds |
$165,000 |
LESLIE AMBER D |
SAREMASLANI AIDEN |
|||||
|
6/6/2022 |
|
Deeds |
$157,000 |
COVENANT PROMISES 1 LLC |
LESLIE AMBER D |
|||||
|
9/20/2016 |
|
Deeds |
$45,000 |
FEDERAL NATIONAL MORTGAGE ASSOCIATION |
COVENANT PROMISES 1 LLC |
|||||
|
1/12/2016 |
|
Hmstd Off & |
$0 |
BRIGGS NAPOLEON J |
FEDERAL NATIONAL MORTGAGE ASSOCIATION |
|||||
|
3/30/2006 |
|
Deeds |
$0 |
BRIGGS NAPOLEON J BRIGGS NAPOLEON E |
BRIGGS NAPOLEON J |
|||||
| Last Mailed Notice of Value (N.O.V.) Information/History | ||||||||
|---|---|---|---|---|---|---|---|---|
| Year | Date | Market Value | Taxable Market Value | Gross Assessed | Exemption | Net Assessed | ||
|
2025 |
02/14/2025 |
157,500 |
157,500 |
17,325 |
1,000 |
16,325 |
||
|
2023 |
02/14/2023 |
158,000 |
158,000 |
17,380 |
0 |
17,380 |
||
|
2022 |
03/15/2022 |
100,000 |
77,213 |
8,492 |
0 |
8,492 |
||
|
2021 |
03/19/2021 |
81,000 |
73,537 |
8,089 |
0 |
8,089 |
||
|
2020 |
03/10/2020 |
76,000 |
70,036 |
7,703 |
0 |
7,703 |
||
| Property Building Permit History | |||||||||||
|---|---|---|---|---|---|---|---|---|---|---|---|
| Issued | Permit # | Provided by | Bldg # | Description | Est Construction Cost | Status | |||||
| No Building Permit records returned. | |||||||||||
| Click button on building number to access detailed information: | ||||||
|---|---|---|---|---|---|---|
| Bldg # | Vacant/Improved Land | Bldg Description | Year Built | SqFt | # Stories | |
|
1 |
Improved |
Ranch 1 Story |
1929 |
1,100 |
1 Stories |
|