|
|
|
| Larry Stein Oklahoma County Assessor (405) 713-1200 - Public Access System |
|
|
|
|
|
|
| Real Property Display - Screen Produced 3/16/2026 3:55:51 AM | ||||
|---|---|---|---|---|
| Account: R120411100 | Type: Residential | Location: |
21878 FAYE LN |
|
| Building Name/Occupant: |
|
UNINCORPORATED |
||
| Owner Name 1: | THARP BRETT |
Parcel PIN#: |
1046-12-041-1100 |
|
| Owner Name 2: | 1/4 section #: |
1046 |
||
| Owner Name 3: | Parent Acct: |
|
||
| Billing Address: | 21878 FAYE LN | Tax District: |
|
|
| City, State, Zip | HARRAH, OK 73045-6486 | School System: |
McLoud #1 |
|
|
Country: (If noted) |
Land Size: |
1.4500 Acres |
||
|
Land Value: 42,050 |
|
|||
|
Sect 12-T11N-R1E Qtr SE |
HOBSON HILLS
Block
000
Lot
011
|
|||
| Full Legal Description: HOBSON HILLS LOT 011 |
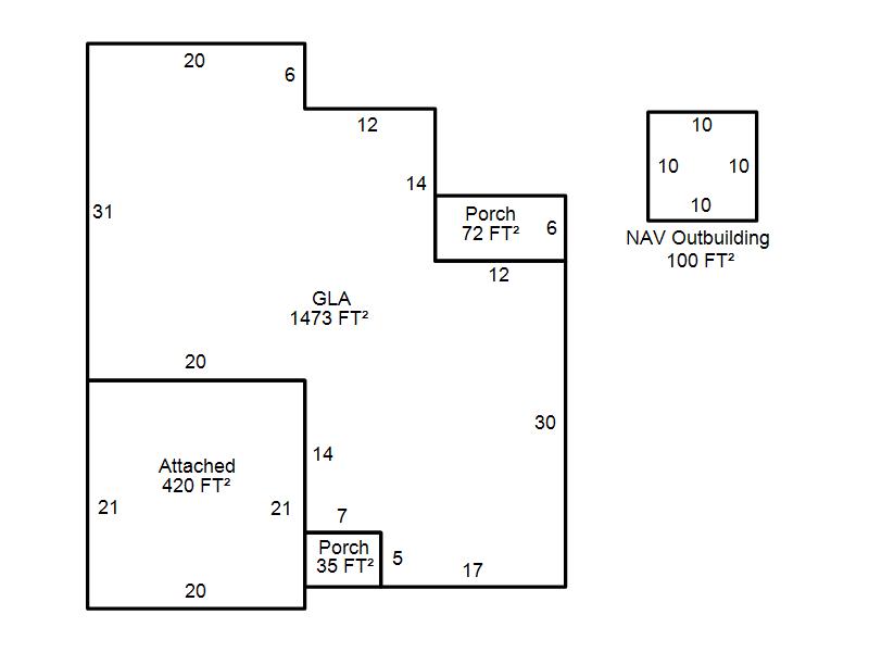
| Photo & Sketch (if available) | Comp Sales (ordered by relevancy) |
|
||||||||||||||||||
|
||||||||||||||||||||
| Value History (*The County Treasurer 405-713-1300 posts & collects actual tax amounts. Contact information HERE) | |||||||||||||
|---|---|---|---|---|---|---|---|---|---|---|---|---|---|
| Year | Market Value | Taxable Mkt Value | Gross Assessed | Exemption | Net Assessed | Millage | Est. Tax | Tax Savings | |||||
|
2025 |
292,000 |
190,680 |
20,973 |
1,000 |
19,973 |
92.42 |
$1,846 |
$1,122 |
|||||
|
2024 |
286,500 |
185,127 |
20,363 |
1,000 |
19,363 |
93.08 |
$1,802 |
$1,131 |
|||||
|
2023 |
259,000 |
179,735 |
19,770 |
1,000 |
18,770 |
92.16 |
$1,730 |
$896 |
|||||
|
2022 |
174,500 |
174,500 |
19,195 |
1,000 |
18,195 |
93.49 |
$1,701 |
$93 |
|||||
|
2021 |
174,500 |
174,500 |
19,195 |
1,000 |
18,195 |
121.05 |
$2,203 |
$121 |
|||||
| Property Account Status/Adjustments/Exemptions | ||||||
|---|---|---|---|---|---|---|
| Account # | Exemption Description | Amount | ||||
| No adjustment/exemption records returned. | ||||||
| Property Deed Transaction History (Recorded in the County Clerk's Office) | ||||||||||
|---|---|---|---|---|---|---|---|---|---|---|
| Date | Type | Book | Page | Price | Grantor | Grantee | ||||
|
12/8/2025 |
|
Deeds |
$250,000 |
KLAUSE MICHELLE |
THARP BRETT |
|||||
|
8/3/2020 |
|
Deeds |
$169,000 |
BOWDEN BERTON LEROY |
KLAUSE MICHELLE |
|||||
|
11/4/2005 |
|
Deeds |
$121,000 |
LEMONS TONI G |
BOWDEN BERTON LEROY |
|||||
|
5/12/1998 |
|
Historical |
$10,000 |
HOBSON LEONARD F & FAYE L TRS |
LEMONS TONI G |
|||||
|
6/23/1992 |
|
Historical |
$0 |
HOBSON LEONARD F & FAYE L |
HOBSON LEONARD F & FAYE L TRS |
|||||
| Last Mailed Notice of Value (N.O.V.) Information/History | ||||||||
|---|---|---|---|---|---|---|---|---|
| Year | Date | Market Value | Taxable Market Value | Gross Assessed | Exemption | Net Assessed | ||
|
2026 |
02/06/2026 |
272,500 |
272,500 |
29,975 |
0 |
29,975 |
||
|
2025 |
01/31/2025 |
292,000 |
190,680 |
20,973 |
1,000 |
19,973 |
||
|
2024 |
01/22/2024 |
286,500 |
185,127 |
20,363 |
1,000 |
19,363 |
||
|
2023 |
01/23/2023 |
259,000 |
179,735 |
19,770 |
1,000 |
18,770 |
||
|
2021 |
02/24/2021 |
174,500 |
174,500 |
19,195 |
1,000 |
18,195 |
||
| Property Building Permit History | ||||||
|---|---|---|---|---|---|---|
| Issued | Permit # | Provided by | Bldg # | Description | Est Construction Cost | Status |
|
5/8/1998 |
10206386 |
COUNTY |
1 |
Main Dwellin |
50,000 |
Inactive |
| Click button on building number to access detailed information: | ||||||
|---|---|---|---|---|---|---|
| Bldg # | Vacant/Improved Land | Bldg Description | Year Built | SqFt | # Stories | |
|
1 |
Improved |
Ranch 1 Story |
1998 |
1,473 |
1 Stories |
|