|
|
|
| Larry Stein Oklahoma County Assessor (405) 713-1200 - Public Access System |
|
|
|
|
|
|
| Real Property Display - Screen Produced 4/2/2026 1:05:57 PM | ||||
|---|---|---|---|---|
| Account: R116220780 | Type: Residential | Location: |
4005 NW 19TH ST |
|
| Building Name/Occupant: |
|
OKLAHOMA CITY |
||
| Owner Name 1: | YEARBY DESIREE ENCHANTEE |
Parcel PIN#: |
2901-11-622-0780 |
|
| Owner Name 2: | 1/4 section #: |
2901 |
||
| Owner Name 3: | Parent Acct: |
|
||
| Billing Address: | 4005 NW 19TH ST | Tax District: |
|
|
| City, State, Zip | OKLAHOMA CITY, OK 73107-3707 | School System: |
Oklahoma City #89 |
|
|
Country: (If noted) |
Land Size: |
0.1825 Acres |
||
|
Land Value: 20,670 |
|
|||
|
Sect 26-T12N-R4W Qtr NE |
STEVE PENNINGTON 8TH
Block
002
Lot
033
|
|||
| Full Legal Description: STEVE PENNINGTON 8TH 002 033 |
| Photo & Sketch (if available) | Comp Sales (ordered by relevancy) |
|
||||||||||||||||||
|
||||||||||||||||||||
| Value History (*The County Treasurer 405-713-1300 posts & collects actual tax amounts. Contact information HERE) | |||||||||||||
|---|---|---|---|---|---|---|---|---|---|---|---|---|---|
| Year | Market Value | Taxable Mkt Value | Gross Assessed | Exemption | Net Assessed | Millage | Est. Tax | Tax Savings | |||||
|
2026 |
175,000 |
175,000 |
19,250 |
0 |
19,250 |
122.90 |
$2,366 |
$0 |
|||||
|
2025 |
126,000 |
126,000 |
13,860 |
0 |
13,860 |
122.90 |
$1,703 |
$0 |
|||||
|
2024 |
127,000 |
99,166 |
10,907 |
0 |
10,907 |
123.89 |
$1,351 |
$379 |
|||||
|
2023 |
117,500 |
94,444 |
10,388 |
0 |
10,388 |
122.82 |
$1,276 |
$311 |
|||||
|
2022 |
103,000 |
89,947 |
9,893 |
0 |
9,893 |
117.63 |
$1,164 |
$169 |
|||||
| Property Account Status/Adjustments/Exemptions | ||||||
|---|---|---|---|---|---|---|
| Account # | Exemption Description | Amount | ||||
| No adjustment/exemption records returned. | ||||||
| Property Deed Transaction History (Recorded in the County Clerk's Office) | ||||||||||
|---|---|---|---|---|---|---|---|---|---|---|
| Date | Type | Book | Page | Price | Grantor | Grantee | ||||
|
4/30/2025 |
|
Deeds |
$183,000 |
SINDEX PROPERTIES LLC |
YEARBY DESIREE ENCHANTEE |
|||||
|
10/28/2024 |
|
Deeds |
$120,000 |
KLOPP STEPHEN M & JO ANNE |
SINDEX PROPERTIES LLC |
|||||
|
5/16/1989 |
|
Historical |
$18,900 |
ADMR OF VETERANS AFFAIRS |
KLOPP STEPHEN M & JO ANNE |
|||||
|
12/2/1988 |
|
Historical |
$0 |
NEWLAND PHILIP |
ADMR OF VETERANS AFFAIRS |
|||||
|
12/28/1987 |
|
Historical |
$0 |
NEWLAND PHILIP E & SHARRA K |
NEWLAND PHILIP |
|||||
| Last Mailed Notice of Value (N.O.V.) Information/History | ||||||||
|---|---|---|---|---|---|---|---|---|
| Year | Date | Market Value | Taxable Market Value | Gross Assessed | Exemption | Net Assessed | ||
|
2026 |
02/23/2026 |
175,000 |
175,000 |
19,250 |
0 |
19,250 |
||
|
2025 |
02/14/2025 |
126,000 |
126,000 |
13,860 |
0 |
13,860 |
||
|
2024 |
02/13/2024 |
127,000 |
99,166 |
10,907 |
0 |
10,907 |
||
|
2023 |
02/14/2023 |
117,500 |
94,444 |
10,388 |
0 |
10,388 |
||
|
2022 |
03/15/2022 |
103,000 |
89,947 |
9,893 |
0 |
9,893 |
||
| Property Building Permit History | |||||||||||
|---|---|---|---|---|---|---|---|---|---|---|---|
| Issued | Permit # | Provided by | Bldg # | Description | Est Construction Cost | Status | |||||
| No Building Permit records returned. | |||||||||||
| Click button on building number to access detailed information: | ||||||
|---|---|---|---|---|---|---|
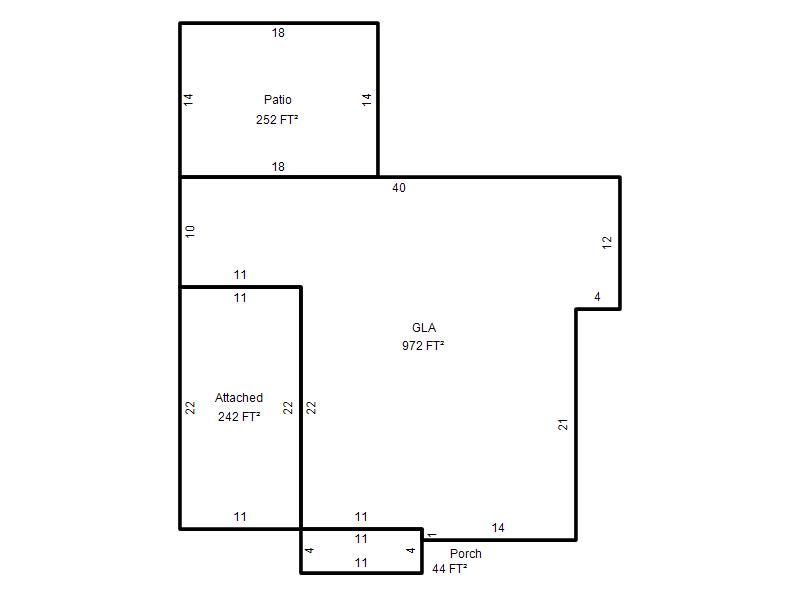
| Bldg # | Vacant/Improved Land | Bldg Description | Year Built | SqFt | # Stories | |
|
1 |
Improved |
Ranch 1 Story |
1950 |
972 |
1 Stories |
|