|
|
|
| Larry Stein Oklahoma County Assessor (405) 713-1200 - Public Access System |
|
|
|
|
|
|
| Real Property Display - Screen Produced 3/31/2026 10:36:57 PM | ||||
|---|---|---|---|---|
| Account: R150628980 | Type: Residential | Location: |
4004 E FAIRVIEW ST |
|
| Building Name/Occupant: |
|
DEL CITY |
||
| Owner Name 1: | JOHNSON ASHLEY D |
Parcel PIN#: |
1421-15-062-8980 |
|
| Owner Name 2: | 1/4 section #: |
1421 |
||
| Owner Name 3: | Parent Acct: |
|
||
| Billing Address: | 4004 E FAIRVIEW ST | Tax District: |
|
|
| City, State, Zip | DEL CITY, OK 73115 | School System: |
Mid-Del #52 |
|
|
Country: (If noted) |
Land Size: |
0.4591 Acres |
||
|
Land Value: 25,706 |
|
|||
|
Sect 6-T11N-R2W Qtr NE |
MATHEWS MEADOW LAWN
Block
019
Lot
005
|
|||
| Full Legal Description: MATHEWS MEADOW LAWN 019 005 |
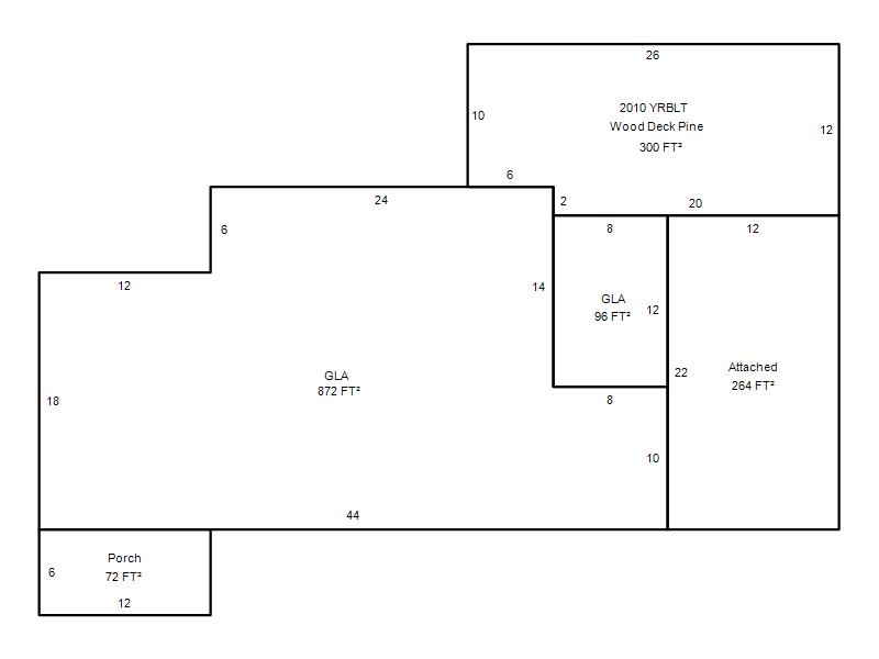
| Photo & Sketch (if available) | Comp Sales (ordered by relevancy) |
|
||||||||||||||||||
|
||||||||||||||||||||
| Value History (*The County Treasurer 405-713-1300 posts & collects actual tax amounts. Contact information HERE) | |||||||||||||
|---|---|---|---|---|---|---|---|---|---|---|---|---|---|
| Year | Market Value | Taxable Mkt Value | Gross Assessed | Exemption | Net Assessed | Millage | Est. Tax | Tax Savings | |||||
|
2026 |
148,000 |
131,683 |
14,484 |
1,000 |
13,484 |
114.72 |
$1,547 |
$321 |
|||||
|
2025 |
151,000 |
127,848 |
14,062 |
1,000 |
13,062 |
114.72 |
$1,499 |
$407 |
|||||
|
2024 |
148,000 |
124,125 |
13,653 |
1,000 |
12,653 |
117.21 |
$1,483 |
$425 |
|||||
|
2023 |
127,000 |
120,510 |
13,256 |
1,000 |
12,256 |
112.46 |
$1,378 |
$193 |
|||||
|
2022 |
117,000 |
117,000 |
12,870 |
1,000 |
11,870 |
110.76 |
$1,315 |
$111 |
|||||
| Property Account Status/Adjustments/Exemptions | ||
|---|---|---|
| Account # | Exemption Description | Amount |
|
R150628980 |
3% Cap Homestead |
0 |
|
R150628980 |
Homestead |
1,000 |
| Property Deed Transaction History (Recorded in the County Clerk's Office) | ||||||||||
|---|---|---|---|---|---|---|---|---|---|---|
| Date | Type | Book | Page | Price | Grantor | Grantee | ||||
|
12/28/2021 |
|
Deeds |
$118,000 |
KARR JODY L |
JOHNSON ASHLEY D |
|||||
|
7/25/2018 |
|
Deeds |
$0 |
KARR DAVID W & JODY L |
KARR JODY L |
|||||
|
7/28/2010 |
|
Deeds |
$40,000 |
BOYD JACKIE OLEN |
KARR DAVID W & JODY L |
|||||
|
5/24/1991 |
|
Historical |
$0 |
BOYD JACKIE OLEN |
BOYD JACKIE OLEN |
|||||
|
5/8/1991 |
|
Historical |
$0 |
BOYD JACKIE OLEN |
BOYD JACKIE OLEN |
|||||
| Last Mailed Notice of Value (N.O.V.) Information/History | ||||||||
|---|---|---|---|---|---|---|---|---|
| Year | Date | Market Value | Taxable Market Value | Gross Assessed | Exemption | Net Assessed | ||
|
2026 |
02/06/2026 |
148,000 |
131,683 |
14,484 |
1,000 |
13,484 |
||
|
2025 |
01/31/2025 |
151,000 |
127,848 |
14,062 |
1,000 |
13,062 |
||
|
2024 |
01/22/2024 |
148,000 |
124,125 |
13,653 |
1,000 |
12,653 |
||
|
2023 |
01/23/2023 |
127,000 |
120,510 |
13,256 |
1,000 |
12,256 |
||
|
2022 |
02/22/2022 |
117,000 |
117,000 |
12,870 |
1,000 |
11,870 |
||
| Property Building Permit History | |||||||||||
|---|---|---|---|---|---|---|---|---|---|---|---|
| Issued | Permit # | Provided by | Bldg # | Description | Est Construction Cost | Status | |||||
| No Building Permit records returned. | |||||||||||
| Click button on building number to access detailed information: | ||||||
|---|---|---|---|---|---|---|
| Bldg # | Vacant/Improved Land | Bldg Description | Year Built | SqFt | # Stories | |
|
1 |
Improved |
Ranch 1 Story |
1949 |
968 |
1 Stories |
|