|
|
|
| Larry Stein Oklahoma County Assessor (405) 713-1200 - Public Access System |
|
|
|
|
|
|
| Real Property Display - Screen Produced 4/2/2026 5:55:10 PM | ||||
|---|---|---|---|---|
| Account: R116235740 | Type: Residential | Location: |
4335 NW 16TH ST |
|
| Building Name/Occupant: |
|
OKLAHOMA CITY |
||
| Owner Name 1: | HERNANDEZ MARIA C MENDOZA |
Parcel PIN#: |
2904-11-623-5740 |
|
| Owner Name 2: | REYES LEONEL GUERRERO | 1/4 section #: |
2904 |
|
| Owner Name 3: | Parent Acct: |
|
||
| Billing Address: | 3200 NW 12TH ST | Tax District: |
|
|
| City, State, Zip | OKLAHOMA CITY, OK 73107-5220 | School System: |
Oklahoma City #89 |
|
|
Country: (If noted) |
Land Size: |
0.1501 Acres |
||
|
Land Value: 19,293 |
|
|||
|
Sect 26-T12N-R4W Qtr NW |
STEVE PENNINGTON 9TH
Block
009
Lot
022
|
|||
| Full Legal Description: STEVE PENNINGTON 9TH 009 022 |
| Photo & Sketch (if available) | Comp Sales (ordered by relevancy) |
|
||||||||||||||||||
|
||||||||||||||||||||
| Value History (*The County Treasurer 405-713-1300 posts & collects actual tax amounts. Contact information HERE) | |||||||||||||
|---|---|---|---|---|---|---|---|---|---|---|---|---|---|
| Year | Market Value | Taxable Mkt Value | Gross Assessed | Exemption | Net Assessed | Millage | Est. Tax | Tax Savings | |||||
|
2026 |
177,000 |
177,000 |
19,470 |
0 |
19,470 |
122.90 |
$2,393 |
$0 |
|||||
|
2025 |
194,500 |
162,269 |
17,848 |
0 |
17,848 |
122.90 |
$2,194 |
$436 |
|||||
|
2024 |
189,500 |
154,542 |
16,999 |
0 |
16,999 |
123.89 |
$2,106 |
$476 |
|||||
|
2023 |
166,000 |
147,183 |
16,189 |
0 |
16,189 |
122.82 |
$1,988 |
$254 |
|||||
|
2022 |
145,000 |
140,175 |
15,419 |
0 |
15,419 |
117.63 |
$1,814 |
$62 |
|||||
| Property Account Status/Adjustments/Exemptions | ||||||
|---|---|---|---|---|---|---|
| Account # | Exemption Description | Amount | ||||
| No adjustment/exemption records returned. | ||||||
| Property Deed Transaction History (Recorded in the County Clerk's Office) | ||||||||||
|---|---|---|---|---|---|---|---|---|---|---|
| Date | Type | Book | Page | Price | Grantor | Grantee | ||||
|
1/14/2025 |
|
Deeds |
$150,000 |
STANFIELD HAYDEN L |
HERNANDEZ MARIA C MENDOZA |
|||||
|
2/18/2020 |
|
Deeds |
$127,000 |
GAMARRA ELIDA CARMAN |
STANFIELD HAYDEN L |
|||||
|
1/17/2018 |
|
Deeds |
$110,000 |
OMEGA INVESTMENTS LLC |
GAMARRA ELIDA CARMAN |
|||||
|
6/19/2017 |
|
Deeds |
$53,000 |
RIOS PEDRO IBARRA |
OMEGA INVESTMENTS LLC |
|||||
|
2/27/2004 |
|
Deeds |
$53,000 |
JP MORGAN CHASE TRS |
RIOS PEDRO IBARRA |
|||||
| Last Mailed Notice of Value (N.O.V.) Information/History | ||||||||
|---|---|---|---|---|---|---|---|---|
| Year | Date | Market Value | Taxable Market Value | Gross Assessed | Exemption | Net Assessed | ||
|
2026 |
02/23/2026 |
177,000 |
177,000 |
19,470 |
0 |
19,470 |
||
|
2025 |
02/14/2025 |
194,500 |
162,269 |
17,848 |
0 |
17,848 |
||
|
2024 |
02/13/2024 |
189,500 |
154,542 |
16,999 |
0 |
16,999 |
||
|
2023 |
02/14/2023 |
166,000 |
147,183 |
16,189 |
0 |
16,189 |
||
|
2022 |
03/15/2022 |
145,000 |
140,175 |
15,419 |
0 |
15,419 |
||
| Property Building Permit History | |||||||||||
|---|---|---|---|---|---|---|---|---|---|---|---|
| Issued | Permit # | Provided by | Bldg # | Description | Est Construction Cost | Status | |||||
| No Building Permit records returned. | |||||||||||
| Click button on building number to access detailed information: | ||||||
|---|---|---|---|---|---|---|
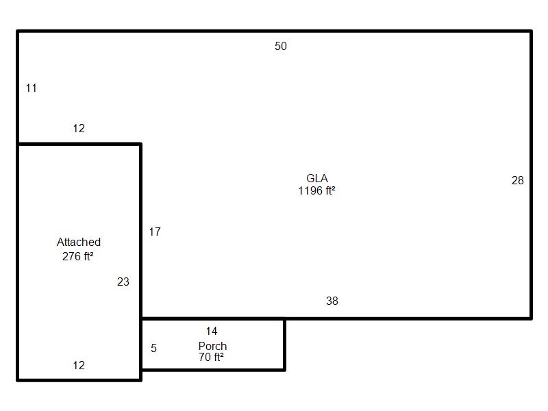
| Bldg # | Vacant/Improved Land | Bldg Description | Year Built | SqFt | # Stories | |
|
1 |
Improved |
Ranch 1 Story |
1951 |
1,196 |
1 Stories |
|